Afan Close, Kettering, Northamptonshire, NN16
By Chris George The Estate Agent
£ 200,000
Reviews
3 out of 5 stars
Chris George The Estate Agent says ..
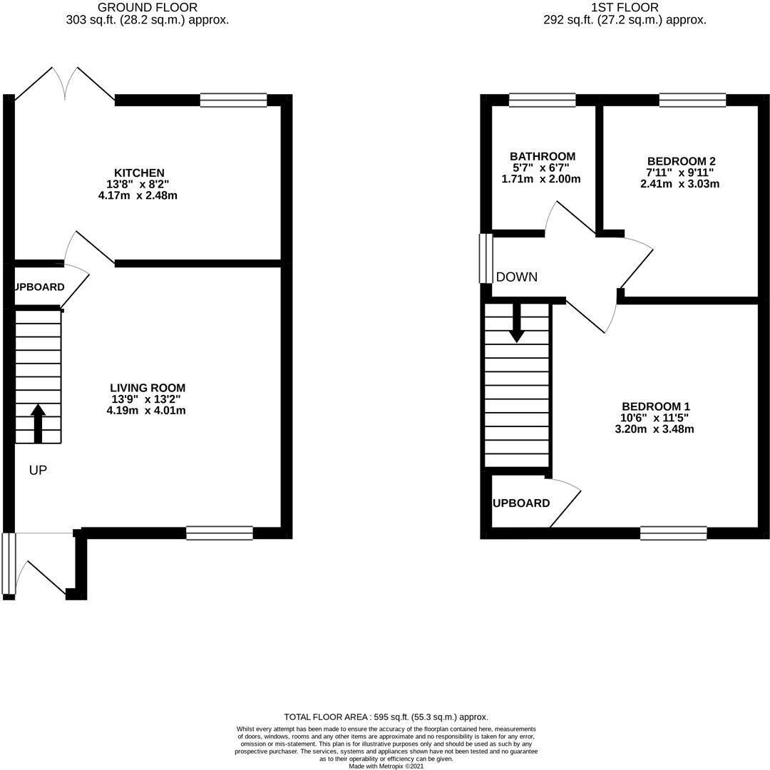
Offered to the market is this two bedroom semi detached property, ideally situated to the North of Kettering on Afan Close, offering a range of amenities and schools close by. The accommodation comprises an entrance porch, a living room, a kitchen/dining room, two double bedrooms and a bathroom. Ex
Property Oracle says ..
This two-bedroom semi-detached house in Kettering, Northamptonshire, presents a reasonable proposition for buyers. The property boasts a well-maintained interior with a functional kitchen and living areas. The two bedrooms are of adequate size, suitable for a small family or couple. The addition of a small enclosed rear garden adds to its appeal. Its location offers proximity to several schools with “Good” Ofsted ratings and reasonable proximity to Kettering’s town centre and transport links. The list price sits at the lower end compared to some neighboring streets, which makes it potentially attractive in terms of value. However, potential buyers would need to verify the precise square footage and take into account the absence of specific features like a garage. The condition is presentable but would likely benefit from minor modernisations. While a family-friendly location is within reach, the immediately surrounding area may not command the highest premiums in Kettering. A thorough viewing is advisable before making a purchase decision.
Therefore, we give this property 6 / 10. *Disclaimer: This is our option and does constitute a recommendation or financial advice. Do your own research. *
- Price
- 7
- Condition
- 6
- Location
- 7
- Land
- 4
- Bedrooms
- 2
- Bathrooms
- 1
- Sqft (est)
- 595.24
The heatmap indicates the level of crime in the area. The color of the heatmap indicates the crime severity and recency.
Metrics Year-on-Year
- Average area value
- 311,363.00 £Increased by 11.20 %
- Est sale value
- 238,096.00 £Increased by 49.81 %
- Average area rental value
- 797.00 £/moDecreased by 6.35 %
- Est letting value
- 595.24 £/mo
- Est rental Yield
- 3.07 %Decreased by 15.89 %
- Crime Rate
- 1.00 %Unchanged by 0.00 %
Agent Activity
Chris George The Estate Agent created the listing.
Nearby Schools
| Name | Type | Ofsted | Distance |
|---|---|---|---|
| St Andrew'S Church Of England Primary School | Academy Sponsor Led | Good | 0.92 KM |
| Youth Works Community College | Other Independent School | Good | 1.19 KM |
| Brambleside Primary School | Academy Converter | Good | 1.42 KM |
| Kettering Park Junior Academy | Academy Sponsor Led | Requires improvement | 1.50 KM |
| Kettering Park Infant Academy | Academy Converter | Requires improvement | 1.53 KM |
Images
Nearby Streets
| Name | Average Price | Average Sqft | Distance |
|---|---|---|---|
| Avon Close | £ 0 | 0 | 0.00 KM |
| Northfield Avenue | £ 0 | 0 | 0.00 KM |
| Poppies Road | £ 367,500 | 0 | 0.00 KM |
| Reed Close | £ 0 | 0 | 0.00 KM |
| Lynwood Close | £ 260,000 | 0 | 0.00 KM |
Nearby Transport
| Name | NLC | TLC | Distance |
|---|---|---|---|
| Kettering | 1857 | KET | 2.42 KM |
| Corby | 1847 | COR | 9.54 KM |
Nearby Listings
| Address | Price | Type | Score | Distance |
|---|---|---|---|---|
| Afan Close, Kettering, Northamptonshire, NN16 | £ 200,000 | BUY | 6 / 10 | 0.00 KM |
| Bramshill Avenue, Kettering, NN16 | £ 300,000 | BUY | 7 / 10 | 0.04 KM |
| Bramshill Avenue, Kettering | £ 300,000 | BUY | 7 / 10 | 0.09 KM |
| Bramshill Avenue, KETTERING | £ 300,000 | BUY | 7 / 10 | 0.09 KM |
| Bramshill Avenue, Kettering, NN16 | £ 279,995 | BUY | 6 / 10 | 0.09 KM |
Nearby Properties
| Address | Price | Distance |
|---|---|---|
| 7 Afan Close | £ 47,500 | 0.00 KM |
| 5 Afan Close | £ 125,000 | 0.00 KM |
| 4 Afan Close | £ 112,000 | 0.00 KM |
| 2 Afan Close | £ 49,000 | 0.00 KM |
| 6 Afan Close | £ 47,950 | 0.00 KM |