Honeysuckle Drive, Dawlish
By Underhill Estate Agents
£ 400,000
Reviews
3 out of 5 stars
Underhill Estate Agents says ..
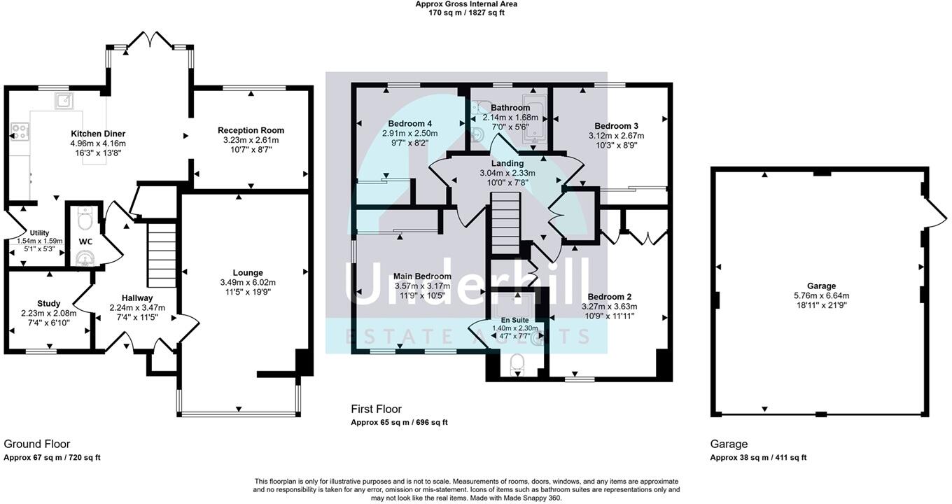
Underhill Estate Agents are delighted to bring to market this attractive four bedroom detached house, located in the popular seaside town of Dawlish, with double garage. This stunning family home in brief comprises an entrance hall, living room, spacious and modern fitted kitchen/diner, utility r...
Property Oracle says ..
This is a detached property located on Honeysuckle Drive, Dawlish. It features four bedrooms and three bathrooms, with a total square footage of 1,675.30. The property includes a garden and a garage. The house appears to be in good condition, with modern interiors. The location is near transportation and schools, but one nearby school has a low Ofsted rating. The asking price of £400,000 seems reasonable given the size, condition, and location, especially when compared to the average property price on the same street.
Therefore, we give this property 7 / 10. *Disclaimer: This is our option and does constitute a recommendation or financial advice. Do your own research. *
- Price
- 7
- Condition
- 8
- Location
- 7
- Land
- 7
- Bedrooms
- 4
- Bathrooms
- 3
- Sqft (est)
- 1,675.30
The heatmap indicates the level of crime in the area. The color of the heatmap indicates the crime severity and recency.
Metrics Year-on-Year
- Average area value
- 285,875.00 £Decreased by 12.04 %
- Est sale value
- 500,914.70 £Increased by 1.01 %
- Average area rental value
- 1,067.00 £/moDecreased by 3.61 %
- Est letting value
- 1,675.30 £/moUnchanged by 0.00 %
- Est rental Yield
- 4.48 %Increased by 9.54 %
- Crime Rate
- 9.00 %Unchanged by 0.00 %
Agent Activity
Underhill Estate Agents created the listing.
Nearby Schools
| Name | Type | Ofsted | Distance |
|---|---|---|---|
| Gatehouse Primary Academy | Academy Sponsor Led | Serious Weaknesses | 0.21 KM |
| Oakwood Court College (Phoenix Learning Care Ltd) | Special Post 16 Institution | Good | 0.53 KM |
| Education And Care (Devon) Ltd At 7-9 Oak Park Villas | Miscellaneous | 0.60 KM | |
| Dawlish College | Academy Converter | 0.99 KM | |
| Chances Educational Support Services | Other Independent School | Good | 1.06 KM |
Images
Nearby Streets
| Name | Average Price | Average Sqft | Distance |
|---|---|---|---|
| Honeysuckle Drive | £ 500,000 | 0 | 0.00 KM |
| Teasel Grpove | £ 0 | 0 | 0.00 KM |
| Langdon Road | £ 0 | 0 | 0.00 KM |
| Sutton Close | £ 390,000 | 0 | 0.00 KM |
| Wallace Avenue | £ 425,000 | 0 | 0.00 KM |
Nearby Transport
| Name | NLC | TLC | Distance |
|---|---|---|---|
| Dawlish | 3408 | DWL | 1.02 KM |
| Dawlish Warren | 3409 | DWW | 3.16 KM |
| Starcross | 3413 | SCS | 5.05 KM |
| Teignmouth | 3430 | TGM | 5.22 KM |
| Exmouth | 5756 | EXM | 7.14 KM |
Nearby Listings
| Address | Price | Type | Score | Distance |
|---|---|---|---|---|
| Honeysuckle Drive, Dawlish | £ 400,000 | BUY | 7 / 10 | 0.00 KM |
| Honeysuckle Drive, Dawlish, Devon, EX7 | £ 500,000 | BUY | 7 / 10 | 0.03 KM |
| Clover Drive, Dawlish, EX7 | £ 365,000 | BUY | 7 / 10 | 0.05 KM |
| Clover Drive, Dawlish, EX7 | £ 360,000 | BUY | Unknown | 0.05 KM |
| Clover Drive, Dawlish, EX7 | £ 310,000 | BUY | 7 / 10 | 0.05 KM |
Nearby Properties
| Address | Price | Distance |
|---|---|---|
| 20 Clover Drive | £ 305,000 | 0.04 KM |
| 51 Clover Drive | £ 239,950 | 0.06 KM |
| 27 Clover Drive | £ 234,000 | 0.06 KM |
| 14 Clover Drive | £ 227,000 | 0.06 KM |
| 53 Clover Drive | £ 290,000 | 0.06 KM |