Dani Denby says ..
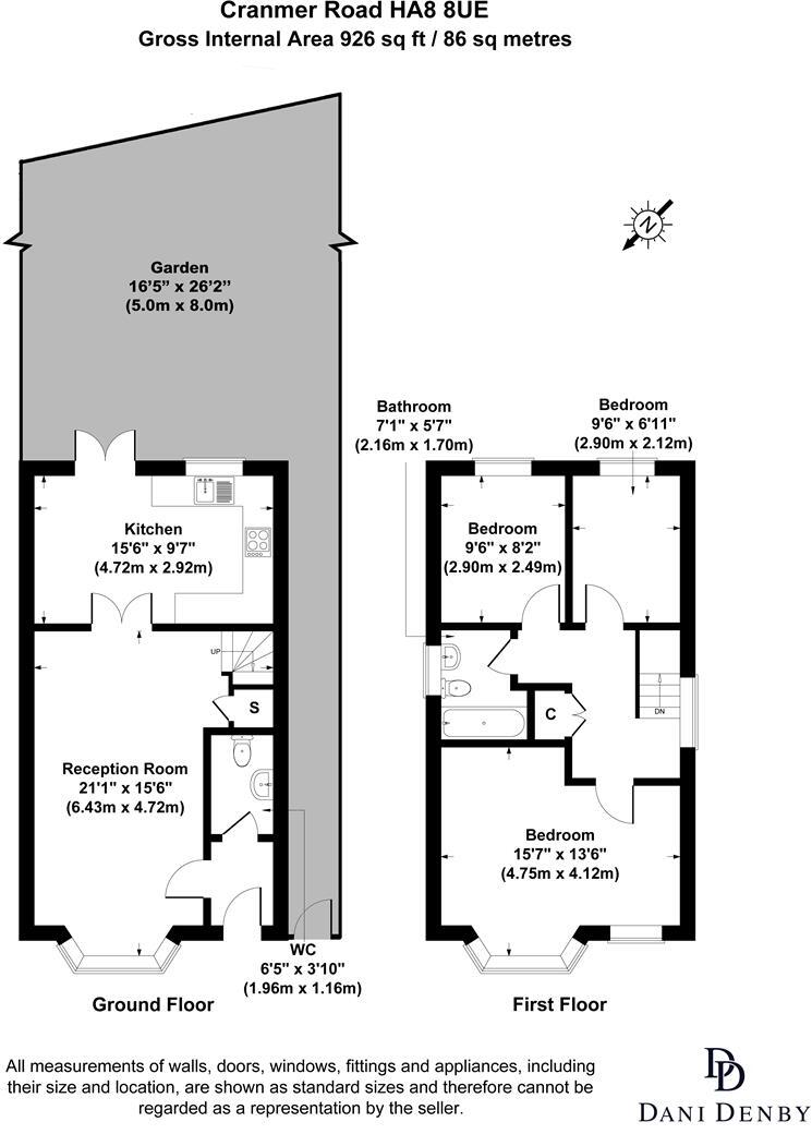
A detached three bedroom family home situated in the heart of Edgware. The property comprises, a spacious reception room, modern fitted kitchen, guest WC, three good size bedrooms and a family bathroom. Further benefits include, off street parking and a well maintained rear garden. Located close ...
Property Oracle says ..
This is a detached property on Cranmer Road, Edgware, featuring three bedrooms and one bathroom. The house appears to be in good, modern condition, with a well-maintained interior. It benefits from a garden and off-street parking. The location is convenient, with proximity to schools and transportation links. The asking price of £575,000 seems reasonable given the property’s size, condition, and location relative to comparable sales in the area. The property is likely to appeal to families looking for a comfortable home in a well-connected suburban area of London.
Therefore, we give this property 7 / 10. *Disclaimer: This is our option and does constitute a recommendation or financial advice. Do your own research. *
- Price
- 8
- Condition
- 7
- Location
- 7
- Land
- 6
- Bedrooms
- 3
- Bathrooms
- 1
- Sqft (est)
- 926.00
The heatmap indicates the level of crime in the area. The color of the heatmap indicates the crime severity and recency.
Metrics Year-on-Year
- Average area value
- 758,663.00 £Increased by 3.95 %
- Est sale value
- 440,776.00 £Decreased by 26.99 %
- Average area rental value
- 2,364.00 £/moDecreased by 11.43 %
- Est letting value
- 926.00 £/moDecreased by 50.00 %
- Est rental Yield
- 3.74 %Decreased by 14.81 %
- Crime Rate
- 4.00 %Unchanged by 0.00 %
Agent Activity
Dani Denby created the listing.
Nearby Schools
| Name | Type | Ofsted | Distance |
|---|---|---|---|
| Rosh Pinah Additional Resource Provision | Other Independent Special School | 0.25 KM | |
| Rosh Pinah Primary School | Voluntary Aided School | Good | 0.29 KM |
| Holland House School | Other Independent School | 0.45 KM | |
| Broadfields Primary School | Academy Converter | Good | 0.67 KM |
| Beit Shvidler Primary School | Voluntary Aided School | Good | 0.72 KM |
Images
Nearby Streets
| Name | Average Price | Average Sqft | Distance |
|---|---|---|---|
| Hurstmere Court | £ 900,000 | 0 | 0.00 KM |
| Kenilworth Road | £ 595,000 | 0 | 0.00 KM |
| Mowbray Parade | £ 199,950 | 0 | 0.00 KM |
| Clay Lane | £ 0 | 0 | 0.00 KM |
| Crossgate | £ 0 | 0 | 0.00 KM |
Nearby Transport
| Name | NLC | TLC | Distance |
|---|---|---|---|
| Mill Hill Broadway | 1527 | MIL | 2.68 KM |
| Elstree And Borehamwood | 1542 | ELS | 3.36 KM |
| Hendon | 1522 | HEN | 6.07 KM |
| Kenton | 1399 | KNT | 6.98 KM |
| South Kenton | 1453 | SOK | 7.34 KM |
Nearby Listings
| Address | Price | Type | Score | Distance |
|---|---|---|---|---|
| Cranmer Road, Edgware | £ 575,000 | BUY | 7 / 10 | 0.00 KM |
| Cranmer Road, Edgware HA8 | £ 589,950 | BUY | Unknown | 0.03 KM |
| Cranmer Road, Edgware HA8 | £ 575,000 | BUY | 7 / 10 | 0.03 KM |
| Wyre Grove, Edgware, HA8 | £ 600,000 | BUY | Unknown | 0.07 KM |
| Warwick Avenue, Edgware, Middlesex, HA8 | £ 725,000 | BUY | 6 / 10 | 0.13 KM |
Nearby Properties
| Address | Price | Distance |
|---|---|---|
| 4 Cranmer Road | £ 275,000 | 0.05 KM |
| 6 Cranmer Road | £ 700,000 | 0.05 KM |
| 1 Rosens Walk | £ 125,000 | 0.05 KM |
| 12 Wyre Grove | £ 477,000 | 0.06 KM |
| 3 Rosens Walk | £ 595,000 | 0.07 KM |