Ayling Court, Farnham, Surrey, GU9
By Bridges Estate Agents
£ 325,000
Reviews
3 out of 5 stars
Bridges Estate Agents says ..
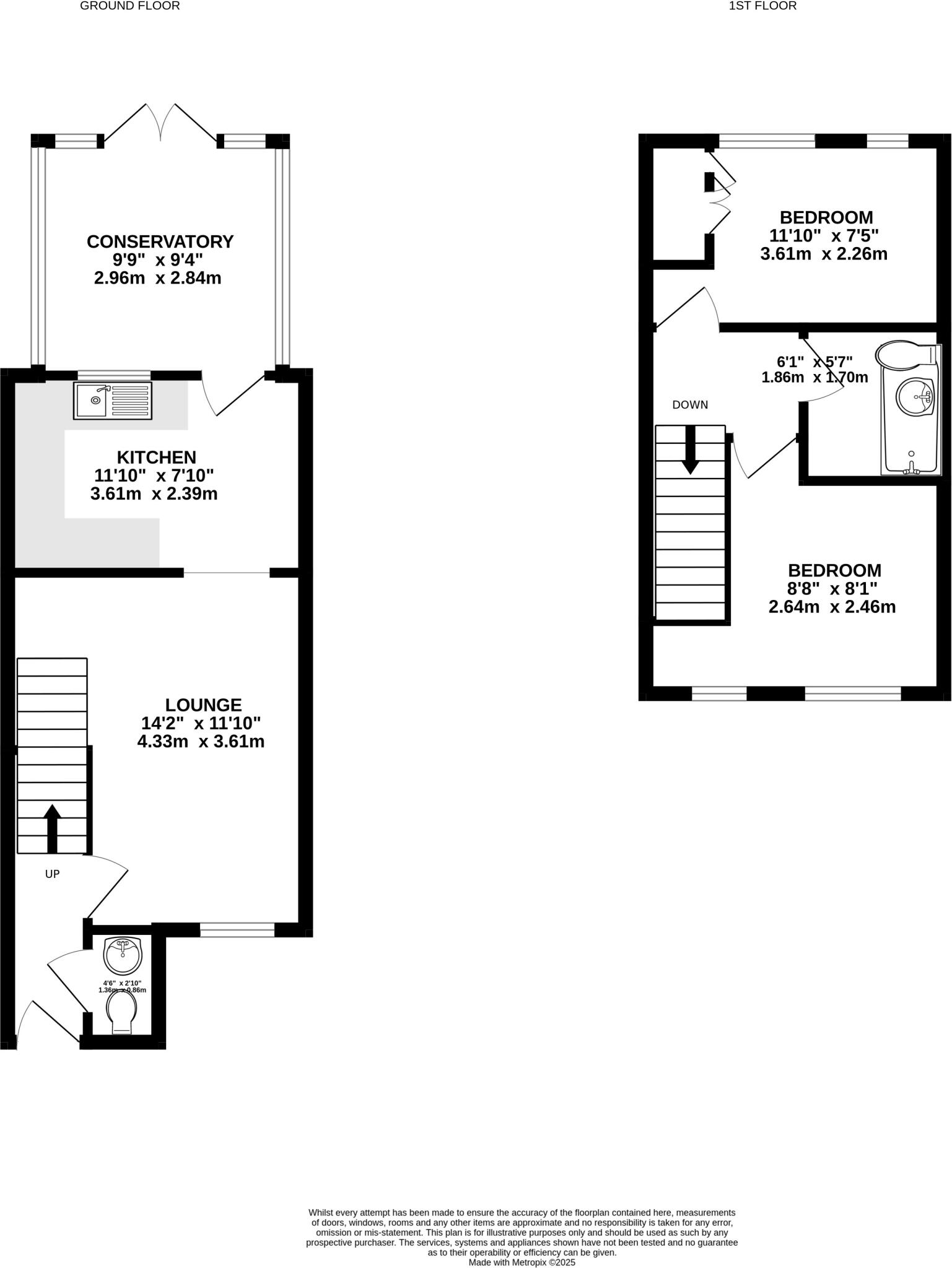
Available to the market, with no onward chain, is this two-bedroom property situated in a pleasant cul-de-sac on the north side of Farnham. The ground floor has a generously sized lounge, a kitchen and a conservatory with double doors opening onto the rear patio. The first floor comprises of two ...
Property Oracle says ..
This 2-bedroom terraced house in Farnham offers a blend of convenient location and potential. While the interior is generally in fair condition, the bathroom could benefit from modernization, and the garden requires some landscaping. The property is situated in a well-regarded area with good access to schools and transport links. The price is slightly above the local average per square foot, reflecting the desirability of the location. Overall, this property presents a solid opportunity for buyers looking to invest in a popular area with scope for improvement.
Therefore, we give this property 6 / 10. *Disclaimer: This is our option and does constitute a recommendation or financial advice. Do your own research. *
- Price
- 7
- Condition
- 6
- Location
- 7
- Land
- 5
- Bedrooms
- 2
- Bathrooms
- 1
- Sqft (est)
- 501.05
The heatmap indicates the level of crime in the area. The color of the heatmap indicates the crime severity and recency.
Metrics Year-on-Year
- Average area value
- 272,143.00 £Decreased by 0.84 %
- Est sale value
- 122,757.25 £Increased by 2.08 %
- Average area rental value
- 950.00 £/moDecreased by 12.68 %
- Est letting value
- 0.00 £/mo
- Est rental Yield
- 4.19 %Decreased by 11.97 %
- Crime Rate
- 2.00 %Unchanged by 0.00 %
Agent Activity
Bridges Estate Agents created the listing.
Nearby Schools
| Name | Type | Ofsted | Distance |
|---|---|---|---|
| All Hallows Catholic School | Voluntary Aided School | Outstanding | 0.42 KM |
| St Joseph'S Catholic Primary School | Academy Converter | Outstanding | 0.91 KM |
| William Cobbett Primary School | Community School | Good | 0.92 KM |
| Rowhill School | Pupil Referral Unit | Good | 1.13 KM |
| Badshot Lea Village Infant School | Community School | Good | 1.25 KM |
Images
Nearby Streets
| Name | Average Price | Average Sqft | Distance |
|---|---|---|---|
| Holbrook Close | £ 850,000 | 0 | 0.00 KM |
| Glebe Close | £ 0 | 0 | 0.00 KM |
| Larkspur Close | £ 0 | 0 | 0.00 KM |
| St Benedict'S Close | £ 210,000 | 0 | 0.00 KM |
| St. Peters Park | £ 420,000 | 0 | 0.00 KM |
Nearby Transport
| Name | NLC | TLC | Distance |
|---|---|---|---|
| Aldershot | 5623 | AHT | 1.70 KM |
| Farnham | 5545 | FNH | 3.60 KM |
| North Camp | 5636 | NCM | 6.24 KM |
| Ash | 5641 | ASH | 6.70 KM |
| Ash Vale | 5547 | AHV | 6.81 KM |
Nearby Listings
| Address | Price | Type | Score | Distance |
|---|---|---|---|---|
| Ayling Court, Farnham, Surrey, GU9 | £ 325,000 | BUY | 6 / 10 | 0.00 KM |
| Ayling Court, Farnham, Surrey, GU9 | £ 315,000 | BUY | 6 / 10 | 0.03 KM |
| Cherry Place, Farnham, Surrey, GU9 | £ 835,000 | BUY | 7 / 10 | 0.04 KM |
| Ayling Court, Farnham, Surrey, GU9 | £ 200,000 | BUY | 5 / 10 | 0.04 KM |
| Stockwood Way, Farnham, Surrey, GU9 | £ 475,000 | BUY | 6 / 10 | 0.07 KM |
Nearby Properties
| Address | Price | Distance |
|---|---|---|
| 7 Ayling Court | £ 186,500 | 0.01 KM |
| 10 Ayling Court | £ 130,000 | 0.01 KM |
| 14 Ayling Court | £ 119,500 | 0.01 KM |
| 20 Ayling Court | £ 212,000 | 0.01 KM |
| 12 Ayling Court | £ 150,000 | 0.01 KM |