Bentley Lane, Meanwood, Leeds, West Yorkshire.
CO

Bentley Lane, Meanwood, Leeds, West Yorkshire.

By Cornerstone Estate Agents

£ 300,000

Reviews

3 out of 5 stars

Cornerstone Estate Agents says ..

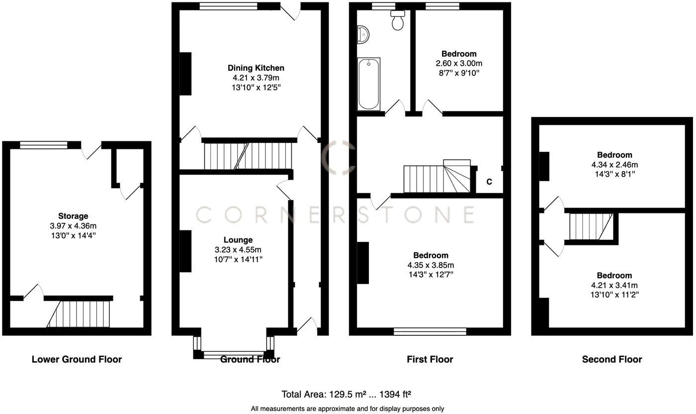
Cornerstone are delighted to offer for sale this spacious, well-presented four-bedroom through Victorian terrace property full of character and charm.

Property Oracle says ..

This is a four-bedroom terraced house in Meanwood, Leeds. The property is in generally good condition and has a modern kitchen and bathroom. The property has a small garden to the rear and a small front garden. The property is listed at £300,000, which is below the average price for the area. The property is located in a desirable area with good access to local amenities and schools. The property is located 1.02 KM from Meanwood Church Of England Primary School which has an outstanding Ofsted rating. The property is 1,393.93 sqft which is above the average sqft for the area of 876.

Therefore, we give this property 6 / 10. *Disclaimer: This is our option and does constitute a recommendation or financial advice. Do your own research. *

Price
7
Condition
7
Location
7
Land
6
Bedrooms
4
Bathrooms
1
Sqft (est)
1,393.93

The heatmap indicates the level of crime in the area. The color of the heatmap indicates the crime severity and recency.

Metrics Year-on-Year

Average area value
425,754.00 £
Increased by 28.76 %
from 330,666.00 £
Est sale value
677,449.98 £
Increased by 65.87 %
from 408,421.49 £
Average area rental value
1,157.00 £/mo
Increased by 11.79 %
from 1,035.00 £/mo
Est letting value
1,393.93 £/mo
from 0.00 £/mo
Est rental Yield
3.26 %
Decreased by 13.30 %
from 3.76 %
Crime Rate
2.00 %
Unchanged by 0.00 %
from 2.00 %

Agent Activity

  • Cornerstone Estate Agents created the listing.

Nearby Schools

NameTypeOfstedDistance
Headingley Children'S CentreChildren's Centre0.89 KM
Shire Oak Vc Primary SchoolVoluntary Controlled SchoolGood0.89 KM
Meanwood Church Of England Primary SchoolVoluntary Aided SchoolOutstanding1.02 KM
Lighthouse Futures TrustSpecial Post 16 Institution1.10 KM
Leeds City AcademyAcademy Sponsor LedGood1.19 KM

Images

Front Garden & Door.jpg Lounge.jpg Lounge.jpg Open Plan Kitchen Diner.jpg Open Plan Kitchen Diner.jpg Lounge.jpg Lounge.jpg Lounge Bay Sash Windows.jpg Hal.jpg Hall.jpg Landing.jpg Front Bedroom.jpg Front Bedroom.jpg Back Double Bedroom.jpg Back Double Bedroom.jpg Front Attic.jpg Front Attic.jpg View From Front Attic Sky Light.jpg Back Attic.jpg Bathroom.jpg Rear Elevation.jpg Basement.jpg Back Attic.jpg Bathroom.jpg Front Elevation.jpg

Nearby Streets

NameAverage PriceAverage SqftDistance
Clipston Terrace £ 000.00 KM
Cherry Grove £ 325,00000.00 KM
Coniston Avenue £ 287,47500.00 KM
Stonegate Road £ 000.00 KM
Stainbeck Road £ 000.00 KM

Nearby Transport

NameNLCTLCDistance
Burley Park8500BUY1.91 KM
Headingley8498HDY3.17 KM
Leeds8487LDS3.84 KM
Kirkstall Forge6544KLF6.20 KM
Cottingley8505COT6.77 KM

Nearby Listings

AddressPriceTypeScoreDistance
Bentley Lane, Meanwood, Leeds, West Yorkshire. £ 300,000BUY6 / 100.00 KM
Bentley Lane, Meanwood, Leeds, LS6 £ 270,000BUY5 / 100.04 KM
Bentley Lane, Leeds £ 350,000BUY4 / 100.04 KM
Bentley Lane, Leeds, West Yorkshire £ 295,000BUY6 / 100.07 KM
Bridgewater Court, Grove Lane, Headingley, Leeds, LS6 £ 170,000BUY5 / 100.09 KM

Nearby Properties

AddressPriceDistance
76 Bentley Lane £ 150,0000.04 KM
36 Bentley Lane £ 205,0000.04 KM
39d Bentley Lane £ 279,0500.04 KM
44 Bentley Lane £ 176,5000.04 KM
39a Bentley Lane £ 189,0000.04 KM