Cross Street, Barnton
EW

Cross Street, Barnton

By EweMove

£ 250,000

Reviews

3 out of 5 stars

EweMove says ..

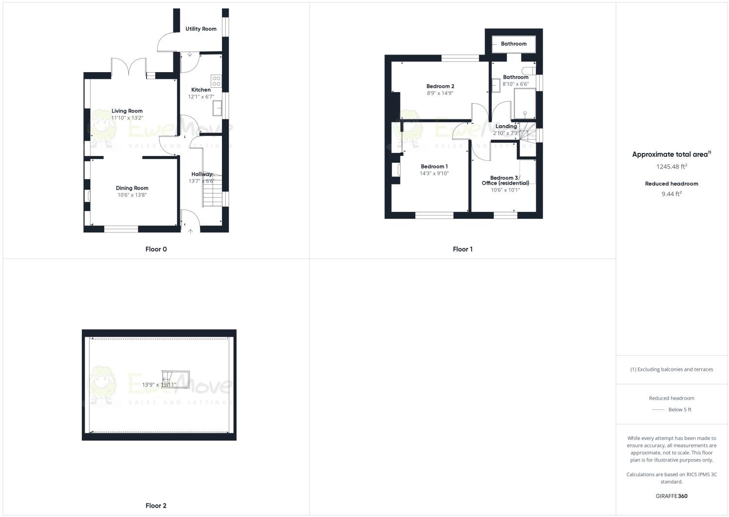
Set in a mature residential area of Barnton this well-proportioned three bedroom semi-detached home offers the perfect opportunity for a family looking to make this house their own. This excellent village location property has scope for additional personalisation.

Property Oracle says ..

This property is a 3-bedroom semi-detached house located in Barnton, Cheshire. The location benefits from being within reasonable distance of local schools and train stations, making it convenient for families and commuters. The property itself appears to be in generally good condition, although some minor modernisation might enhance its appeal. The presence of a garden is a positive feature. However, the plot size is not specified. Compared to the average price per square foot in the area, the list price seems slightly below average. This could reflect the smaller size of the property compared to the average. Further investigation into the specific condition and plot size would be necessary to determine the overall value.

Therefore, we give this property 7 / 10. *Disclaimer: This is our option and does constitute a recommendation or financial advice. Do your own research. *

Price
7
Condition
7
Location
8
Land
6
Bedrooms
3
Bathrooms
1
Sqft (est)
495.89

The heatmap indicates the level of crime in the area. The color of the heatmap indicates the crime severity and recency.

Metrics Year-on-Year

Average area value
258,571.00 £
Decreased by 18.16 %
from 315,930.00 £
Est sale value
162,651.92 £
Increased by 11.95 %
from 145,295.77 £
Average area rental value
1,230.00 £/mo
Increased by 21.30 %
from 1,014.00 £/mo
Est letting value
495.89 £/mo
from 0.00 £/mo
Est rental Yield
5.71 %
Increased by 48.31 %
from 3.85 %
Crime Rate
10.00 %
Unchanged by 0.00 %
from 10.00 %

Agent Activity

  • EweMove created the listing.

Nearby Schools

NameTypeOfstedDistance
Rosebank SchoolCommunity Special SchoolGood0.93 KM
Barnton And Weaverham Children'S CentreChildren's Centre0.94 KM
Barnton Community Nursery And Primary SchoolAcademy ConverterGood1.18 KM
Winnington Park Community Primary And Nursery SchoolCommunity SchoolGood2.25 KM
The Grange SchoolOther Independent School2.54 KM

Images

Front aspect - EweMove Sales and Lettings Lounge - EweMove Sales and Lettings Dining Room - EweMove Sales and Lettings  Kitchen - EweMove Sales and Lettings Bathroom - EweMove Sales and Lettings Bedroom 1 - EweMove Sales and Lettings Bedroom 1 - EweMove Sales and Lettings Bedroom 2 - EweMove Sales and Lettings Bedroom 3 - EweMove Sales and Lettings Loft conversion - EweMove Sales and Lettings Loft conversion - EweMove Sales and Lettings Garden - EweMove Sales and Lettings Kitchen - EweMove Sales and Lettings

Nearby Streets

NameAverage PriceAverage SqftDistance
Goodwood Close £ 000.00 KM
The Mews £ 150,00000.00 KM
Hazelwood Road £ 000.00 KM
Leach Drive £ 150,00000.00 KM
Whitby Drive £ 242,50000.00 KM

Nearby Transport

NameNLCTLCDistance
Greenbank2325GBK2.45 KM
Hartford (Cheshire)2230HTF3.46 KM
Northwich2326NWI5.30 KM
Acton Bridge (Cheshire)2287ACB6.58 KM
Cuddington2305CUD7.06 KM

Nearby Listings

AddressPriceTypeScoreDistance
Cross Street, Barnton £ 250,000BUY7 / 100.00 KM
Broadway, Northwich £ 165,000BUY6 / 100.07 KM
Mond Street, Barnton, Northwich £ 230,000BUYUnknown0.08 KM
Broadway, Barnton, Northwich £ 210,000BUY7 / 100.09 KM
Nursery Road, Barnton, Northwich £ 230,000BUY6 / 100.11 KM

Nearby Properties

AddressPriceDistance
6 Cross Street £ 165,0000.02 KM
16 Cross Street £ 109,5000.02 KM
13 Cross Street £ 98,0000.02 KM
17 Cross Street £ 190,0000.02 KM
11 Cross Street £ 77,0000.02 KM