Beverley Road, Hull
By Tulip Investment Sales
£ 280,000
Reviews
2 out of 5 stars
Tulip Investment Sales says ..
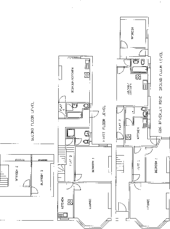
Investment Opportunity close to Hull University Student Accommodation Blocks of 4 flats Currently let to Students for academic year 2023/2024 Gross Rental Income £29,255 Gross Yield 10.45% pa The property comprises: Flat 1 - 1 bedroom - Rental income for...
Property Oracle says ..
This property on Beverley Road in Hull is marketed as a six-bedroom HMO (House of Multiple Occupancy), ideally suited for student renters. Its proximity to Hull University is a significant advantage, ensuring consistent occupancy and high rental yield. The listing highlights a substantial gross rental income, making it an attractive investment opportunity. The interior appears functional, though it shows signs of age in various rooms and the bathroom. The finishes are not high-end, and the property would likely benefit from modernisation to compete with similar new builds in the area. However, given the high demand for student housing near the university, the current condition might not be a major deterrent for investors seeking rental returns. The lack of information regarding plot size is a notable absence from the listing, potentially limiting buyer appeal if ample outdoor space is a requirement. Overall, it is a fairly standard property in the area and should appeal to investors looking for a return on investment, rather than a buyer looking for a house to live in. Overall, further details regarding the property’s size and specific features would enhance the attractiveness of the listing and provide a better understanding of its overall value.
Therefore, we give this property 5 / 10. *Disclaimer: This is our option and does constitute a recommendation or financial advice. Do your own research. *
- Price
- 7
- Condition
- 5
- Location
- 7
- Land
- 1
- Bedrooms
- 6
- Bathrooms
- 4
The heatmap indicates the level of crime in the area. The color of the heatmap indicates the crime severity and recency.
Metrics Year-on-Year
- Average area value
- 136,095.00 £Increased by 6.30 %
- Average area rental value
- 697.00 £/moIncreased by 17.74 %
- Est rental Yield
- 6.15 %Increased by 10.81 %
- Crime Rate
- 6.00 %Unchanged by 0.00 %
Agent Activity
Tulip Investment Sales marked this listing as sold.
Tulip Investment Sales created the listing.
Nearby Schools
| Name | Type | Ofsted | Distance |
|---|---|---|---|
| Endsleigh Holy Child Vc Academy | Academy Converter | Good | 0.28 KM |
| St Nicholas Primary School | Academy Converter | Good | 0.47 KM |
| Newland St John'S Church Of England Academy | Academy Converter | Good | 0.50 KM |
| St Mary'S College, Voluntary Catholic Academy | Academy Converter | 1.03 KM | |
| Lambert Children'S Centre | Children's Centre Linked Site | 1.04 KM |
Images
Nearby Streets
| Name | Average Price | Average Sqft | Distance |
|---|---|---|---|
| Beverley Road | £ 228,317 | 0 | 0.00 KM |
| Esmond Street | £ 0 | 0 | 0.00 KM |
| Bethnal Green | £ 0 | 0 | 0.00 KM |
| Rokel Court | £ 0 | 0 | 0.00 KM |
| Beaconsfield Street | £ 0 | 0 | 0.00 KM |
Nearby Transport
| Name | NLC | TLC | Distance |
|---|---|---|---|
| Hull | 8126 | HUL | 3.23 KM |
| Cottingham | 8056 | CGM | 5.84 KM |
| New Holland | 6209 | NHL | 7.80 KM |
| Barrow Haven | 6212 | BAV | 9.30 KM |
Nearby Listings
| Address | Price | Type | Score | Distance |
|---|---|---|---|---|
| Beverley Road, Hull | £ 280,000 | BUY | 5 / 10 | 0.00 KM |
| Beck House, 628 Beverley Road | £ 300,000 | BUY | 6 / 10 | 0.01 KM |
| Beverley Road, Hull, HU6 | £ 240,000 | BUY | Unknown | 0.04 KM |
| Beverley Road, Hull, HU6 7LH | £ 325,000 | BUY | 5 / 10 | 0.07 KM |
| Wellesley Avenue, Bevereley Road, Hull | £ 200,000 | BUY | Unknown | 0.10 KM |
Nearby Properties
| Address | Price | Distance |
|---|---|---|
| 620 Beverley Road | £ 40,000 | 0.02 KM |
| 618 Beverley Road | £ 40,000 | 0.02 KM |
| 32 Desmond Avenue | £ 135,000 | 0.12 KM |
| 2 Desmond Avenue | £ 149,950 | 0.12 KM |
| 20 Desmond Avenue | £ 215,000 | 0.12 KM |