& Co says ..
Discover this charming semi-detached house in Fairlawn Park, London, offering a perfect blend of comfort and convenience. This three-bedroom home is ideal for families or professionals seeking a peaceful retreat, offered chain free
Property Oracle says ..
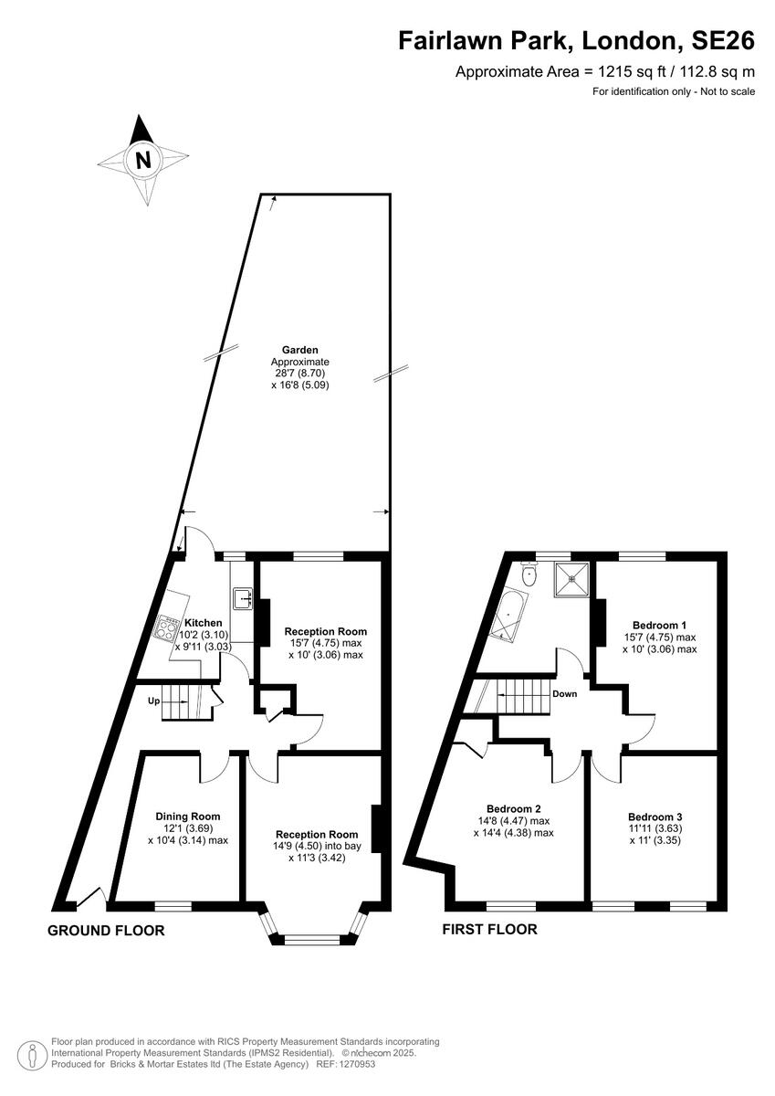
This property is a 3-bedroom, 1-bathroom semi-detached house located in Sydenham, London. The list price is £600,000, and the property is 2,232 sqft with a 1,215 sqft plot. The area has an average price of £521,464 and an average price per sqft of £547. The property requires extensive renovation, as seen in the provided images. The location is convenient with nearby transportation and schools. While the property has a garden, it needs significant landscaping. Considering the required renovations, the list price may be slightly high compared to the average price per sqft in the area.
Therefore, we give this property 4 / 10. *Disclaimer: This is our option and does constitute a recommendation or financial advice. Do your own research. *
- Price
- 5
- Condition
- 2
- Location
- 7
- Land
- 4
- Bedrooms
- 3
- Bathrooms
- 1
- Sqft (est)
- 2,232.00
- Lot (est)
- 1,215.00
The heatmap indicates the level of crime in the area. The color of the heatmap indicates the crime severity and recency.
Metrics Year-on-Year
- Average area value
- 541,000.00 £Increased by 7.25 %
- Est sale value
- 1,524,456.00 £Increased by 51.44 %
- Average area rental value
- 1,900.00 £/moIncreased by 1.17 %
- Est letting value
- 4,464.00 £/moIncreased by 100.00 %
- Est rental Yield
- 4.21 %Decreased by 5.82 %
- Crime Rate
- 11.00 %Unchanged by 0.00 %
Agent Activity
& Co created the listing.
Nearby Schools
| Name | Type | Ofsted | Distance |
|---|---|---|---|
| Our Lady And St Philip Neri Roman Catholic Primary School | Voluntary Aided School | Good | 0.09 KM |
| St Michael'S Church Of England Primary School | Voluntary Aided School | Good | 0.34 KM |
| Adamsrill Primary School | Community School | Good | 0.55 KM |
| Haseltine Primary School | Community School | Good | 0.69 KM |
| Alexandra Junior School | Academy Converter | Good | 0.71 KM |
Images
Nearby Streets
| Name | Average Price | Average Sqft | Distance |
|---|---|---|---|
| Broseley Grove | £ 0 | 0 | 0.00 KM |
| Thomas Dean Road | £ 625,000 | 0 | 0.00 KM |
| Alexandra Road | £ 0 | 0 | 0.00 KM |
| Carters Lane | £ 0 | 0 | 0.00 KM |
| Hatcham Street | £ 380,163 | 0 | 0.00 KM |
Nearby Transport
| Name | NLC | TLC | Distance |
|---|---|---|---|
| Lower Sydenham | 5053 | LSY | 0.99 KM |
| New Beckenham | 5058 | NBC | 1.28 KM |
| Sydenham | 5437 | SYD | 1.34 KM |
| Penge East | 5072 | PNE | 1.52 KM |
| Kent House | 5080 | KTH | 1.57 KM |
Nearby Listings
| Address | Price | Type | Score | Distance |
|---|---|---|---|---|
| Fairlawn Park, London, SE26 | £ 600,000 | BUY | 4 / 10 | 0.00 KM |
| Quebec Close, Eastbourne, East Sussex, BN23 | £ 130,000 | BUY | 6 / 10 | 0.08 KM |
| Fairlawn Park, Sydenham | £ 750,000 | BUY | 7 / 10 | 0.09 KM |
| Fairlawn Park, London | £ 1,100,000 | BUY | 7 / 10 | 0.11 KM |
| Watlington Grove, London, SE26 | £ 800,000 | BUY | Unknown | 0.12 KM |
Nearby Properties
| Address | Price | Distance |
|---|---|---|
| 229 Sydenham Road | £ 825,000 | 0.07 KM |
| 251 Sydenham Road | £ 377,500 | 0.07 KM |
| 227 Sydenham Road | £ 139,000 | 0.07 KM |
| 249 Sydenham Road | £ 83,500 | 0.07 KM |
| 194 Sydenham Road | £ 138,000 | 0.09 KM |