Langford Russell says ..
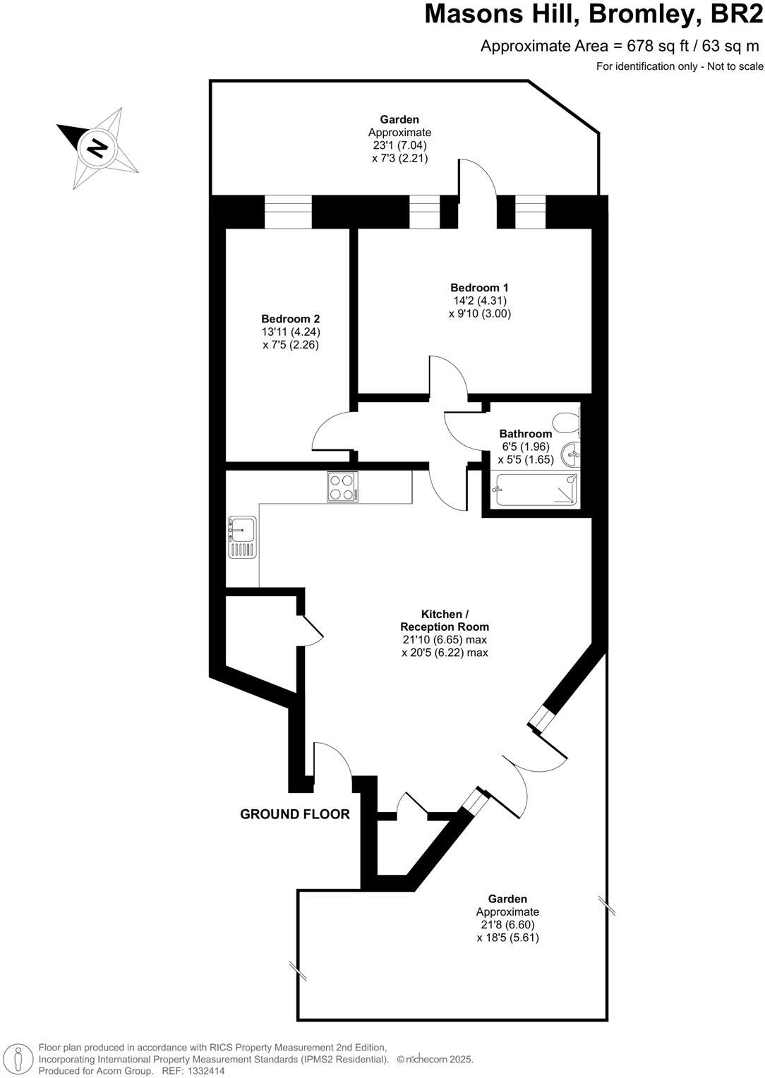
* GUIDE PRICE £375,000 - £400,000 * Langford Russell are pleased to present this modern two bedroom apartment situated within close proximity to Bromley South. The immaculate living space comprises of a modern fitted kitchen with all appliances included and an o...
Property Oracle says ..
Therefore, we give this property 7 / 10. *Disclaimer: This is our option and does constitute a recommendation or financial advice. Do your own research. *
- Price
- 8
- Condition
- 8
- Location
- 7
- Land
- 6
- Bedrooms
- 2
- Bathrooms
- 1
- Sqft (est)
- 678.00
- Lot (est)
- 571.14
The heatmap indicates the level of crime in the area. The color of the heatmap indicates the crime severity and recency.
Metrics Year-on-Year
- Average area value
- 591,923.00 £Increased by 11.40 %
- Est sale value
- 408,156.00 £Increased by 7.89 %
- Average area rental value
- 1,705.00 £/moDecreased by 9.16 %
- Est letting value
- 678.00 £/moUnchanged by 0.00 %
- Est rental Yield
- 3.46 %Decreased by 18.40 %
- Crime Rate
- 5.00 %Unchanged by 0.00 %
from 531,371.00 £
from 378,324.00 £
from 1,877.00 £/mo
from 678.00 £/mo
from 4.24 %
from 5.00 %
Agent Activity
Langford Russell created the listing.
Nearby Schools
| Name | Type | Ofsted | Distance |
|---|---|---|---|
| Bromley Trust Alternative Provision Academy | Academy Alternative Provision Sponsor Led | Good | 0.32 KM |
| The Ravensbourne School | Academy Converter | Good | 0.57 KM |
| Raglan Primary School | Academy Converter | Good | 0.73 KM |
| Bickley Primary School | Academy Converter | 0.95 KM | |
| La Fontaine Academy | Free Schools | Good | 1.00 KM |
Images
Nearby Streets
| Name | Average Price | Average Sqft | Distance |
|---|---|---|---|
| Gainsborough Court | £ 0 | 0 | 0.00 KM |
| Cromwell Close | £ 0 | 0 | 0.00 KM |
| Tiger Lane | £ 0 | 0 | 0.00 KM |
| Nelson Road | £ 570,000 | 0 | 0.00 KM |
| Bromley Industrial Centre | £ 0 | 0 | 0.00 KM |
Nearby Transport
| Name | NLC | TLC | Distance |
|---|---|---|---|
| Bromley South | 5064 | BMS | 1.06 KM |
| Bromley North | 5096 | BMN | 1.74 KM |
| Sundridge Park | 5155 | SUP | 2.11 KM |
| Bickley | 5063 | BKL | 2.23 KM |
| Hayes | 5050 | HYS | 2.69 KM |
Nearby Listings
| Address | Price | Type | Score | Distance |
|---|---|---|---|---|
| Masons Hill, Bromley | £ 375,000 | BUY | 7 / 10 | 0.00 KM |
| Hayes Lane, Bromley, BR2 | £ 1,250,000 | BUY | 8 / 10 | 0.03 KM |
| Masons Hill, Bromley | £ 400,000 | BUY | Unknown | 0.03 KM |
| 48 Masons Hill, Bromley, BR2 | £ 435,000 | BUY | 7 / 10 | 0.03 KM |
| Masons Hill, Bromley | £ 475,000 | BUY | Unknown | 0.03 KM |
Nearby Properties
| Address | Price | Distance |
|---|---|---|
| 7a Homesdale Road | £ 240,000 | 0.09 KM |
| 8 Fielding Lane | £ 618,000 | 0.18 KM |
| 2 Fielding Lane | £ 622,000 | 0.18 KM |
| 4 Fielding Lane | £ 650,000 | 0.18 KM |
| 16 Vincent Close | £ 530,000 | 0.20 KM |