John Payne says ..
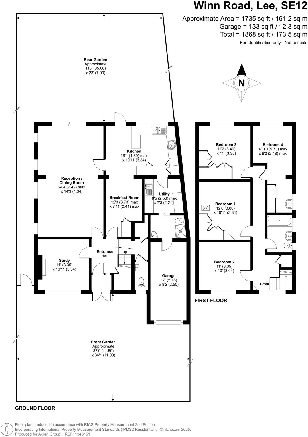
An extended four double bedroom detached family home boasting accommodation of approximately 1868 sq ft and requiring some modernisation throughout. Situated on the popular Winn Road equidistant to both Lee and Grove Park train stations. Accommodation briefly comprises entrance hall, b...
Property Oracle says ..
This is a detached property located on Winn Road, Lee, in the Greenwich district of London. The house offers four bedrooms and one bathroom. While the property benefits from a detached garage and a good-sized garden, it is in need of significant renovation and modernisation. The interior reflects a dated style, which may require a buyer to invest further to bring it up to modern standards. The property is located within a reasonable distance of schools and transportation links. The asking price of £795,000 appears somewhat high considering the condition of the property and the average price per square foot in the area.
Therefore, we give this property 5 / 10. *Disclaimer: This is our option and does constitute a recommendation or financial advice. Do your own research. *
- Price
- 5
- Condition
- 4
- Location
- 7
- Land
- 7
- Bedrooms
- 4
- Bathrooms
- 1
The heatmap indicates the level of crime in the area. The color of the heatmap indicates the crime severity and recency.
Metrics Year-on-Year
- Average area value
- 549,583.00 £Decreased by 22.65 %
- Average area rental value
- 2,515.00 £/moIncreased by 55.63 %
- Est rental Yield
- 5.49 %Increased by 101.10 %
- Crime Rate
- 1.00 %Unchanged by 0.00 %
Agent Activity
John Payne created the listing.
Nearby Schools
| Name | Type | Ofsted | Distance |
|---|---|---|---|
| Horn Park Primary School | Academy Converter | Good | 0.45 KM |
| Cooper'S Lane Primary School | Community School | Good | 0.96 KM |
| Middle Park Primary School | Community School | Good | 1.13 KM |
| Colfe'S School | Other Independent School | 1.19 KM | |
| Eltham College | Other Independent School | 1.25 KM |
Images
Nearby Streets
| Name | Average Price | Average Sqft | Distance |
|---|---|---|---|
| Gavestone Crescent | £ 0 | 0 | 0.00 KM |
| Eversfielld Court | £ 0 | 0 | 0.00 KM |
| Ferndown Road | £ 0 | 0 | 0.00 KM |
| Stratfield House | £ 0 | 0 | 0.00 KM |
| Westhorne Avenue | £ 350,000 | 0 | 0.00 KM |
Nearby Transport
| Name | NLC | TLC | Distance |
|---|---|---|---|
| Grove Park | 5139 | GRP | 1.40 KM |
| Lee | 5110 | LEE | 1.83 KM |
| Kidbrooke | 5108 | KDB | 2.27 KM |
| Mottingham | 5118 | MTG | 2.45 KM |
| Eltham | 5103 | ELW | 3.12 KM |
Nearby Listings
| Address | Price | Type | Score | Distance |
|---|---|---|---|---|
| Winn Road, Lee | £ 795,000 | BUY | 5 / 10 | 0.00 KM |
| Winn Road, Lee | £ 700,000 | BUY | 6 / 10 | 0.03 KM |
| Winn Road, Lee | £ 750,000 | BUY | Unknown | 0.09 KM |
| Winn Road, London, SE12 | £ 760,000 | BUY | 6 / 10 | 0.10 KM |
| Jevington Way, London, SE12 | £ 475,000 | BUY | 7 / 10 | 0.11 KM |
Nearby Properties
| Address | Price | Distance |
|---|---|---|
| 96 Winn Road | £ 440,000 | 0.06 KM |
| 84 Winn Road | £ 293,000 | 0.06 KM |
| 98 Winn Road | £ 100,000 | 0.06 KM |
| 105 Winn Road | £ 670,000 | 0.06 KM |
| 86 Winn Road | £ 715,000 | 0.06 KM |