PA
The Cross Way, Kenton, Newcastle upon Tyne, Tyne and Wear, NE3 4SR
By Pattinson Estate Agents
£ 100,000
Reviews
2 out of 5 stars
Pattinson Estate Agents says ..
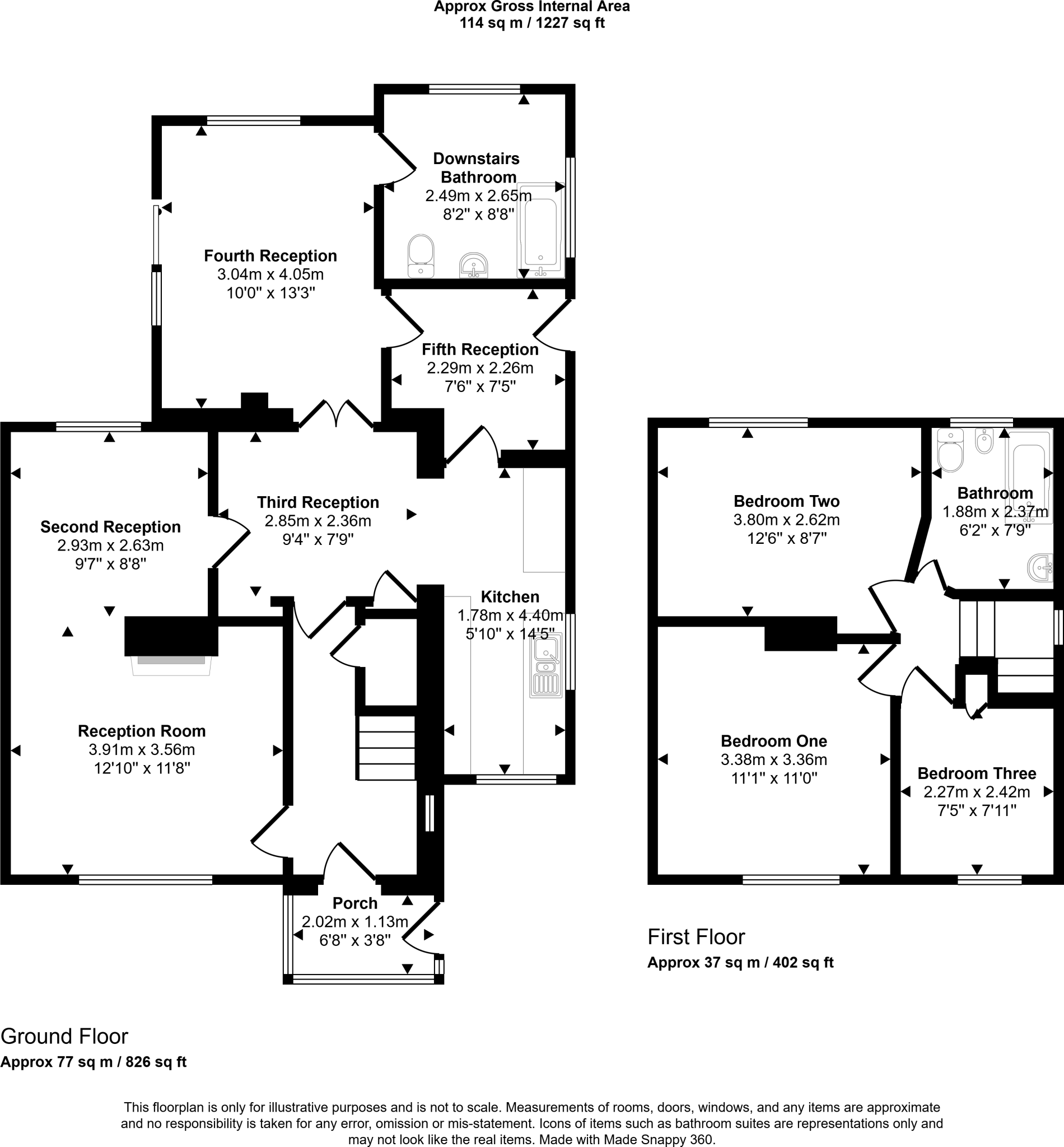
An impressive semi-detached residence located in the highly sought-after Kenton region of Newcastle upon Tyne. This freehold property, offers no onward chain. This generously proportioned house, whilst in need of renovation provides ample space for a growing family or an investor, boasting thr...
Property Oracle says ..
Therefore, we give this property 5 / 10. *Disclaimer: This is our option and does constitute a recommendation or financial advice. Do your own research. *
- Price
- 9
- Condition
- 2
- Location
- 7
- Land
- 5
- Bedrooms
- 3
- Bathrooms
- 2
- Sqft (est)
- 1,009.88
The heatmap indicates the level of crime in the area. The color of the heatmap indicates the crime severity and recency.
Metrics Year-on-Year
- Average area value
- 200,667.00 £Decreased by 60.33 %
- Est sale value
- 255,499.64 £Decreased by 29.53 %
- Average area rental value
- 1,454.00 £/moDecreased by 8.95 %
- Est letting value
- 1,009.88 £/moUnchanged by 0.00 %
- Est rental Yield
- 8.70 %Increased by 129.55 %
- Crime Rate
- 8.00 %Unchanged by 0.00 %
from 505,808.00 £
from 362,546.92 £
from 1,597.00 £/mo
from 1,009.88 £/mo
from 3.79 %
from 8.00 %
Agent Activity
Pattinson Estate Agents created the listing.
Nearby Schools
| Name | Type | Ofsted | Distance |
|---|---|---|---|
| Wyndham Primary School | Academy Converter | Good | 0.65 KM |
| Mountfield Primary School | Academy Converter | Good | 0.68 KM |
| Sure Start North Moor And Northern Villages Children'S Centre | Children's Centre Linked Site | 0.83 KM | |
| Sure Start Gosforth & Parklands Children'S Centre | Children's Centre Linked Site | 0.83 KM | |
| Newcastle Bridges School | Academy Alternative Provision Converter | 1.10 KM |
Images
Nearby Streets
| Name | Average Price | Average Sqft | Distance |
|---|---|---|---|
| The Garth | £ 0 | 0 | 0.00 KM |
| The Green | £ 190,000 | 0 | 0.00 KM |
| Mansell Place | £ 0 | 0 | 0.00 KM |
| Crantock Road | £ 0 | 0 | 0.00 KM |
| The Croft | £ 0 | 0 | 0.00 KM |
Nearby Transport
| Name | NLC | TLC | Distance |
|---|---|---|---|
| Newcastle | 7728 | NCL | 4.92 KM |
| Metrocentre | 7725 | MCE | 5.21 KM |
| Manors | 7603 | MAS | 5.64 KM |
| Dunston | 7744 | DOT | 5.76 KM |
| Blaydon | 7503 | BLO | 8.30 KM |
Nearby Listings
| Address | Price | Type | Score | Distance |
|---|---|---|---|---|
| The Cross Way, Kenton, Newcastle upon Tyne, Tyne and Wear, NE3 4SR | £ 100,000 | BUY | 5 / 10 | 0.00 KM |
| Drummond Road, Kenton, Newcastle Upon Tyne, NE3 | £ 190,000 | BUY | 7 / 10 | 0.03 KM |
| The Cross Way, Kenton, Newcastle Upon Tyne | £ 175,000 | BUY | 7 / 10 | 0.17 KM |
| The Garth, Kenton, Newcastle Upon Tyne | £ 325,000 | BUY | 7 / 10 | 0.18 KM |
| Millfield Avenue, Kenton | £ 174,950 | BUY | 6 / 10 | 0.18 KM |
Nearby Properties
| Address | Price | Distance |
|---|---|---|
| 33 The Cross Way | £ 154,000 | 0.04 KM |
| 2 Drummond Road | £ 163,500 | 0.12 KM |
| 11 Drummond Road | £ 100,000 | 0.12 KM |
| 10 Drummond Road | £ 135,000 | 0.12 KM |
| 9 Drummond Road | £ 155,000 | 0.12 KM |