Dexters says ..
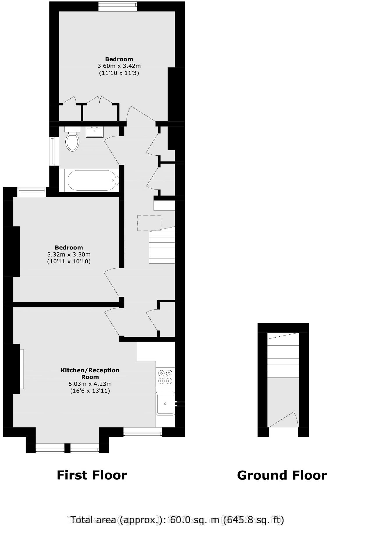
An immaculately finished first floor two double bedroom flat located on a quiet residential street in the Sands End area of Fulham. Benefiting from its own private entrance with a spacious open plan kitchen living room with bay windows.
Property Oracle says ..
This is a well-presented two-bedroom flat in the Sands End area of Fulham. The property benefits from a modern interior, including a recently renovated kitchen and bathroom. While it has limited land, its location offers convenient access to local amenities, schools, and transportation. The asking price appears reasonable compared to average property values in the area, making it an attractive opportunity for potential buyers.
Therefore, we give this property 6 / 10. *Disclaimer: This is our option and does constitute a recommendation or financial advice. Do your own research. *
- Price
- 7
- Condition
- 9
- Location
- 7
- Land
- 3
- Bedrooms
- 2
- Bathrooms
- 1
- Sqft (est)
- 645.83
The heatmap indicates the level of crime in the area. The color of the heatmap indicates the crime severity and recency.
Metrics Year-on-Year
- Average area value
- 1,383,762.00 £Increased by 8.10 %
- Est sale value
- 1,325,888.99 £Increased by 67.73 %
- Average area rental value
- 3,390.00 £/moIncreased by 11.04 %
- Est letting value
- 3,229.15 £/moIncreased by 150.00 %
- Est rental Yield
- 2.94 %Increased by 2.80 %
- Crime Rate
- 2.00 %Unchanged by 0.00 %
Agent Activity
Dexters created the listing.
Nearby Schools
| Name | Type | Ofsted | Distance |
|---|---|---|---|
| Ray'S Playhouse Ltd. | Children's Centre Linked Site | 0.36 KM | |
| Langford Primary School | Academy Sponsor Led | Outstanding | 0.40 KM |
| Ormiston Courtyard Academy | Academy Alternative Provision Converter | Outstanding | 0.40 KM |
| L'Ecole Des Petits School | Other Independent School | Outstanding | 0.46 KM |
| Thomas'S Fulham | Other Independent School | 0.63 KM |
Images
Nearby Streets
| Name | Average Price | Average Sqft | Distance |
|---|---|---|---|
| Potters Road | £ 822,500 | 0 | 0.00 KM |
| Langford Road | £ 0 | 0 | 0.00 KM |
| Watermeadow Lane | £ 782,375 | 0 | 0.00 KM |
| William Morris Way | £ 1,505,000 | 0 | 0.00 KM |
| Bryan's Alley | £ 0 | 0 | 0.00 KM |
Nearby Transport
| Name | NLC | TLC | Distance |
|---|---|---|---|
| Imperial Wharf | 9586 | IMW | 0.85 KM |
| Wandsworth Town | 5576 | WNT | 0.92 KM |
| Clapham Junction | 5595 | CLJ | 2.03 KM |
| West Brompton | 8875 | WBP | 2.15 KM |
| Earlsfield | 5584 | EAD | 3.00 KM |
Nearby Listings
| Address | Price | Type | Score | Distance |
|---|---|---|---|---|
| Althea Street, Fulham | £ 625,000 | BUY | 6 / 10 | 0.00 KM |
| Althea Street, London, SW6 | £ 625,000 | BUY | Unknown | 0.00 KM |
| Stephendale Road, London, SW6 | £ 850,000 | BUY | 8 / 10 | 0.03 KM |
| Stephendale Road, London, SW6 | £ 800,000 | BUY | 7 / 10 | 0.04 KM |
| Althea Street, London, SW6 | £ 650,000 | BUY | 8 / 10 | 0.05 KM |
Nearby Properties
| Address | Price | Distance |
|---|---|---|
| 62 Stephendale Road | £ 1,540,000 | 0.03 KM |
| 66 Stephendale Road | £ 620,000 | 0.03 KM |
| 64b Stephendale Road | £ 450,000 | 0.03 KM |
| 64 Stephendale Road | £ 222,000 | 0.03 KM |
| 54b Stephendale Road | £ 645,000 | 0.03 KM |