Plot At 6 Drovers Bank, Linlithgow, West Lothian
By Rettie & Co
£ 180,000
Reviews
3 out of 5 stars
Rettie & Co says ..
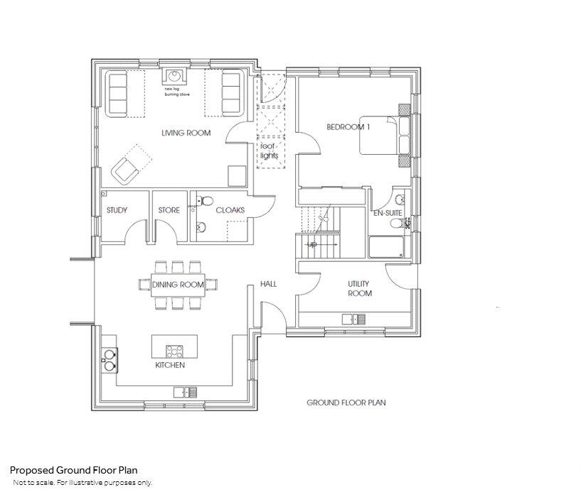
A rarely available house plot with full planning permission for a statement, contemporary home, which forms part of a charming enclave of semi-rural homes, in a sought-after setting, some 3.5 miles from Linlithgow. Drovers Bank occupies an enviable position, which affords the amenity ...
Property Oracle says ..
This is a plot of land for sale in Linlithgow, West Lothian. It represents an opportunity to build a bespoke home in a desirable location. While the plot itself requires significant investment to develop, the location offers a blend of rural tranquility and accessibility to transportation links. The price appears reasonable for the area, making it an attractive proposition for those looking to create their dream home.
Therefore, we give this property 6 / 10. *Disclaimer: This is our option and does constitute a recommendation or financial advice. Do your own research. *
- Price
- 7
- Condition
- 3
- Location
- 7
- Land
- 8
- Bedrooms
- 0
- Bathrooms
- 0
The heatmap indicates the level of crime in the area. The color of the heatmap indicates the crime severity and recency.
Metrics Year-on-Year
- Average area value
- 712,500.00 £Increased by 63.65 %
- Average area rental value
- 1,330.00 £/moIncreased by 17.28 %
- Est rental Yield
- 2.24 %Decreased by 28.43 %
- Crime Rate
- 0.00 %
Agent Activity
Rettie & Co created the listing.
Images
Nearby Streets
| Name | Average Price | Average Sqft | Distance |
|---|---|---|---|
| Drovers Bank | £ 225,000 | 0 | 0.00 KM |
| Manse View | £ 0 | 0 | 0.00 KM |
| The Beech Tree | £ 195,000 | 0 | 0.00 KM |
| Auldhill Drive | £ 150,000 | 0 | 0.00 KM |
| Auldhill Road | £ 98,000 | 0 | 0.00 KM |
Nearby Transport
| Name | NLC | TLC | Distance |
|---|---|---|---|
| Linlithgow | 9438 | LIN | 6.98 KM |
| Uphall | 9373 | UHA | 7.50 KM |
| Livingston North | 9371 | LSN | 8.74 KM |
Nearby Listings
| Address | Price | Type | Score | Distance |
|---|---|---|---|---|
| Plot At 6 Drovers Bank, Linlithgow, West Lothian | £ 180,000 | BUY | 6 / 10 | 0.00 KM |
| Pardovan Holdings Building Plot, Linlithgow | £ 225,000 | BUY | 8 / 10 | 0.10 KM |
| Main Street, Philpstoun, EH49 | £ 450,000 | BUY | 8 / 10 | 0.58 KM |
| Church Court, Philpstoun, EH49 | £ 120,000 | BUY | 7 / 10 | 0.60 KM |
| 10 The Avenue, Philpstoun, By Linlithgow, EH49 6RE | £ 370,000 | BUY | 7 / 10 | 0.62 KM |