High Street, London Colney, St. Albans, Hertfordshire, AL2
By Frost's Estate Agents
£ 425,000
Reviews
3 out of 5 stars
Frost's Estate Agents says ..
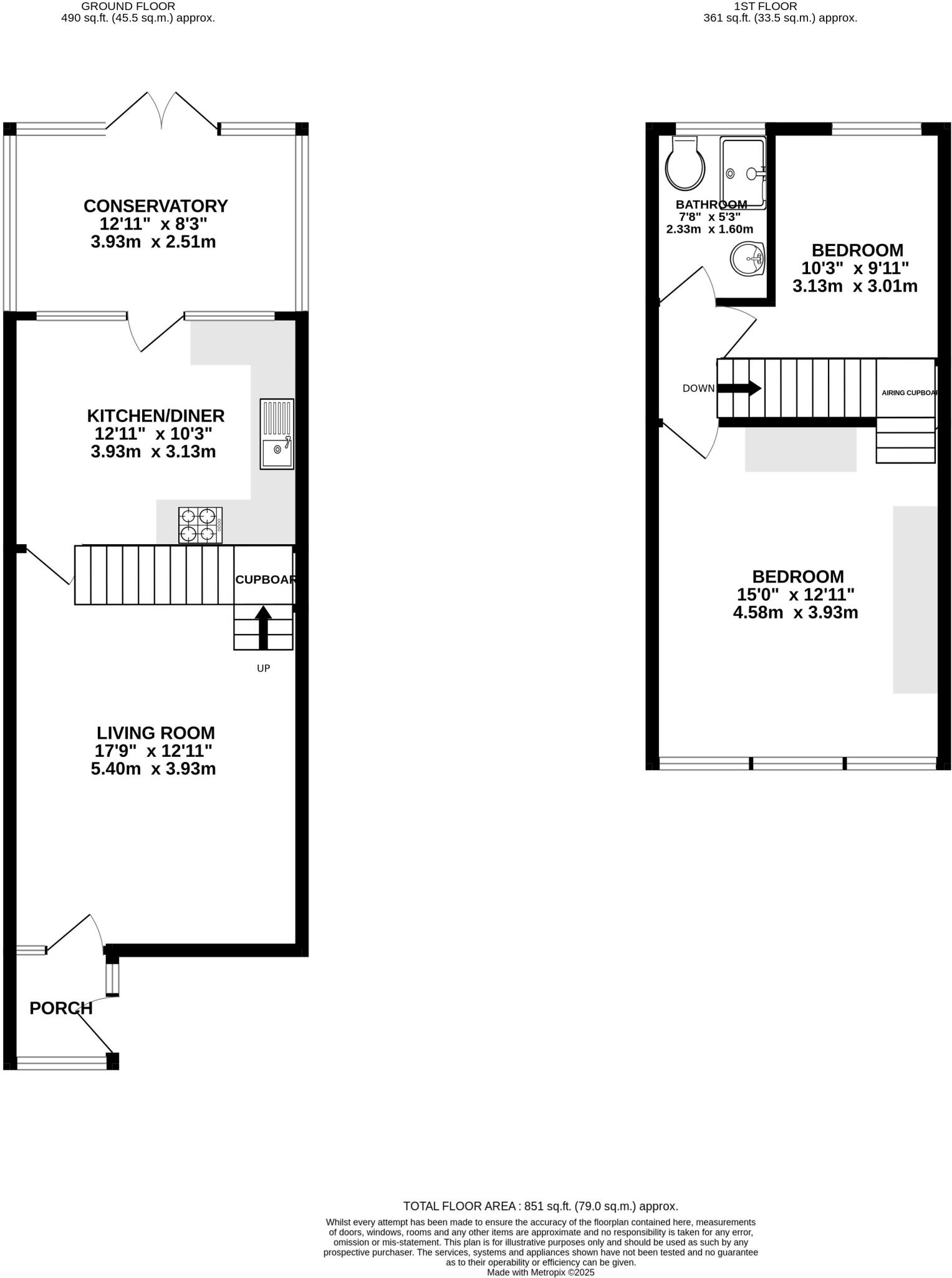
This two bedroom, mid-terrace home sits along High Street in London Colney, offering well presented accommodation with both a conservatory and garage. The property enjoys a central setting within easy reach of local shops, schooling and green spaces, making it ideal for first-time buyers or downs...
Property Oracle says ..
This is a two-bedroom terraced house located on High Street, London Colney. The property benefits from its proximity to local schools and transportation links. The house appears to be in good condition, featuring a modern kitchen and bathroom. It also has a conservatory and a garden with a shed. The asking price of £425,000 seems reasonable given the location, condition, and size of the property.
Therefore, we give this property 6 / 10. *Disclaimer: This is our option and does constitute a recommendation or financial advice. Do your own research. *
- Price
- 7
- Condition
- 7
- Location
- 7
- Land
- 6
- Bedrooms
- 2
- Bathrooms
- 1
- Sqft (est)
- 851.00
The heatmap indicates the level of crime in the area. The color of the heatmap indicates the crime severity and recency.
Metrics Year-on-Year
- Average area value
- 511,000.00 £Increased by 12.42 %
- Est sale value
- 500,388.00 £Increased by 14.17 %
- Average area rental value
- 1,413.00 £/moDecreased by 25.47 %
- Est letting value
- 851.00 £/moDecreased by 50.00 %
- Est rental Yield
- 3.32 %Decreased by 33.73 %
- Crime Rate
- 14.00 %Unchanged by 0.00 %
Agent Activity
Frost's Estate Agents created the listing.
Nearby Schools
| Name | Type | Ofsted | Distance |
|---|---|---|---|
| Sa10 London Colney Family Centre | Children's Centre | 0.73 KM | |
| Saint Bernadette Catholic Primary School | Voluntary Aided School | Good | 0.84 KM |
| London Colney Primary & Nursery School | Community School | Good | 0.86 KM |
| Bowmansgreen Primary School | Community School | Good | 0.98 KM |
| Clore Shalom School | Voluntary Aided School | Good | 1.82 KM |
Images
Nearby Streets
| Name | Average Price | Average Sqft | Distance |
|---|---|---|---|
| Reed Close | £ 0 | 0 | 0.00 KM |
| Birch Way | £ 675,000 | 0 | 0.00 KM |
| Armstrong Close | £ 690,000 | 0 | 0.00 KM |
| Chicken Lane | £ 0 | 0 | 0.00 KM |
| Farm Cottages | £ 0 | 0 | 0.00 KM |
Nearby Transport
| Name | NLC | TLC | Distance |
|---|---|---|---|
| Radlett | 1546 | RDT | 4.79 KM |
| St Albans City | 1548 | SAC | 5.15 KM |
| Park Street | 1561 | PKT | 5.34 KM |
| How Wood (Hertfordshire) | 1563 | HWW | 5.80 KM |
| St Albans Abbey | 1562 | SAA | 6.19 KM |
Nearby Listings
| Address | Price | Type | Score | Distance |
|---|---|---|---|---|
| High Street, London Colney, St. Albans, Hertfordshire, AL2 | £ 425,000 | BUY | 6 / 10 | 0.00 KM |
| High Street, London Colney, St. Albans, Hertfordshire, AL2 | £ 385,000 | BUY | 7 / 10 | 0.01 KM |
| High Street, London Colney, St. Albans, AL2 | £ 350,000 | BUY | 7 / 10 | 0.02 KM |
| High Street, London Colney | £ 395,000 | BUY | 6 / 10 | 0.05 KM |
| High Street, London Colney, St. Albans, AL2 | £ 750,000 | BUY | Unknown | 0.07 KM |
Nearby Properties
| Address | Price | Distance |
|---|---|---|
| 47 High Street | £ 199,950 | 0.02 KM |
| 49 High Street | £ 335,500 | 0.02 KM |
| 77 High Street | £ 295,000 | 0.02 KM |
| 51 High Street | £ 264,000 | 0.02 KM |
| 53 High Street | £ 197,168 | 0.02 KM |