NE
Dixons Road, Market Deeping, PE6
By Newton Fallowell
£ 260,000
Reviews
3 out of 5 stars
Newton Fallowell says ..
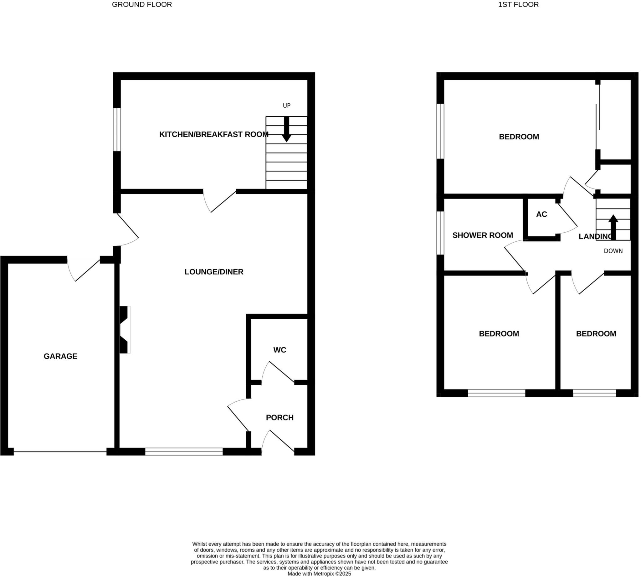
Newton Fallowell are proud to offer for sale with NO ONWARD CHAIN, this three bedroom semi detached house in the ever popular cul-de-sac of Dixons Road. The property is in good decorative order throughout and the ground floor accommodation briefly comprises of an entrance porch with WC off, a ...
Property Oracle says ..
Therefore, we give this property 7 / 10. *Disclaimer: This is our option and does constitute a recommendation or financial advice. Do your own research. *
- Price
- 7
- Condition
- 8
- Location
- 7
- Land
- 7
- Bedrooms
- 3
- Bathrooms
- 1
- Sqft (est)
- 1,214.00
The heatmap indicates the level of crime in the area. The color of the heatmap indicates the crime severity and recency.
Metrics Year-on-Year
- Average area value
- 366,033.00 £Increased by 22.85 %
- Est sale value
- 434,612.00 £Decreased by 2.19 %
- Average area rental value
- 1,155.00 £/moDecreased by 5.41 %
- Est letting value
- 1,214.00 £/moUnchanged by 0.00 %
- Est rental Yield
- 3.79 %Decreased by 22.97 %
- Crime Rate
- 11.00 %Unchanged by 0.00 %
from 297,963.00 £
from 444,324.00 £
from 1,221.00 £/mo
from 1,214.00 £/mo
from 4.92 %
from 11.00 %
Agent Activity
Newton Fallowell created the listing.
Nearby Schools
| Name | Type | Ofsted | Distance |
|---|---|---|---|
| Market Deeping Children'S Centre | Children's Centre Linked Site | 0.54 KM | |
| William Hildyard Church Of England Primary And Nursery School | Voluntary Aided School | Good | 0.55 KM |
| Market Deeping Community Primary School | Community School | Requires improvement | 0.59 KM |
| Linchfield Academy | Academy Sponsor Led | 0.84 KM | |
| The Deepings School | Academy Converter | Requires improvement | 1.83 KM |
Images
Nearby Streets
| Name | Average Price | Average Sqft | Distance |
|---|---|---|---|
| Bramley Road | £ 0 | 0 | 0.00 KM |
| Market Place | £ 330,000 | 0 | 0.00 KM |
| Elm Close | £ 0 | 0 | 0.00 KM |
| Queen's Avenue | £ 0 | 0 | 0.00 KM |
| Stamford Close | £ 366,667 | 0 | 0.00 KM |
Nearby Listings
| Address | Price | Type | Score | Distance |
|---|---|---|---|---|
| Dixons Road, Market Deeping, PE6 | £ 195,000 | BUY | 6 / 10 | 0.00 KM |
| Dixons Road, Market Deeping, PE6 | £ 260,000 | BUY | 7 / 10 | 0.00 KM |
| Dixons Road, Market Deeping, PE6 | £ 230,000 | BUY | 6 / 10 | 0.00 KM |
| Dixons Road, Market Deeping, PE6 | £ 295,000 | BUY | 7 / 10 | 0.01 KM |
| Dixons Road, Market Deeping, PE6 | £ 215,000 | BUY | 5 / 10 | 0.03 KM |
Nearby Properties
| Address | Price | Distance |
|---|---|---|
| 7a Dixons Road | £ 144,000 | 0.00 KM |
| 21 Dixons Road | £ 178,000 | 0.00 KM |
| 18 Dixons Road | £ 149,951 | 0.00 KM |
| 40 Dixons Road | £ 180,000 | 0.00 KM |
| 16 Dixons Road | £ 167,000 | 0.00 KM |