IAD says ..
Nestled on a quiet cul-de-sac in Sutton’s sought-after Mostyn Close, this well-presented four-bedroom semi-link home offers a blend of comfort and functionality
Property Oracle says ..
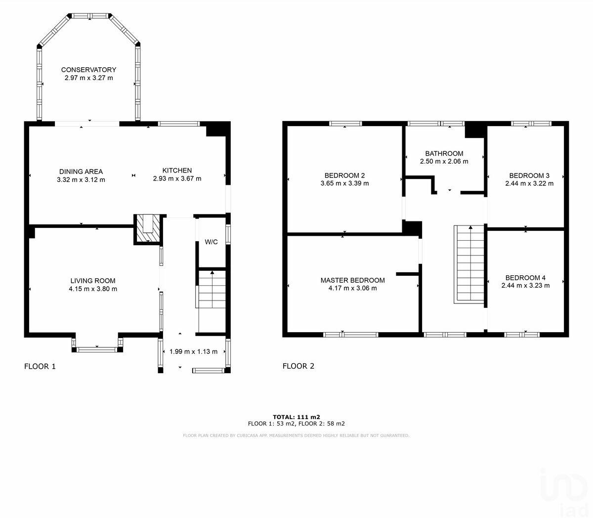
This is a four-bedroom property in Sutton, Cambridgeshire. It offers a good amount of living space at 1,194.79 sqft and includes a garden and garage. The property is located in a residential area with access to local schools and amenities. While the property is in generally good condition, some areas could benefit from modernisation. The asking price of £305,995 appears reasonable, given the size and location of the property, and is below the average price per square foot for the area.
Therefore, we give this property 7 / 10. *Disclaimer: This is our option and does constitute a recommendation or financial advice. Do your own research. *
- Price
- 8
- Condition
- 7
- Location
- 7
- Land
- 7
- Bedrooms
- 4
- Bathrooms
- 2
- Sqft (est)
- 1,194.79
The heatmap indicates the level of crime in the area. The color of the heatmap indicates the crime severity and recency.
Metrics Year-on-Year
- Average area value
- 291,263.00 £Decreased by 1.08 %
- Est sale value
- 416,981.71 £Increased by 25.99 %
- Average area rental value
- 980.00 £/moDecreased by 0.31 %
- Est letting value
- 1,194.79 £/mo
- Est rental Yield
- 4.04 %Increased by 0.75 %
- Crime Rate
- 101.00 %Unchanged by 0.00 %
Agent Activity
IAD created the listing.
Nearby Schools
| Name | Type | Ofsted | Distance |
|---|---|---|---|
| Sutton Child And Family Delivery Site | Children's Centre Linked Site | 0.10 KM | |
| Sutton Cofe Vc Primary School | Voluntary Controlled School | Requires improvement | 0.20 KM |
| Mepal And Witcham Church Of England Primary School | Academy Sponsor Led | Good | 2.03 KM |
| Robert Arkenstall Primary School | Community School | Good | 4.92 KM |
| Wilburton Cofe Primary School | Voluntary Controlled School | Good | 7.43 KM |
Images
Nearby Streets
| Name | Average Price | Average Sqft | Distance |
|---|---|---|---|
| Cromwell Road | £ 0 | 0 | 0.00 KM |
| Brookside | £ 0 | 0 | 0.00 KM |
| Windmill Lane | £ 0 | 0 | 0.00 KM |
| Painter's Lane | £ 0 | 0 | 0.00 KM |
| Churchill Close | £ 0 | 0 | 0.00 KM |
Nearby Listings
| Address | Price | Type | Score | Distance |
|---|---|---|---|---|
| Mostyn Close, Sutton, CB6 | £ 305,995 | BUY | 7 / 10 | 0.00 KM |
| Mostyn Close, Sutton, Ely, Cambridgeshire | £ 325,000 | BUY | 7 / 10 | 0.04 KM |
| High Street,Sutton,Ely,CB6 2NL | £ 350,000 | BUY | 7 / 10 | 0.13 KM |
| High Street, Sutton SAT NAV CB6 2NL | £ 450,000 | BUY | 6 / 10 | 0.13 KM |
| The Brook, Sutton, Ely, Cambridgeshire | £ 265,000 | BUY | 5 / 10 | 0.13 KM |
Nearby Properties
| Address | Price | Distance |
|---|---|---|
| 5 Mostyn Close | £ 280,000 | 0.02 KM |
| 19 Mostyn Close | £ 290,000 | 0.02 KM |
| 7 Mostyn Close | £ 290,000 | 0.02 KM |
| 17 Mostyn Close | £ 252,500 | 0.02 KM |
| 4 Mostyn Close | £ 225,000 | 0.02 KM |