Rampton Baseley says ..
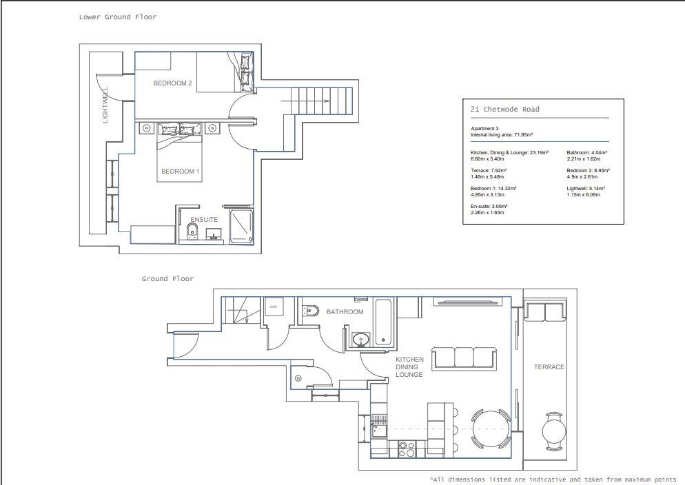
This two-bedroom apartment has been created with modern living in mind and to the highest specification throughout. Newly built in the Victorian style and measuring approximately 773 sq ft, the property benefits from two double bedrooms and great proportions throughout.
Property Oracle says ..
Therefore, we give this property 7 / 10. *Disclaimer: This is our option and does constitute a recommendation or financial advice. Do your own research. *
- Price
- 7
- Condition
- 9
- Location
- 8
- Land
- 6
- Bedrooms
- 2
- Bathrooms
- 2
The heatmap indicates the level of crime in the area. The color of the heatmap indicates the crime severity and recency.
Metrics Year-on-Year
- Average area value
- 1,130,667.00 £Increased by 13.32 %
- Average area rental value
- 2,767.00 £/moIncreased by 5.85 %
- Est rental Yield
- 2.94 %Decreased by 6.37 %
- Crime Rate
- 11.00 %Unchanged by 0.00 %
from 997,755.00 £
from 2,614.00 £/mo
from 3.14 %
from 11.00 %
Agent Activity
Rampton Baseley created the listing.
Nearby Schools
| Name | Type | Ofsted | Distance |
|---|---|---|---|
| St Anselm'S Catholic Primary School | Voluntary Aided School | Outstanding | 0.24 KM |
| Rutherford House School | Free Schools | Good | 0.48 KM |
| Hillbrook Primary School And Centre For Childen & Families | Children's Centre | 0.55 KM | |
| Eveline Day School | Other Independent School | 0.60 KM | |
| Fircroft Primary School | Community School | Good | 0.63 KM |
Images
Nearby Streets
| Name | Average Price | Average Sqft | Distance |
|---|---|---|---|
| Fovant Hut | £ 0 | 0 | 0.00 KM |
| Upper Tooting Park | £ 480,000 | 0 | 0.00 KM |
| Brook Close | £ 0 | 0 | 0.00 KM |
| Topsham Road | £ 750,000 | 0 | 0.00 KM |
| Pavilion Square | £ 450,000 | 0 | 0.00 KM |
Nearby Transport
| Name | NLC | TLC | Distance |
|---|---|---|---|
| Balham | 5399 | BAL | 1.01 KM |
| Wandsworth Common | 5395 | WSW | 1.11 KM |
| Tooting | 5389 | TOO | 1.93 KM |
| Earlsfield | 5584 | EAD | 3.21 KM |
| Clapham Junction | 5595 | CLJ | 3.26 KM |
Nearby Listings
| Address | Price | Type | Score | Distance |
|---|---|---|---|---|
| Chetwode Road, SW17 | £ 675,000 | BUY | 7 / 10 | 0.00 KM |
| Chetwode Road, SW17 | £ 825,000 | BUY | 7 / 10 | 0.00 KM |
| Chetwode Road, SW17 | £ 600,000 | BUY | Unknown | 0.00 KM |
| Chetwode Road, SW17 | £ 450,000 | BUY | 6 / 10 | 0.00 KM |
| Chetwode Road, Tooting Bec, London, SW17 | £ 700,000 | BUY | 7 / 10 | 0.03 KM |
Nearby Properties
| Address | Price | Distance |
|---|---|---|
| 48 Chetwode Road | £ 1,050,000 | 0.05 KM |
| 19 Chetwode Road | £ 157,500 | 0.05 KM |
| 10 Chetwode Road | £ 67,000 | 0.05 KM |
| 12 Chetwode Road | £ 249,000 | 0.05 KM |
| 7 Chetwode Road | £ 350,000 | 0.05 KM |