Ellangowan Court, Milngavie, G62
By Clyde Property
£ 310,000
Reviews
3 out of 5 stars
Clyde Property says ..
Ellangowan Court remains one of Milngavie’s most sought-after developments, built by Bett Homes in 2005.
Property Oracle says ..
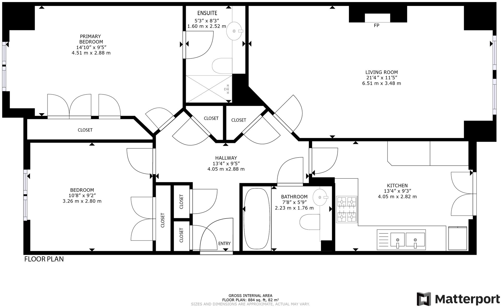
This property is a 2 bedroom, 2 bathroom flat located in Milngavie, East Dunbartonshire. The property benefits from a small, well maintained garden area. The flat itself appears to be in good condition, with a modern kitchen and recently decorated rooms. The location is convenient, with Milngavie train station within easy reach, providing access to Glasgow and other areas. While there is no information on nearby schools, the proximity to the train station and the generally desirable nature of Milngavie suggest a good location score. The list price of £310,000 is slightly above the average price for the area (£275,433), but considering the property’s apparent good condition and the inclusion of a small garden (a desirable feature in flats), the price seems reasonable. The average price per square foot in the area is £263, and while the property’s square footage is slightly below average, the higher-than-average price is likely justified by the condition and desirable features. Further analysis would be needed to provide a definitive price assessment.
Therefore, we give this property 7 / 10. *Disclaimer: This is our option and does constitute a recommendation or financial advice. Do your own research. *
- Price
- 7
- Condition
- 9
- Location
- 8
- Land
- 6
- Bedrooms
- 2
- Bathrooms
- 2
- Sqft (est)
- 882.64
The heatmap indicates the level of crime in the area. The color of the heatmap indicates the crime severity and recency.
Metrics Year-on-Year
- Average area value
- 512,500.00 £Increased by 58.76 %
- Est sale value
- 604,608.40 £Increased by 135.40 %
- Average area rental value
- 1,100.00 £/moDecreased by 47.62 %
- Est letting value
- 882.64 £/moUnchanged by 0.00 %
- Est rental Yield
- 2.58 %Decreased by 66.97 %
- Crime Rate
- 0.00 %
Agent Activity
Clyde Property created the listing.
Images
Nearby Streets
| Name | Average Price | Average Sqft | Distance |
|---|---|---|---|
| Highland Road | £ 0 | 0 | 0.00 KM |
| West Highland Way | £ 340,000 | 0 | 0.00 KM |
| Woodlands Street | £ 0 | 0 | 0.00 KM |
| Allander Road | £ 164,998 | 0 | 0.00 KM |
| West Highland Way | £ 0 | 0 | 0.00 KM |
Nearby Transport
| Name | NLC | TLC | Distance |
|---|---|---|---|
| Milngavie | 9985 | MLN | 0.53 KM |
| Hillfoot | 9983 | HLF | 2.66 KM |
| Bearsden | 9966 | BRN | 3.33 KM |
| Westerton | 9998 | WES | 4.71 KM |
| Maryhill | 9957 | MYH | 5.52 KM |
Nearby Listings
| Address | Price | Type | Score | Distance |
|---|---|---|---|---|
| Ellangowan Court, Milngavie, G62 | £ 310,000 | BUY | 7 / 10 | 0.00 KM |
| Highland Court, 17 Sinclair Street, Milngavie G62 | £ 475,000 | BUY | Unknown | 0.05 KM |
| Ellangowan Court, Milngavie, G62 | £ 290,000 | BUY | 6 / 10 | 0.09 KM |
| 35 Ellangowan Court, Milngavie, G62 8PP | £ 300,000 | BUY | 7 / 10 | 0.09 KM |
| Sinclair Street, Milngavie, G62 | £ 220,000 | BUY | Unknown | 0.12 KM |