Jasmin Way, Up Hatherley, Cheltenham, GL51
CJ

Jasmin Way, Up Hatherley, Cheltenham, GL51

By CJ Hole

£ 340,000

Reviews

3 out of 5 stars

CJ Hole says ..

A spacious semi-detached family home with a generous garden and off road parking situated in a traffic-free cul-de-sac close to extensive amenities and open countryside

Property Oracle says ..

This property is a 3-bedroom semi-detached house located in Up Hatherley, Cheltenham. It benefits from a good location, close to local schools such as Warden Hill Primary School (Outstanding Ofsted rating) and Cheltenham Bournside School (Good Ofsted rating). The property is also conveniently located near Cheltenham Spa railway station. The house itself appears to be in good condition, with a modern kitchen and bathroom. There is a garden to the rear of the property. While the average price per square foot in the area is £574, this property is listed at a price that is significantly below the average for the area. This could be due to the smaller plot size or other factors not immediately apparent from the listing.

Therefore, we give this property 7 / 10. *Disclaimer: This is our option and does constitute a recommendation or financial advice. Do your own research. *

Price
7
Condition
8
Location
9
Land
6
Bedrooms
3
Bathrooms
1
Sqft (est)
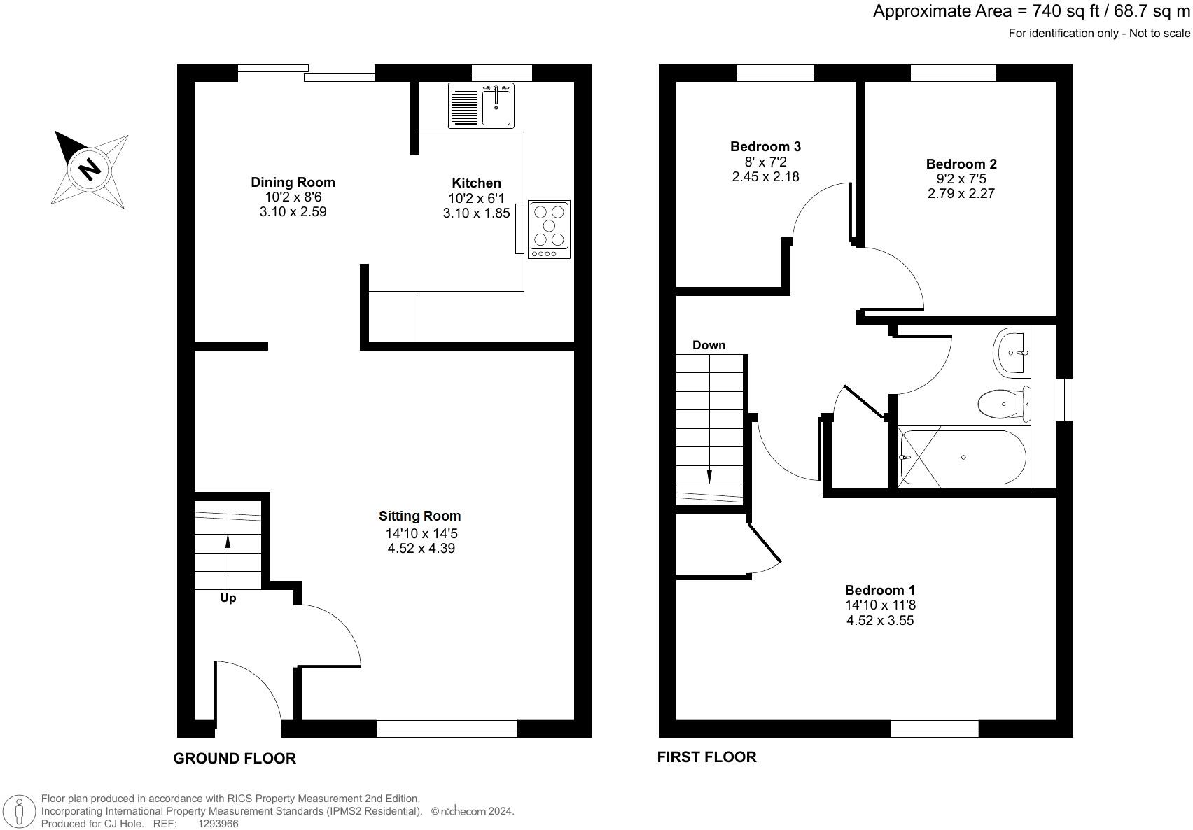
740.00

The heatmap indicates the level of crime in the area. The color of the heatmap indicates the crime severity and recency.

Metrics Year-on-Year

Average area value
513,942.00 £
Decreased by 2.28 %
from 525,912.00 £
Est sale value
422,540.00 £
Decreased by 5.93 %
from 449,180.00 £
Average area rental value
2,061.00 £/mo
Increased by 1.93 %
from 2,022.00 £/mo
Est letting value
1,480.00 £/mo
Unchanged by 0.00 %
from 1,480.00 £/mo
Est rental Yield
4.81 %
Increased by 4.34 %
from 4.61 %
Crime Rate
2.00 %
Unchanged by 0.00 %
from 2.00 %

Agent Activity

  • CJ Hole created the listing.

Nearby Schools

NameTypeOfstedDistance
Warden Hill Primary SchoolFoundation SchoolOutstanding0.18 KM
Cheltenham Bournside School And Sixth Form CentreAcademy ConverterGood0.80 KM
Up Hatherley Library Children'S CentreChildren's Centre0.81 KM
Greatfield Park Primary SchoolCommunity SchoolGood0.88 KM
Belmont SchoolAcademy Special Converter0.94 KM

Images

Picture No. 24 Picture No. 05 Picture No. 07 Picture No. 06 Picture No. 08 Picture No. 09 Picture No. 10 Picture No. 12 Picture No. 03 Picture No. 04 Picture No. 02 Picture No. 11 Picture No. 13 Picture No. 23 Picture No. 14 Picture No. 21 Picture No. 25 Picture No. 17 Picture No. 18 Picture No. 15 Picture No. 16 Picture No. 19 Picture No. 22

Nearby Streets

NameAverage PriceAverage SqftDistance
Rochester Close £ 300,00000.00 KM
Friars Close £ 000.00 KM
Barwick Road £ 000.00 KM
Snowdrop Place £ 480,00000.00 KM
Burnet Drive £ 625,00000.00 KM

Nearby Transport

NameNLCTLCDistance
Cheltenham Spa4731CNM1.98 KM

Nearby Listings

AddressPriceTypeScoreDistance
Jasmin Way, Up Hatherley, Cheltenham, GL51 £ 340,000BUY7 / 100.00 KM
Jasmin Way, Up Hatherley £ 325,000BUY7 / 100.04 KM
Stancombe Grove, Up Hatherley, Cheltenham, Gloucestershire, GL51 £ 280,000BUY6 / 100.09 KM
Farmfield Road, Cheltenham, Gloucestershire, GL51 £ 400,000BUYUnknown0.12 KM
Campion Park, Up Hatherley, Cheltenham £ 575,000BUY7 / 100.18 KM

Nearby Properties

AddressPriceDistance
10 Sissinghurst Grove £ 200,0000.03 KM
17 Sissinghurst Grove £ 139,0000.03 KM
29 Sissinghurst Grove £ 217,5000.03 KM
25 Sissinghurst Grove £ 345,0000.03 KM
3 Sissinghurst Grove £ 199,9950.03 KM