12 Yeovilton Close, Everton, Lymington, SO41
By Spencers Of The New Forest
£ 695,000
Reviews
4 out of 5 stars
Spencers Of The New Forest says ..
Tucked away in beautifully planted and peaceful walled gardens, yet moments from the village shop and pub, this charming single storey home offers well proportioned and versatile accommodation which provides the flexibility for an adjoining guest or family annexe which is easily accessible to ...
Property Oracle says ..
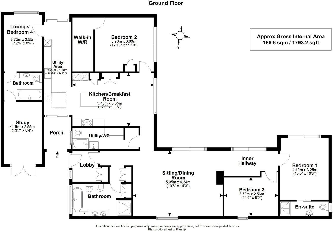
This property is a 4-bedroom, 4-bathroom bungalow located in Everton, Lymington, within the New Forest National Park. The area benefits from good local schools and is within reasonable proximity to train stations providing access to larger towns and cities. The property itself is presented in excellent condition, having undergone a tasteful and modern refurbishment. The images showcase a well-maintained interior and a substantial, beautifully landscaped garden. While the list price is higher than the average for the area, the superior condition, size, and features of this property justify the premium. The large plot size is a significant advantage.
Therefore, we give this property 8 / 10. *Disclaimer: This is our option and does constitute a recommendation or financial advice. Do your own research. *
- Price
- 7
- Condition
- 9
- Location
- 8
- Land
- 10
- Bedrooms
- 4
- Bathrooms
- 4
- Sqft (est)
- 1,715.60
- Lot (est)
- 1,793.20
The heatmap indicates the level of crime in the area. The color of the heatmap indicates the crime severity and recency.
Metrics Year-on-Year
- Average area value
- 584,000.00 £Increased by 30.99 %
- Est sale value
- 699,964.80 £Increased by 2.26 %
- Average area rental value
- 3,500.00 £/moIncreased by 145.61 %
- Est letting value
- 3,431.20 £/moIncreased by 100.00 %
- Est rental Yield
- 7.19 %Increased by 87.24 %
- Crime Rate
- 55.00 %Unchanged by 0.00 %
Agent Activity
Spencers Of The New Forest created the listing.
Nearby Schools
| Name | Type | Ofsted | Distance |
|---|---|---|---|
| Milford-On-Sea Church Of England Primary School | Academy Converter | 1.34 KM | |
| Our Lady And St Joseph Catholic Primary School | Voluntary Aided School | Good | 2.50 KM |
| Hordle Cofe (Va) Primary School | Voluntary Aided School | Outstanding | 2.85 KM |
| Pennington Infant School | Community School | Good | 3.62 KM |
| Pennington Church Of England Junior School | Voluntary Controlled School | Requires improvement | 3.62 KM |
Images
Nearby Streets
| Name | Average Price | Average Sqft | Distance |
|---|---|---|---|
| West Lane | £ 775,000 | 0 | 0.00 KM |
| Everton Grange | £ 0 | 0 | 0.00 KM |
| Milford Road | £ 0 | 0 | 0.00 KM |
| School Lane | £ 0 | 0 | 0.00 KM |
| Milford Road | £ 0 | 0 | 0.00 KM |
Nearby Transport
| Name | NLC | TLC | Distance |
|---|---|---|---|
| Sway | 5884 | SWY | 4.92 KM |
| Lymington Town | 5887 | LYT | 5.96 KM |
| Lymington Pier | 5892 | LYP | 6.72 KM |
| New Milton | 5881 | NWM | 7.70 KM |
| Brockenhurst | 5886 | BCU | 8.09 KM |
Nearby Listings
| Address | Price | Type | Score | Distance |
|---|---|---|---|---|
| 12 Yeovilton Close, Everton, Lymington, SO41 | £ 695,000 | BUY | 8 / 10 | 0.00 KM |
| Yeovilton Close, Everton, Lymington, SO41 | £ 655,000 | BUY | 7 / 10 | 0.02 KM |
| Yeovilton Close, Everton, Lymington, Hampshire, SO41 | £ 315,000 | BUY | 7 / 10 | 0.04 KM |
| Yeovilton Close, Everton, Hampshire, SO41 | £ 425,000 | BUY | 6 / 10 | 0.05 KM |
| Old Christchurch Road, Everton, Lymington, Hampshire | £ 415,000 | BUY | 6 / 10 | 0.06 KM |
Nearby Properties
| Address | Price | Distance |
|---|---|---|
| 10 Yeovilton Close | £ 445,000 | 0.02 KM |
| 8 Yeovilton Close | £ 395,000 | 0.04 KM |
| 5 Yeovilton Close | £ 218,000 | 0.04 KM |
| 2 Yeovilton Close | £ 275,000 | 0.04 KM |
| 7 Yeovilton Close | £ 215,000 | 0.04 KM |