Orchid Place, Topsham Road, St. Leonards, Exeter, EX2 4SQ
By McCarthy Stone
£ 330,000
Reviews
3 out of 5 stars
McCarthy Stone says ..
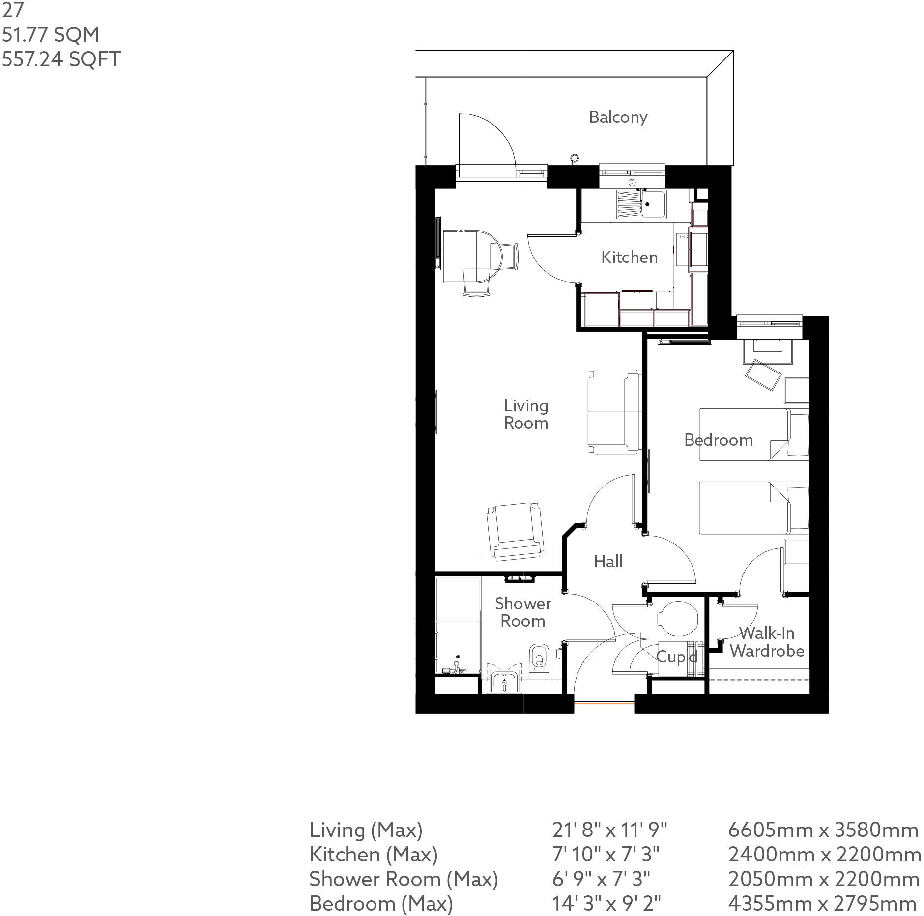
Light-filled and thoughtfully finished with contemporary design and elegant fixtures throughout, Apartment 27 is a beautiful apartment with access to communal features including a sociable lounge and large landscaped gardens with seating.
Property Oracle says ..
This is a modern retirement property located in a well-connected area of Exeter. The property is in excellent condition and offers communal garden space. While the price per square foot is above average, the overall list price appears reasonable for the location and the type of property. The proximity to local amenities and transportation enhances its appeal for retirees. The property is marketed by McCarthy Stone, a well-known retirement property developer.
Therefore, we give this property 6 / 10. *Disclaimer: This is our option and does constitute a recommendation or financial advice. Do your own research. *
- Price
- 6
- Condition
- 9
- Location
- 7
- Land
- 5
- Bedrooms
- 1
- Bathrooms
- 0
- Sqft (est)
- 491.83
The heatmap indicates the level of crime in the area. The color of the heatmap indicates the crime severity and recency.
Metrics Year-on-Year
- Average area value
- 521,250.00 £Increased by 29.23 %
- Est sale value
- 298,048.98 £Increased by 68.33 %
- Average area rental value
- 1,512.00 £/moIncreased by 50.45 %
- Est letting value
- 491.83 £/mo
- Est rental Yield
- 3.48 %Increased by 16.39 %
- Crime Rate
- 2.00 %Unchanged by 0.00 %
Agent Activity
McCarthy Stone created the listing.
Nearby Schools
| Name | Type | Ofsted | Distance |
|---|---|---|---|
| Atkinson Secure Children'S Home | Secure Units | 0.46 KM | |
| Isca | Academy Sponsor Led | Good | 0.66 KM |
| Magdalen Court School | Other Independent Special School | Requires improvement | 0.74 KM |
| Exeter School | Other Independent School | 0.91 KM | |
| St Leonard'S (Cofe) Primary School (Vc) | Academy Converter | 0.95 KM |
Images
Nearby Streets
| Name | Average Price | Average Sqft | Distance |
|---|---|---|---|
| Gras Lawn | £ 0 | 0 | 0.00 KM |
| Winsor Avenue | £ 250,000 | 0 | 0.00 KM |
| Hippisley Road | £ 0 | 0 | 0.00 KM |
| Dunley Mews | £ 0 | 0 | 0.00 KM |
| Haden Walk | £ 0 | 0 | 0.00 KM |
Nearby Transport
| Name | NLC | TLC | Distance |
|---|---|---|---|
| St James Park (Exeter) | 5751 | SJP | 2.31 KM |
| Polsloe Bridge | 3422 | POL | 2.58 KM |
| Exeter Central | 5755 | EXC | 2.65 KM |
| Exeter St Thomas | 3414 | EXT | 2.76 KM |
| Exeter St David'S | 3410 | EXD | 3.73 KM |
Nearby Listings
| Address | Price | Type | Score | Distance |
|---|---|---|---|---|
| Orchid Place, Topsham Road, St. Leonards, Exeter, EX2 4SQ | £ 345,000 | BUY | 7 / 10 | 0.00 KM |
| Orchid Place, Topsham Road, St. Leonards, Exeter, EX2 4SQ | £ 315,000 | BUY | 6 / 10 | 0.00 KM |
| Orchid Place, Topsham Road, St. Leonards, Exeter, EX2 4SQ | £ 375,000 | BUY | 6 / 10 | 0.00 KM |
| Orchid Place, Topsham Road, St. Leonards, Exeter, EX2 4SQ | £ 320,000 | BUY | 6 / 10 | 0.00 KM |
| Orchid Place, Topsham Road, St. Leonards, Exeter, EX2 4SQ | £ 395,000 | BUY | 6 / 10 | 0.00 KM |
Nearby Properties
| Address | Price | Distance |
|---|---|---|
| 194 Topsham Road | £ 310,000 | 0.05 KM |
| 190 Topsham Road | £ 435,000 | 0.05 KM |
| 186 Topsham Road | £ 460,000 | 0.05 KM |
| 184 Topsham Road | £ 368,000 | 0.05 KM |
| 34 Buckerell Avenue | £ 248,000 | 0.09 KM |