Claughton Avenue, Bolton, BL2
By William Thomas Estate Agency
£ 130,000
Reviews
3 out of 5 stars
William Thomas Estate Agency says ..
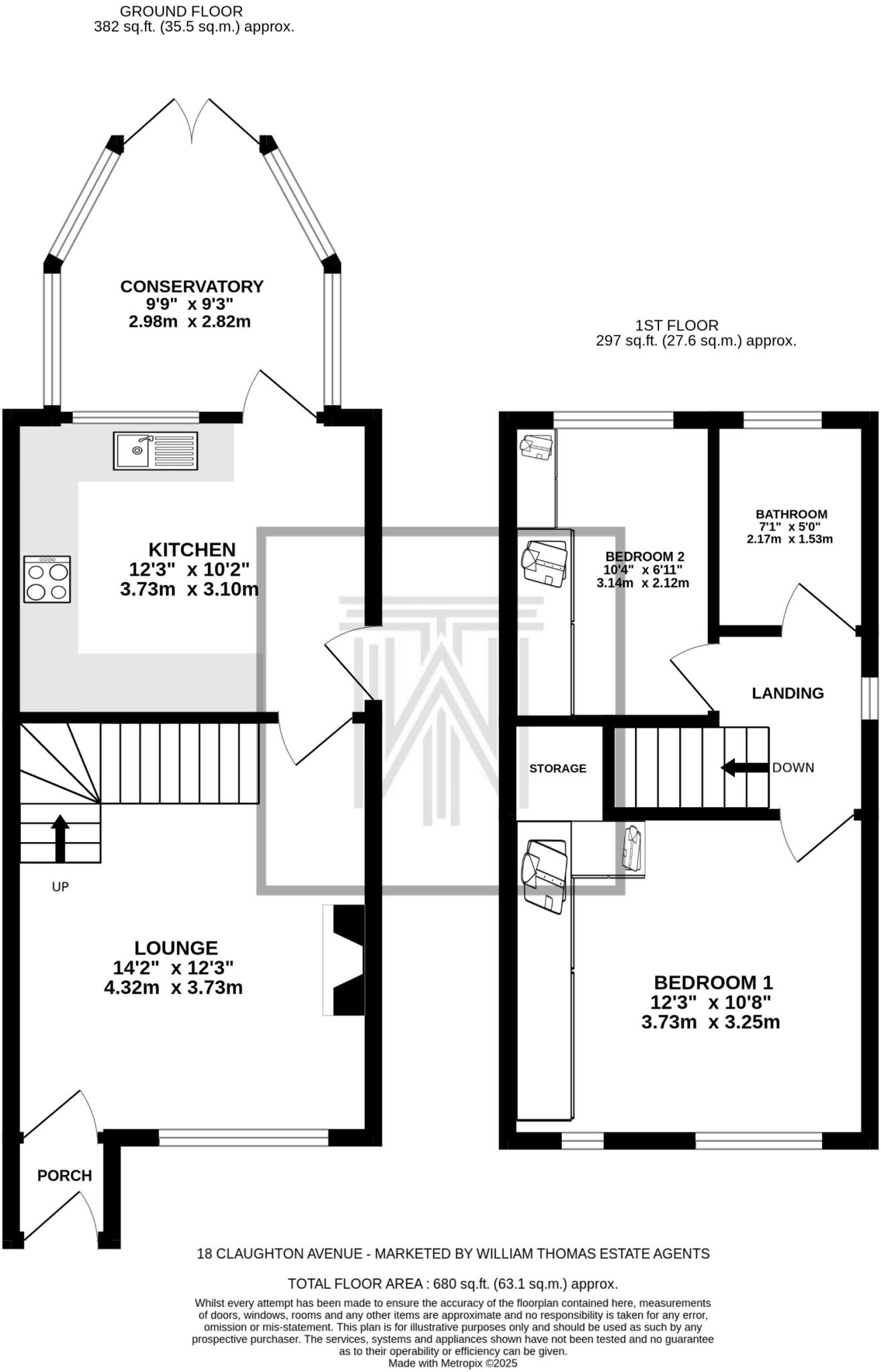
A semi-detached property with the benefit of a generous sized rear garden, driveway parking and a detached garage. In need of some general modernisation, perfect for anyone looking to put their own style on a property! There is no upward chain to this one either.
Property Oracle says ..
Therefore, we give this property 6 / 10. *Disclaimer: This is our option and does constitute a recommendation or financial advice. Do your own research. *
- Price
- 8
- Condition
- 4
- Location
- 7
- Land
- 6
- Bedrooms
- 2
- Bathrooms
- 1
- Sqft (est)
- 632.44
The heatmap indicates the level of crime in the area. The color of the heatmap indicates the crime severity and recency.
Metrics Year-on-Year
- Average area value
- 179,163.00 £Decreased by 15.03 %
- Est sale value
- 132,179.96 £Increased by 1.46 %
- Average area rental value
- 998.00 £/moIncreased by 23.98 %
- Est letting value
- 632.44 £/mo
- Est rental Yield
- 6.68 %Increased by 45.85 %
- Crime Rate
- 147.00 %Unchanged by 0.00 %
from 210,863.00 £
from 130,282.64 £
from 805.00 £/mo
from 0.00 £/mo
from 4.58 %
from 147.00 %
Agent Activity
William Thomas Estate Agency created the listing.
Nearby Schools
| Name | Type | Ofsted | Distance |
|---|---|---|---|
| Ss Osmund And Andrew'S R.C. Primary School | Voluntary Aided School | Good | 0.49 KM |
| Leverhulme Community Primary School | Community School | Good | 0.71 KM |
| Red Lane Primary School | Academy Converter | Good | 0.83 KM |
| Blackshaw Primary School | Community School | Good | 0.90 KM |
| Leverhulme Start Well Link Site | Children's Centre Linked Site | 1.02 KM |
Images
Nearby Streets
| Name | Average Price | Average Sqft | Distance |
|---|---|---|---|
| Brantwood Drive | £ 206,250 | 0 | 0.00 KM |
| Copthorne Drive | £ 0 | 0 | 0.00 KM |
| Barchester Avenue | £ 121,000 | 0 | 0.00 KM |
| Brathay Close | £ 0 | 0 | 0.00 KM |
| Mobberley Road | £ 0 | 0 | 0.00 KM |
Nearby Transport
| Name | NLC | TLC | Distance |
|---|---|---|---|
| Moses Gate | 2606 | MSS | 3.28 KM |
| Farnworth | 2811 | FNW | 3.34 KM |
| Hall-I'-Th'-Wood | 2572 | HID | 3.81 KM |
| Kearsley (Manchester) | 2605 | KSL | 4.06 KM |
| Bolton | 2599 | BON | 4.71 KM |
Nearby Listings
| Address | Price | Type | Score | Distance |
|---|---|---|---|---|
| Claughton Avenue, Bolton, BL2 | £ 130,000 | BUY | 6 / 10 | 0.00 KM |
| Claughton Avenue, Bolton | £ 189,995 | BUY | Unknown | 0.04 KM |
| Brock Avenue, Bolton, Greater Manchester, BL2 6JL | £ 160,000 | BUY | 7 / 10 | 0.05 KM |
| Garstang Avenue, Bolton, Greater Manchester, BL2 6JW | £ 250,000 | BUY | Unknown | 0.10 KM |
| Twisse Road, Bolton, Greater Manchester, BL2 6NZ | £ 220,000 | BUY | 6 / 10 | 0.10 KM |
Nearby Properties
| Address | Price | Distance |
|---|---|---|
| 4 Claughton Avenue | £ 56,950 | 0.00 KM |
| 20 Claughton Avenue | £ 129,950 | 0.00 KM |
| 19 Claughton Avenue | £ 145,000 | 0.00 KM |
| 17 Claughton Avenue | £ 125,000 | 0.00 KM |
| 14 Claughton Avenue | £ 90,000 | 0.00 KM |