Chamberlayne Road, Kensal Rise, NW10 3ND
WE

Chamberlayne Road, Kensal Rise, NW10 3ND

By Wenlock & Taylor

£ 825,000

Reviews

2 out of 5 stars

Wenlock & Taylor says ..

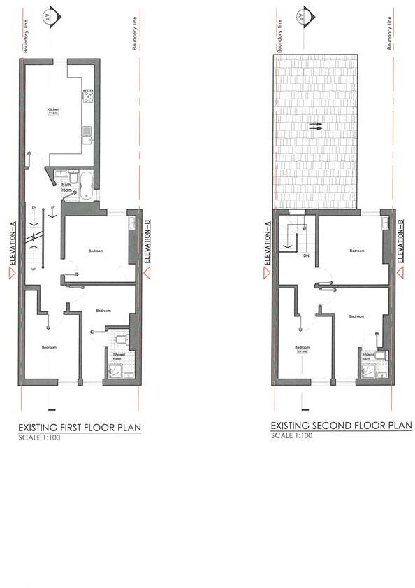
EXCELLENT BUY-TO-LET INVESTMENT OPPORTUNITY (Pre-current tenancy photographs shown). This 1156 sq/ft (107 sq.m) approx First & Second Floor Flat (with own street entrance) comprises 6 bedsit rooms (2 with en-suite shower/wc's) kitchen/breakfast room, bathroom/wc and is offered subject to the Assu...

Property Oracle says ..

This is a six-bedroom flat located on Chamberlayne Road in Kensal Rise. The property is situated in a vibrant and well-connected area, with easy access to local amenities and transportation. While the property is in reasonable condition, it would benefit from some modernisation. The lack of a garden may be a drawback for some buyers. The asking price of £825,000 seems reasonable given the location and size of the property, but potential buyers should factor in the cost of renovations.

Therefore, we give this property 5 / 10. *Disclaimer: This is our option and does constitute a recommendation or financial advice. Do your own research. *

Price
7
Condition
6
Location
7
Land
3
Bedrooms
6
Bathrooms
1
Sqft (est)
670.00

The heatmap indicates the level of crime in the area. The color of the heatmap indicates the crime severity and recency.

Metrics Year-on-Year

Average area value
993,526.00 £
Increased by 17.63 %
from 844,590.00 £
Est sale value
692,780.00 £
Increased by 65.18 %
from 419,420.00 £
Average area rental value
2,483.00 £/mo
Decreased by 8.81 %
from 2,723.00 £/mo
Est letting value
1,340.00 £/mo
Unchanged by 0.00 %
from 1,340.00 £/mo
Est rental Yield
3.00 %
Decreased by 22.48 %
from 3.87 %
Crime Rate
4.00 %
Unchanged by 0.00 %
from 4.00 %

Agent Activity

  • Wenlock & Taylor created the listing.

Nearby Schools

NameTypeOfstedDistance
Ark Franklin Primary AcademyAcademy Sponsor LedGood0.09 KM
Manor SchoolAcademy Special ConverterOutstanding0.48 KM
Three Trees Children'S CentreChildren's Centre0.56 KM
Bales CollegeOther Independent School0.63 KM
Princess Frederica Cofe Primary SchoolVoluntary Aided SchoolGood0.79 KM

Images

20251017_104550.jpg WhatsApp Image 2025-01-09 at 10.38.29 (2).jpeg WhatsApp Image 2025-01-09 at 10.38.29 (2).jpeg WhatsApp Image 2025-01-09 at 10.38.29.jpeg WhatsApp Image 2025-01-09 at 10.38.30 (1).jpeg WhatsApp Image 2025-01-09 at 10.38.30 (3).jpeg WhatsApp Image 2025-01-15 at 11.50.27 (2).jpeg WhatsApp Image 2025-01-15 at 11.50.27 (3).jpeg WhatsApp Image 2025-01-15 at 11.50.27 (4).jpeg WhatsApp Image 2025-01-15 at 11.50.27 (5).jpeg WhatsApp Image 2025-01-15 at 11.50.27 (6).jpeg WhatsApp Image 2025-01-15 at 11.50.27.jpeg External.jpg

Nearby Streets

NameAverage PriceAverage SqftDistance
Brunel Mews £ 747,50000.00 KM
Allington Road £ 550,00000.00 KM
Ladbroke Grove £ 699,95000.00 KM
Rowan Walk £ 000.00 KM
Carlisle Road £ 000.00 KM

Nearby Transport

NameNLCTLCDistance
Kensal Rise1448KNR0.24 KM
Kensal Green1447KNL0.82 KM
Brondesbury Park1438BSP1.21 KM
Queens Park (London)1419QPW1.46 KM
Brondesbury1437BSY2.20 KM

Nearby Listings

AddressPriceTypeScoreDistance
Chamberlayne Road, Kensal Rise, NW10 3ND £ 825,000BUY5 / 100.00 KM
Chamberlayne Road, NW10 £ 825,000BUY5 / 100.01 KM
Chamberlayne Road, Kensal Rise NW10 £ 850,000BUY8 / 100.02 KM
Keslake Road, Queens Park/Kensal Rise, NW6 £ 925,000BUY6 / 100.05 KM
Chamberlayne Road, Kensal Rise £ 580,000BUY5 / 100.05 KM

Nearby Properties

AddressPriceDistance
22a - 22b Chevening Road £ 2,015,0000.11 KM
24 Chevening Road £ 615,0000.11 KM
8c Chevening Road £ 124,5000.11 KM
18 Chevening Road £ 2,790,0000.11 KM
8a Chevening Road £ 549,9500.12 KM