Radfords Estate Agents says ..
A detached chalet style property situated on a popular and select residential development situated within the village of Staplehurst.
Property Oracle says ..
Therefore, we give this property 5 / 10. *Disclaimer: This is our option and does constitute a recommendation or financial advice. Do your own research. *
- Price
- 5
- Condition
- 6
- Location
- 7
- Land
- 4
- Bedrooms
- 3
- Bathrooms
- 2
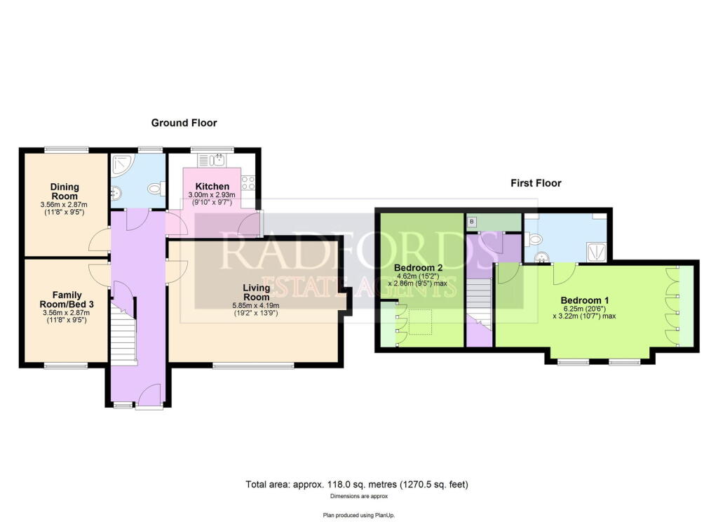
- Sqft (est)
- 1,270.14
The heatmap indicates the level of crime in the area. The color of the heatmap indicates the crime severity and recency.
Metrics Year-on-Year
- Average area value
- 359,625.00 £Decreased by 23.81 %
- Est sale value
- 640,150.56 £Increased by 15.60 %
- Average area rental value
- 1,583.00 £/moIncreased by 2.19 %
- Est letting value
- 2,540.28 £/moIncreased by 100.00 %
- Est rental Yield
- 5.28 %Increased by 34.01 %
- Crime Rate
- 9.00 %Unchanged by 0.00 %
from 472,010.00 £
from 553,781.04 £
from 1,549.00 £/mo
from 1,270.14 £/mo
from 3.94 %
from 9.00 %
Agent Activity
Radfords Estate Agents created the listing.
Nearby Schools
| Name | Type | Ofsted | Distance |
|---|---|---|---|
| Staplehurst School | Community School | Requires improvement | 0.67 KM |
| Frittenden Church Of England Primary School | Voluntary Controlled School | Good | 4.81 KM |
| Sissinghurst Voluntary Aided Church Of England Primary School | Voluntary Aided School | Good | 4.92 KM |
| Colliers Green Church Of England Primary School | Voluntary Aided School | Good | 5.84 KM |
| Cranbrook Children'S Centre | Children's Centre | 6.46 KM |
Images
Nearby Streets
| Name | Average Price | Average Sqft | Distance |
|---|---|---|---|
| Garden Close | £ 0 | 0 | 0.00 KM |
| Nicholsons Walk | £ 0 | 0 | 0.00 KM |
| High Street | £ 492,824 | 0 | 0.00 KM |
| Maybourne Place | £ 650,000 | 0 | 0.00 KM |
| Crouch Road | £ 300,000 | 0 | 0.00 KM |
Nearby Transport
| Name | NLC | TLC | Distance |
|---|---|---|---|
| Staplehurst | 5228 | SPU | 1.73 KM |
| Marden (Kent) | 5223 | MRN | 6.79 KM |
| Headcorn | 5220 | HCN | 8.48 KM |
Nearby Listings
| Address | Price | Type | Score | Distance |
|---|---|---|---|---|
| Staplehurst, Kent | £ 375,000 | BUY | 6 / 10 | 0.00 KM |
| Staplehurst, Kent | £ 470,000 | BUY | 5 / 10 | 0.00 KM |
| Iden Crescent, Staplehurst | £ 475,000 | BUY | 6 / 10 | 0.00 KM |
| Iden Crescent, Staplehurst, Tonbridge, Kent | £ 475,000 | BUY | Unknown | 0.02 KM |
| Staplehurst, Kent | £ 425,000 | BUY | 6 / 10 | 0.07 KM |
Nearby Properties
| Address | Price | Distance |
|---|---|---|
| 37 Iden Crescent | £ 190,000 | 0.01 KM |
| 17 Iden Crescent | £ 305,000 | 0.01 KM |
| 15 Iden Crescent | £ 226,000 | 0.01 KM |
| 21 Iden Crescent | £ 350,000 | 0.01 KM |
| 41 Iden Crescent | £ 322,500 | 0.01 KM |