Bream Avenue, Cleckheaton, West Yorkshire, BD19
EW

Bream Avenue, Cleckheaton, West Yorkshire, BD19

By EweMove

£ 425,000

Reviews

3 out of 5 stars

EweMove says ..

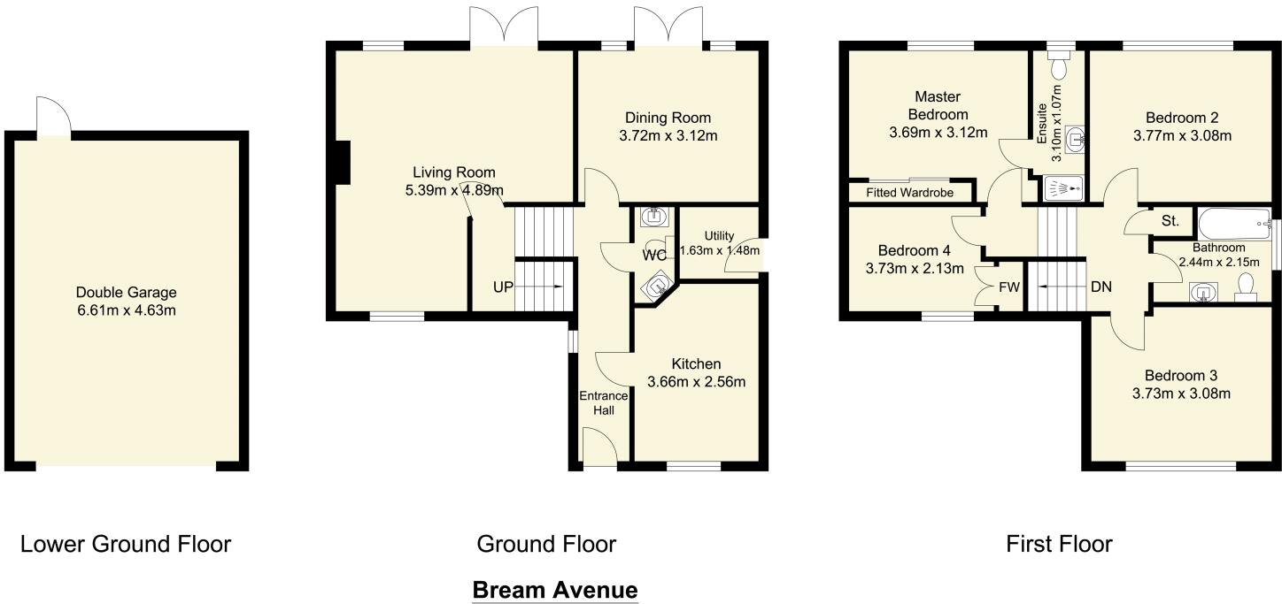
A Rare Opportunity in a Prime Position – Exceptional Four Bedroom Detached Family Home with Stunning Views and Landscaped South-West Facing Garden Positioned on what is widely regarded as the premier plot within this highly sought-after development, ...

Property Oracle says ..

This is a well-presented detached property in Cleckheaton, offering four bedrooms and two bathrooms. The house appears to be in good condition, with a modern kitchen and bathrooms. A standout feature is the well-maintained garden, which includes a lawn, patio, and decking area, providing ample outdoor space. The location is convenient for families, with several schools nearby. However, the distance to the nearest train station might be a drawback for some. The asking price is higher than the average for the area, but this reflects the property’s size, condition, and detached status. Overall, this property would likely appeal to families looking for a modern, spacious home with a good-sized garden in a suburban setting.

Therefore, we give this property 7 / 10. *Disclaimer: This is our option and does constitute a recommendation or financial advice. Do your own research. *

Price
6
Condition
8
Location
7
Land
8
Bedrooms
4
Bathrooms
2

The heatmap indicates the level of crime in the area. The color of the heatmap indicates the crime severity and recency.

Metrics Year-on-Year

Average area value
205,023.00 £
Decreased by 19.51 %
from 254,704.00 £
Average area rental value
745.00 £/mo
Decreased by 12.76 %
from 854.00 £/mo
Est rental Yield
4.36 %
Increased by 8.46 %
from 4.02 %
Crime Rate
7.00 %
Unchanged by 0.00 %
from 7.00 %

Agent Activity

  • EweMove created the listing.

Nearby Schools

NameTypeOfstedDistance
Heaton Avenue, A Share Primary AcademyAcademy ConverterGood0.29 KM
Whitcliffe Mount SchoolVoluntary Controlled SchoolGood0.34 KM
Whitechapel Church Of England Primary SchoolVoluntary Controlled SchoolGood0.71 KM
Liversedge Children'S CentreChildren's Centre Linked Site1.20 KM
High Bank Junior Infant And Nursery SchoolCommunity SchoolGood1.24 KM

Images

IMG_2042 IMG_2046 drone shot 3 img_1975-img_1977 img_1963-img_1965 img_1966-img_1968 img_1969-img_1971 img_1978-img_1980 img_1987-img_1989 img_1990-img_1992 img_1996-img_1998 img_1999-img_2001 img_2002-img_2004 img_2005-img_2007 img_2011-img_2013 img_2014-img_2016 img_2020-img_2022 img_2023-img_2025 img_2026-img_2028 img_2029-img_2031 img_2032-img_2034 img_2035-img_2037 IMG_2038-1 IMG_2045 IMG_2039 IMG_2040 IMG_2041-1 IMG_2043 IMG_2044 IMG_2047 drone 1 drone shot 2

Nearby Streets

NameAverage PriceAverage SqftDistance
Park View Court £ 385,00000.00 KM
Highfield Road £ 000.00 KM
Briar Cottage £ 240,00000.00 KM
Sycamore Drive £ 000.00 KM
Grange Road £ 000.00 KM

Nearby Transport

NameNLCTLCDistance
Low Moor8416LMR4.09 KM
Brighouse8514BGH6.37 KM
Deighton8441DHN6.67 KM
Mirfield8518MIR6.97 KM
Bradford Interchange8345BDI7.91 KM

Nearby Listings

AddressPriceTypeScoreDistance
Bream Avenue, Cleckheaton, West Yorkshire, BD19 £ 425,000BUY7 / 100.00 KM
Bream Avenue, Cleckheaton, BD19 £ 425,000BUY7 / 100.02 KM
Bream Avenue, Cleckheaton, BD19 £ 400,000BUY7 / 100.07 KM
Park View Court, Cleckheaton, West Yorkshire, BD19 £ 450,000BUY7 / 100.12 KM
Westgate, Cleckheaton, BD19 £ 175,000BUY7 / 100.15 KM

Nearby Properties

AddressPriceDistance
47 Bream Avenue £ 180,0000.01 KM
41 Bream Avenue £ 260,0000.01 KM
21 Bream Avenue £ 210,0000.01 KM
4 Bream Avenue £ 215,0000.05 KM
3 Bream Avenue £ 165,5000.05 KM