Cliff Terrace, Budleigh Salterton, EX9
By David Rhys
£ 1,100,000
Reviews
4 out of 5 stars
David Rhys says ..
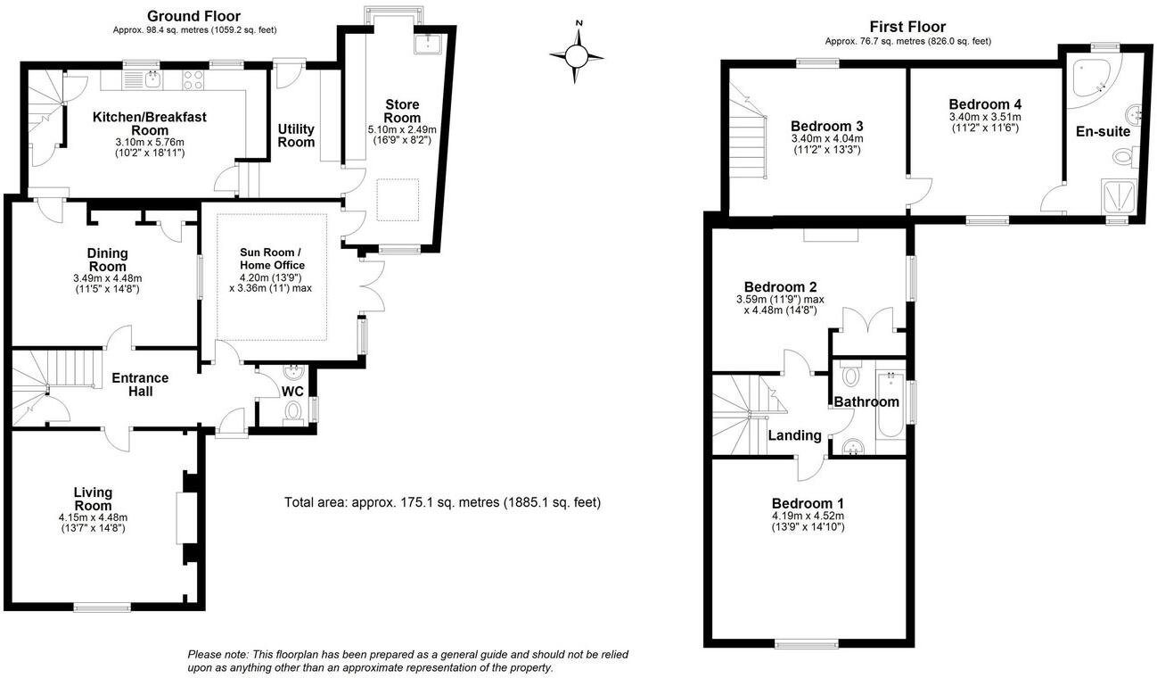
Cliff Edge is a substantial, semi-detached sea front property that is full of character. Situated along Cliff Terrace, considered to be one of the finest addresses in Budleigh Salterton, having a wonderful outlook within a quiet setting, yet conveniently less than 200 yards from the High Street a...
Property Oracle says ..
This semi-detached property on Cliff Terrace in Budleigh Salterton presents a fantastic opportunity for buyers seeking a coastal home with character. The property features four bedrooms and two bathrooms, making it suitable for families. The interior is well-maintained, with traditional features adding to its charm. The large garden and proximity to the beach are significant advantages. While the price is higher than average for the area, the property’s desirable location and overall condition make it a worthwhile investment. Nearby schools and transportation links further enhance its appeal.
Therefore, we give this property 8 / 10. *Disclaimer: This is our option and does constitute a recommendation or financial advice. Do your own research. *
- Price
- 6
- Condition
- 8
- Location
- 9
- Land
- 9
- Bedrooms
- 4
- Bathrooms
- 2
The heatmap indicates the level of crime in the area. The color of the heatmap indicates the crime severity and recency.
Metrics Year-on-Year
- Average area value
- 604,931.00 £Decreased by 0.31 %
- Average area rental value
- 2,475.00 £/moIncreased by 98.64 %
- Est rental Yield
- 4.91 %Increased by 99.59 %
- Crime Rate
- 47.00 %Unchanged by 0.00 %
Agent Activity
David Rhys created the listing.
Nearby Schools
| Name | Type | Ofsted | Distance |
|---|---|---|---|
| St Peter'S Church Of England Primary School | Voluntary Aided School | Good | 1.05 KM |
| Drake'S Church Of England Primary School | Academy Converter | 2.83 KM | |
| Otterton Church Of England Primary School | Academy Converter | 4.34 KM | |
| Mill Water School | Foundation Special School | Good | 4.96 KM |
| Littleham Church Of England Primary School | Voluntary Controlled School | Requires improvement | 5.52 KM |
Images
Nearby Streets
| Name | Average Price | Average Sqft | Distance |
|---|---|---|---|
| Ragg Lane | £ 0 | 0 | 0.00 KM |
| Steamer Steps | £ 0 | 0 | 0.00 KM |
| Park's Lane | £ 0 | 0 | 0.00 KM |
| Chapel Hill | £ 975,000 | 0 | 0.00 KM |
| Westfield Close | £ 1,250,000 | 0 | 0.00 KM |
Nearby Transport
| Name | NLC | TLC | Distance |
|---|---|---|---|
| Exmouth | 5756 | EXM | 9.75 KM |
Nearby Listings
| Address | Price | Type | Score | Distance |
|---|---|---|---|---|
| Cliff Terrace, Budleigh Salterton, EX9 | £ 1,100,000 | BUY | 8 / 10 | 0.00 KM |
| Cliff Road , Budleigh Salterton, EX9 | £ 425,000 | BUY | 7 / 10 | 0.07 KM |
| Cliff Terrace, Budleigh Salterton, Devon | £ 1,150,000 | BUY | 7 / 10 | 0.07 KM |
| Cliff Terrace, Budleigh Salterton, Devon | £ 795,000 | BUY | 5 / 10 | 0.08 KM |
| The Rosemullion, Cliff Road, Budleigh Salterton, Devon | £ 435,000 | BUY | 6 / 10 | 0.10 KM |
Nearby Properties
| Address | Price | Distance |
|---|---|---|
| 6 Cliff Road | £ 496,000 | 0.06 KM |
| 1 Cliff Road | £ 310,000 | 0.06 KM |
| 2 Cliff Terrace | £ 660,000 | 0.07 KM |
| 7 Cliff Terrace | £ 1,540,000 | 0.07 KM |
| 8 Cliff Terrace | £ 950,000 | 0.07 KM |