EN
Vallenders Road, Bredon, Tewkesbury, GL20
By Engall Castle
£ 575,000
Reviews
3 out of 5 stars
Engall Castle says ..
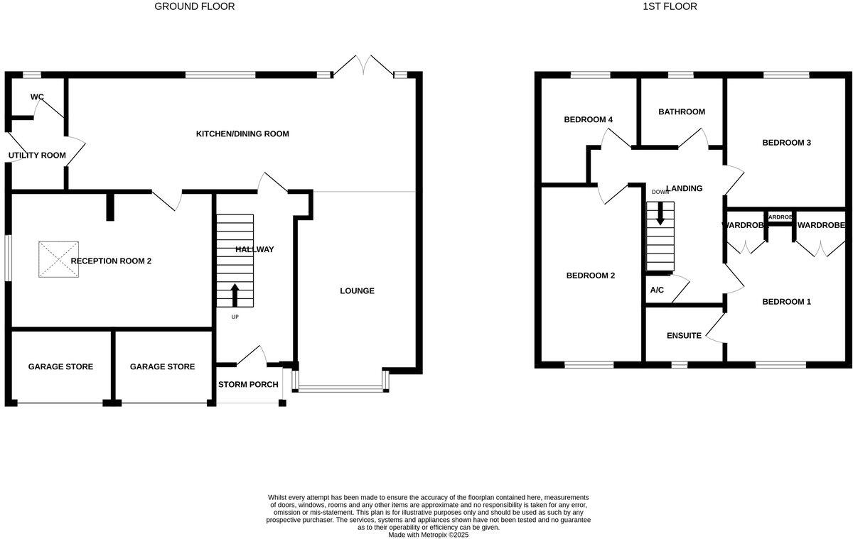
A great location for this well presented detached home in the heart of Bredon
Property Oracle says ..
Therefore, we give this property 7 / 10. *Disclaimer: This is our option and does constitute a recommendation or financial advice. Do your own research. *
- Price
- 7
- Condition
- 8
- Location
- 8
- Land
- 7
- Bedrooms
- 4
- Bathrooms
- 3
- Sqft (est)
- 1,337.00
The heatmap indicates the level of crime in the area. The color of the heatmap indicates the crime severity and recency.
Metrics Year-on-Year
- Average area value
- 724,089.00 £Increased by 127.29 %
- Est sale value
- 524,104.00 £Increased by 28.95 %
- Average area rental value
- 1,717.00 £/moDecreased by 31.32 %
- Est letting value
- 0.00 £/moDecreased by 100.00 %
- Est rental Yield
- 2.85 %Decreased by 69.75 %
- Crime Rate
- 101.00 %Unchanged by 0.00 %
from 318,571.00 £
from 406,448.00 £
from 2,500.00 £/mo
from 2,674.00 £/mo
from 9.42 %
from 101.00 %
Agent Activity
Engall Castle created the listing.
Nearby Schools
| Name | Type | Ofsted | Distance |
|---|---|---|---|
| Bredon Hancock'S Endowed Cofe First School | Voluntary Aided School | Outstanding | 0.33 KM |
| Carrant Brook Junior School | Foundation School | Requires improvement | 2.36 KM |
| Northway Infant School | Community School | Outstanding | 2.80 KM |
| Northway And Ashchurch Children'S Centre | Children's Centre | 2.80 KM | |
| Norton College Tewkesbury | Other Independent Special School | Requires improvement | 3.27 KM |
Images
Nearby Streets
| Name | Average Price | Average Sqft | Distance |
|---|---|---|---|
| Oak Drive | £ 600,000 | 0 | 0.00 KM |
| The Dell | £ 0 | 0 | 0.00 KM |
| Bricknell Avenue | £ 400,000 | 0 | 0.00 KM |
| Russet Close | £ 375,000 | 0 | 0.00 KM |
| Manor Cottages | £ 0 | 0 | 0.00 KM |
Nearby Transport
| Name | NLC | TLC | Distance |
|---|---|---|---|
| Ashchurch For Tewkesbury | 4700 | ASC | 3.38 KM |
Nearby Listings
| Address | Price | Type | Score | Distance |
|---|---|---|---|---|
| Vallenders Road, Bredon, Tewkesbury, GL20 | £ 575,000 | BUY | 7 / 10 | 0.00 KM |
| Saint Giles Road, Bredon | £ 425,000 | BUY | 7 / 10 | 0.13 KM |
| Main Road, Bredon, Tewkesbury, Gloucestershire | £ 725,000 | BUY | 8 / 10 | 0.17 KM |
| Main Road, Bredon, Tewkesbury, Gloucestershire | £ 1,100,000 | BUY | 7 / 10 | 0.18 KM |
| Bredon, Tewkesbury, Worcestershire, GL20 | £ 920,000 | BUY | Unknown | 0.18 KM |
Nearby Properties
| Address | Price | Distance |
|---|---|---|
| 9 Vallenders Road | £ 440,000 | 0.03 KM |
| 3 Vallenders Road | £ 335,000 | 0.03 KM |
| 10 Vallenders Road | £ 310,000 | 0.03 KM |
| 14 Vallenders Road | £ 340,000 | 0.03 KM |
| 8 Vallenders Road | £ 113,000 | 0.03 KM |