Deepdale Drive, Rainhill, Prescot
By Stapleton Derby
£ 285,000
Reviews
3 out of 5 stars
Stapleton Derby says ..
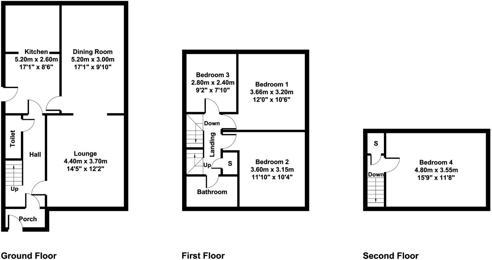
Ideal Family Home or Investment Opportunity - No Chain - Freehold - FULL REWIRE Stapleton Derby proudly presents this spacious four-bedroom semi-detached residence with a garage, perfectly situated on the outskirts of Rainhill Village. This impressive property enjoys a convenient locati...
Property Oracle says ..
This property is located in Rainhill, Merseyside, which benefits from being close to several highly-rated schools such as Rainhill Community Nursery and Oakdene Primary School, both rated as outstanding by Ofsted. Rainhill train station is also within walking distance, providing convenient access to other areas. The property itself appears to be in reasonable condition, although some modernisation may be desirable. The images show a garden, and while the square footage is not provided, it seems to be of a decent size. Considering the average house price in the area is significantly higher (£614,521) and the list price of £285,000, this property could represent good value for money, especially compared to similar properties in the area listed between £225,000 and £250,000. However, the lack of square footage data makes a precise assessment difficult.
Therefore, we give this property 7 / 10. *Disclaimer: This is our option and does constitute a recommendation or financial advice. Do your own research. *
- Price
- 8
- Condition
- 6
- Location
- 8
- Land
- 7
- Bedrooms
- 4
- Bathrooms
- 1
The heatmap indicates the level of crime in the area. The color of the heatmap indicates the crime severity and recency.
Metrics Year-on-Year
- Average area value
- 463,000.00 £Increased by 57.40 %
- Average area rental value
- 1,250.00 £/moIncreased by 26.52 %
- Est rental Yield
- 3.24 %Decreased by 19.60 %
- Crime Rate
- 5.00 %Unchanged by 0.00 %
Agent Activity
Stapleton Derby created the listing.
Nearby Schools
| Name | Type | Ofsted | Distance |
|---|---|---|---|
| Rainhill Community Nursery | Local Authority Nursery School | Outstanding | 0.01 KM |
| Rainhill High School | Academy Converter | Requires improvement | 0.58 KM |
| Oakdene Primary School | Community School | Outstanding | 0.83 KM |
| St Ann'S Church Of England Primary School | Academy Converter | 0.99 KM | |
| Tower College | Other Independent School | 1.03 KM |
Images
Nearby Streets
| Name | Average Price | Average Sqft | Distance |
|---|---|---|---|
| Wharfedale Drive | £ 0 | 0 | 0.00 KM |
| Briars Close | £ 0 | 0 | 0.00 KM |
| Braithwaite Close | £ 175,000 | 0 | 0.00 KM |
| Swale Avenue | £ 365,000 | 0 | 0.00 KM |
| Park Avenue | £ 250,000 | 0 | 0.00 KM |
Nearby Transport
| Name | NLC | TLC | Distance |
|---|---|---|---|
| Rainhill | 2296 | RNH | 1.08 KM |
| Thatto Heath | 2264 | THH | 2.35 KM |
| Eccleston Park | 2227 | ECL | 3.08 KM |
| Lea Green | 2339 | LEG | 3.73 KM |
| Whiston | 2161 | WHN | 4.39 KM |
Nearby Listings
| Address | Price | Type | Score | Distance |
|---|---|---|---|---|
| Deepdale Drive, Rainhill, Prescot | £ 285,000 | BUY | 7 / 10 | 0.00 KM |
| Deepdale Drive, Rainhill, Prescot | £ 240,000 | BUY | Unknown | 0.01 KM |
| Nidderdale Avenue, Rainhill, Prescot | £ 285,000 | BUY | 6 / 10 | 0.08 KM |
| Nidderdale Avenue, Rainhill, Prescot, Merseyside, L35 | £ 260,000 | BUY | 7 / 10 | 0.09 KM |
| Nidderdale Avenue, Rainhill, Prescot | £ 310,000 | BUY | 8 / 10 | 0.10 KM |
Nearby Properties
| Address | Price | Distance |
|---|---|---|
| 62 Deepdale Drive | £ 150,500 | 0.01 KM |
| 36 Deepdale Drive | £ 300,000 | 0.01 KM |
| 68 Deepdale Drive | £ 139,950 | 0.01 KM |
| 24 Deepdale Drive | £ 147,500 | 0.01 KM |
| 66 Deepdale Drive | £ 145,000 | 0.01 KM |