EV
Cockreed Lane, New Romney, TN28 8TE
By Evolution Properties
£ 325,000
Reviews
3 out of 5 stars
Evolution Properties says ..
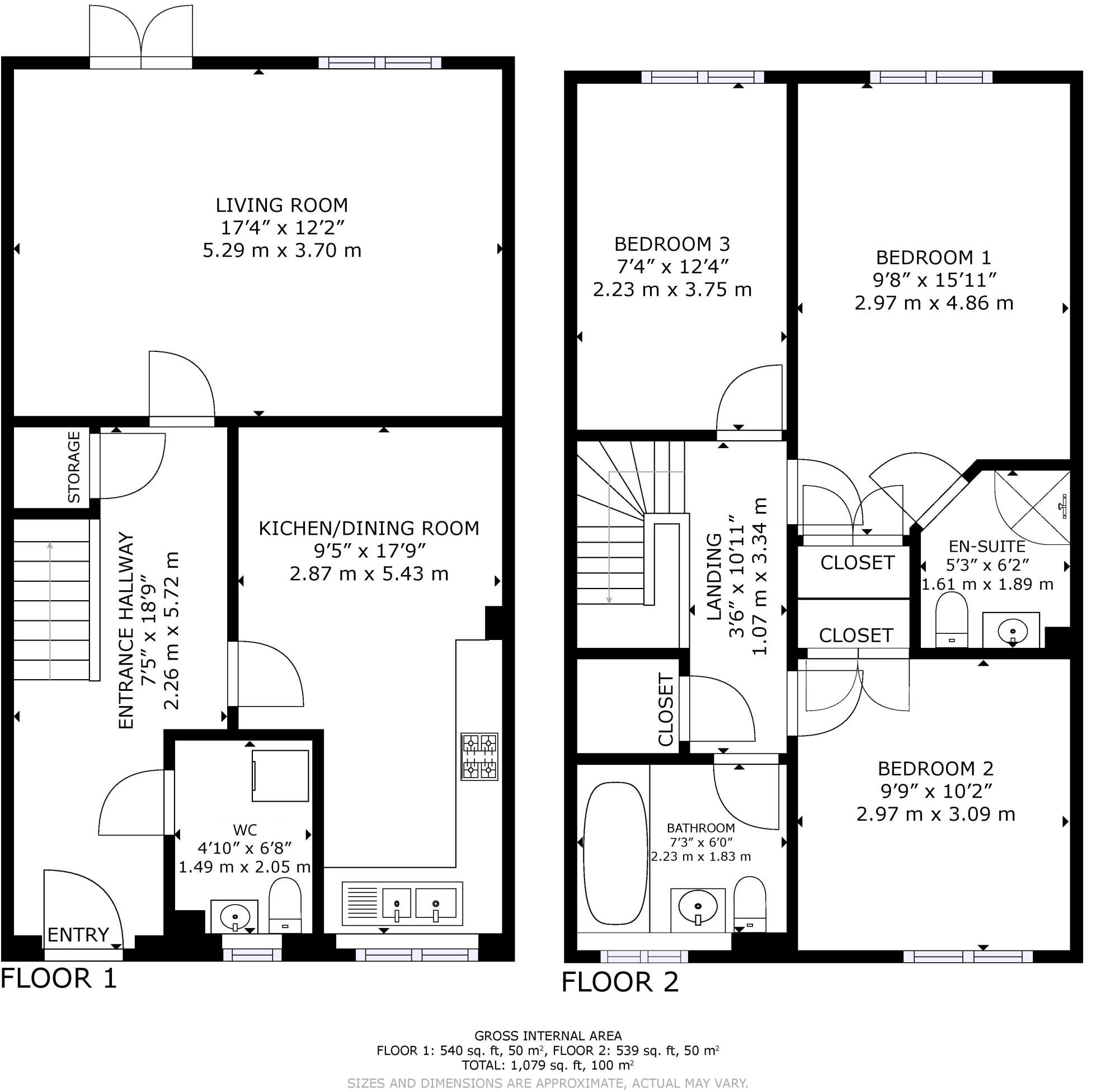
Immaculate 3-bed Pentland home (2018 build) on Cockreed Lane! Spacious, modern living with en-suite master, integrated kitchen, and private garden. Two allocated parking spaces. High ceilings & quality finishes throughout. Don't miss this superb family home - view today!
Property Oracle says ..
Therefore, we give this property 7 / 10. *Disclaimer: This is our option and does constitute a recommendation or financial advice. Do your own research. *
- Price
- 8
- Condition
- 8
- Location
- 7
- Land
- 7
- Bedrooms
- 3
- Bathrooms
- 2
- Sqft (est)
- 1,009.68
The heatmap indicates the level of crime in the area. The color of the heatmap indicates the crime severity and recency.
Metrics Year-on-Year
- Average area value
- 457,944.00 £Increased by 18.97 %
- Est sale value
- 194,868.24 £Decreased by 32.04 %
- Average area rental value
- 1,300.00 £/moDecreased by 18.75 %
- Est letting value
- 0.00 £/moDecreased by 100.00 %
- Est rental Yield
- 3.41 %Decreased by 31.66 %
- Crime Rate
- 5.00 %Unchanged by 0.00 %
from 384,929.00 £
from 286,749.12 £
from 1,600.00 £/mo
from 1,009.68 £/mo
from 4.99 %
from 5.00 %
Agent Activity
Evolution Properties created the listing.
Nearby Schools
| Name | Type | Ofsted | Distance |
|---|---|---|---|
| New Romney Children'S Centre | Children's Centre | 0.37 KM | |
| St Nicholas Church Of England Primary Academy | Academy Sponsor Led | Good | 0.47 KM |
| The Marsh Academy | Academy Sponsor Led | Good | 0.84 KM |
| Romney Resource 2000 Limited (Romney Resource Centre) | Special Post 16 Institution | 1.35 KM | |
| Greatstone Primary School | Foundation School | Good | 3.51 KM |
Images
Nearby Streets
| Name | Average Price | Average Sqft | Distance |
|---|---|---|---|
| Shakespeare Crescent | £ 287,500 | 0 | 0.00 KM |
| Church Close | £ 0 | 0 | 0.00 KM |
| Burley Way | £ 0 | 0 | 0.00 KM |
| Elizabeth Cottages | £ 0 | 0 | 0.00 KM |
| Lemanis Close | £ 0 | 0 | 0.00 KM |
Nearby Listings
| Address | Price | Type | Score | Distance |
|---|---|---|---|---|
| Cockreed Lane, New Romney, TN28 8TE | £ 325,000 | BUY | 7 / 10 | 0.00 KM |
| Cockreed Lane, New Romney, Kent | £ 205,000 | BUY | 7 / 10 | 0.01 KM |
| Cockreed Lane, New Romney, Kent | £ 310,000 | BUY | 7 / 10 | 0.01 KM |
| Cockreed Lane, New Romney, Kent, TN28 | £ 300,000 | BUY | 6 / 10 | 0.04 KM |
| Pippin Close, New Romney, TN28 | £ 525,000 | BUY | 7 / 10 | 0.07 KM |
Nearby Properties
| Address | Price | Distance |
|---|---|---|
| The Coltings | £ 350,000 | 0.01 KM |
| 8 Bramley Way | £ 482,000 | 0.12 KM |
| Crantock | £ 248,000 | 0.14 KM |
| 71 Rolfe Lane | £ 595,000 | 0.24 KM |
| 67 Rolfe Lane | £ 415,000 | 0.24 KM |