Sefftons says ..
Sefftons are pleased to offer this CHAIN FREE Two Double Bedroom DETACHED BUNGALOW, IDEALLY LOCATED close to local amenities. Boasting a DRIVEWAY, DETACHED GARAGE and a WELL SIZED GARDEN, this represents a FANTASTIC OPPORTUNITY for those looking to put their own stamp on a property.
Property Oracle says ..
This property is a 2 bedroom detached bungalow located in Hellesdon, Norwich. The location benefits from being close to local schools such as Arden Grove Infant and Nursery School (Outstanding Ofsted rating) and Hellesdon High School (Good Ofsted rating), both within a short distance. Norwich city centre is also relatively accessible, given its proximity to transport links. The property itself appears well-maintained from the photos provided, although it has a traditional style and may not appeal to those seeking a modern aesthetic. The bungalow has a garden, which is a desirable feature for many buyers. The list price is slightly below the average price for the area, but the property is smaller than average in terms of square footage. Considering its condition, location, and land size, the price appears reasonable.
Therefore, we give this property 7 / 10. *Disclaimer: This is our option and does constitute a recommendation or financial advice. Do your own research. *
- Price
- 7
- Condition
- 8
- Location
- 8
- Land
- 7
- Bedrooms
- 2
- Bathrooms
- 1
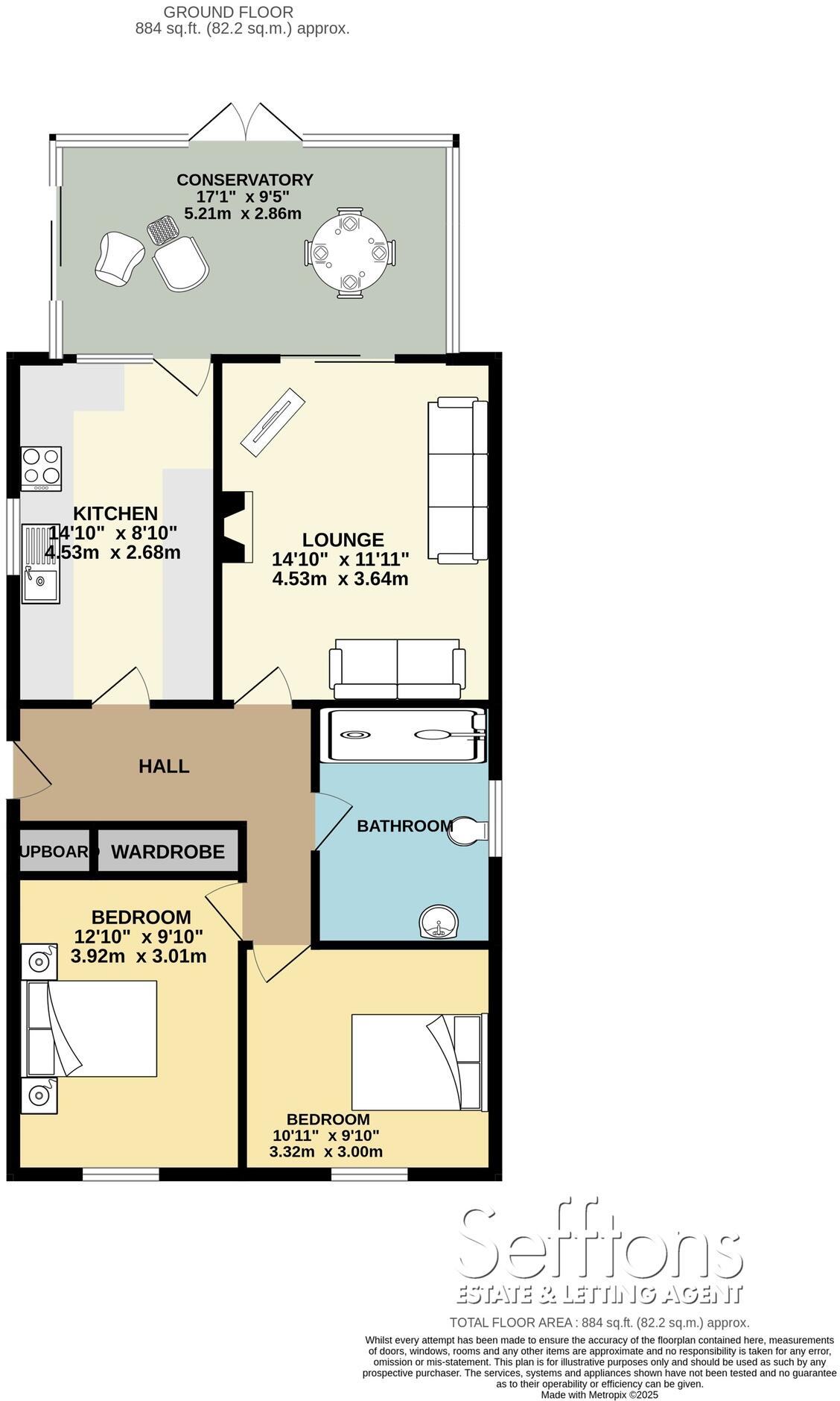
- Sqft (est)
- 684.00
- Lot (est)
- 884.00
The heatmap indicates the level of crime in the area. The color of the heatmap indicates the crime severity and recency.
Metrics Year-on-Year
- Average area value
- 417,969.00 £Increased by 36.61 %
- Est sale value
- 255,816.00 £Increased by 1.91 %
- Average area rental value
- 1,251.00 £/moIncreased by 48.05 %
- Est letting value
- 684.00 £/moUnchanged by 0.00 %
- Est rental Yield
- 3.59 %Increased by 8.46 %
- Crime Rate
- 12.00 %Unchanged by 0.00 %
Agent Activity
Sefftons created the listing.
Nearby Schools
| Name | Type | Ofsted | Distance |
|---|---|---|---|
| Arden Grove Infant And Nursery School | Academy Converter | Outstanding | 0.26 KM |
| Hellesdon High School | Academy Converter | Good | 0.90 KM |
| Kinsale Junior School | Academy Converter | 0.91 KM | |
| Kinsale Infant School | Community School | Good | 0.91 KM |
| Firside Junior School | Academy Converter | Good | 1.46 KM |
Images
Nearby Streets
| Name | Average Price | Average Sqft | Distance |
|---|---|---|---|
| Saint Andrews Road | £ 335,000 | 0 | 0.00 KM |
| Pleasant Close | £ 240,000 | 0 | 0.00 KM |
| Oak Tree Lane | £ 0 | 0 | 0.00 KM |
| Shrub Lane | £ 290,000 | 0 | 0.00 KM |
| Beech Close | £ 0 | 0 | 0.00 KM |
Nearby Transport
| Name | NLC | TLC | Distance |
|---|---|---|---|
| Norwich | 7309 | NRW | 7.22 KM |
Nearby Listings
| Address | Price | Type | Score | Distance |
|---|---|---|---|---|
| Reepham Road, Norwich, Norfolk | £ 300,000 | BUY | 7 / 10 | 0.00 KM |
| Reepham Road, Hellesdon, Norwich, Norfolk, NR6 | £ 260,000 | BUY | 6 / 10 | 0.07 KM |
| Cottinghams Drive, Hellesdon, Norwich | £ 280,000 | BUY | 6 / 10 | 0.11 KM |
| Foxcotte Close, Hellesdon | £ 290,000 | BUY | Unknown | 0.14 KM |
| Cottinghams Drive, Hellesdon, Norwich, Norfolk, NR6 | £ 275,000 | BUY | 6 / 10 | 0.18 KM |
Nearby Properties
| Address | Price | Distance |
|---|---|---|
| 1 Cottinghams Drive | £ 298,000 | 0.07 KM |
| 13 Cottinghams Drive | £ 137,000 | 0.07 KM |
| 7 Cottinghams Drive | £ 230,000 | 0.07 KM |
| 9 Cottinghams Drive | £ 227,000 | 0.07 KM |
| 6 Cottinghams Drive | £ 270,000 | 0.07 KM |