Taxal Mews, Macclesfield Road, Whaley Bridge, High Peak
By Gascoigne Halman
£ 265,000
Reviews
3 out of 5 stars
Gascoigne Halman says ..
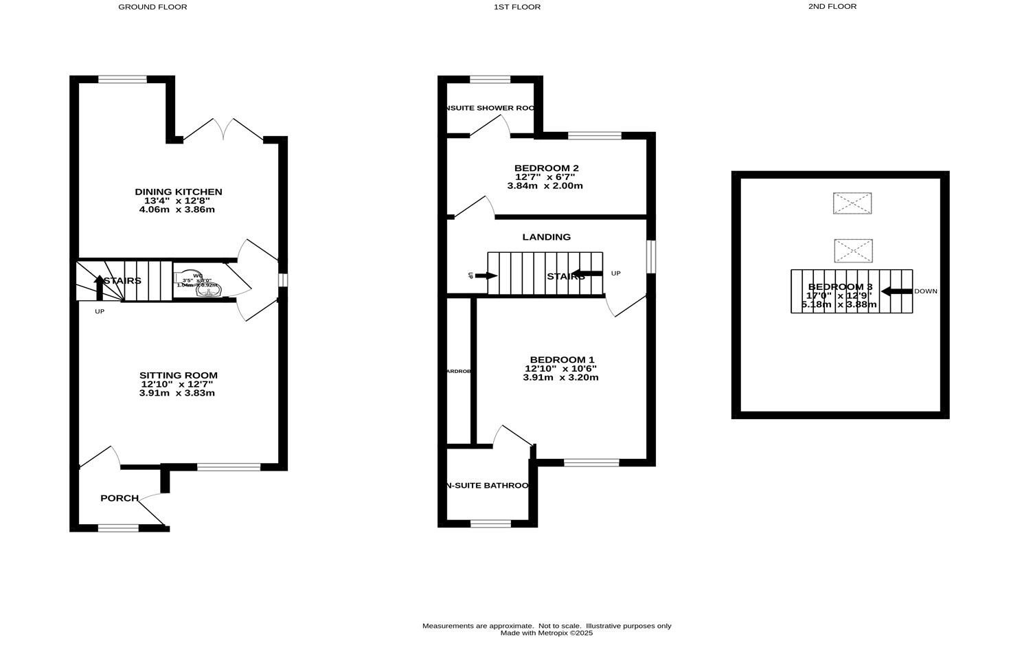
A MODERN STYLE semi detached property set within a quiet cul-de-sac location close to the Town of Whaley Bridge with excellent amenities including commuter links. The property has good accommodation over THREE LEVELS offering excellent living and dining kitchen spaces, THREE bedrooms, TWO bathroo...
Property Oracle says ..
This property is a 3-bedroom, 2-bathroom semi-detached house located in Whaley Bridge, High Peak, Derbyshire. The list price is £265,000, and the property has 1,495 sqft of living space. The average price for similar properties in the area is £295,393, with an average price per sqft of £301. This property is slightly below average in price per sqft. The property benefits from being close to several primary schools, with Taxal And Fernilee Cofe Primary School being the closest at 0.37km. There are also several train stations within a reasonable distance, making commuting convenient. The property includes a small garden, although it appears to be in need of some maintenance. Based on the images, the property appears to be in reasonable condition, although some minor updates or cosmetic improvements could enhance its appeal. The property seems to offer good value for money considering its location and features.
Therefore, we give this property 6 / 10. *Disclaimer: This is our option and does constitute a recommendation or financial advice. Do your own research. *
- Price
- 7
- Condition
- 7
- Location
- 8
- Land
- 4
- Bedrooms
- 3
- Bathrooms
- 2
- Sqft (est)
- 1,495.00
The heatmap indicates the level of crime in the area. The color of the heatmap indicates the crime severity and recency.
Metrics Year-on-Year
- Average area value
- 334,167.00 £Increased by 24.23 %
- Est sale value
- 384,215.00 £Decreased by 19.44 %
- Average area rental value
- 1,252.00 £/moIncreased by 4.33 %
- Est letting value
- 0.00 £/moDecreased by 100.00 %
- Est rental Yield
- 4.50 %Decreased by 15.89 %
- Crime Rate
- 46.00 %Unchanged by 0.00 %
Agent Activity
Gascoigne Halman created the listing.
Nearby Schools
| Name | Type | Ofsted | Distance |
|---|---|---|---|
| Taxal And Fernilee Cofe Primary School | Voluntary Controlled School | Good | 0.37 KM |
| Whaley Bridge Primary School | Community School | Requires improvement | 0.57 KM |
| Buxworth Primary School | Community School | Good | 2.76 KM |
| Furness Vale Primary And Nursery School | Community School | Good | 2.96 KM |
| Kettleshulme St James Cofe (Va) Primary School | Voluntary Aided School | Good | 3.73 KM |
Images
Nearby Streets
| Name | Average Price | Average Sqft | Distance |
|---|---|---|---|
| Vaughan Road | £ 0 | 0 | 0.00 KM |
| Manor Road | £ 0 | 0 | 0.00 KM |
| Overton Lane | £ 0 | 0 | 0.00 KM |
| Dale View | £ 602,500 | 0 | 0.00 KM |
| The Paddock | £ 235,000 | 0 | 0.00 KM |
Nearby Transport
| Name | NLC | TLC | Distance |
|---|---|---|---|
| Whaley Bridge | 2772 | WBR | 0.97 KM |
| Furness Vale | 2952 | FNV | 3.02 KM |
| New Mills Newtown | 2769 | NMN | 4.87 KM |
| Chinley | 2823 | CLY | 5.15 KM |
| New Mills Central | 2974 | NMC | 5.25 KM |
Nearby Listings
| Address | Price | Type | Score | Distance |
|---|---|---|---|---|
| Taxal Mews, Macclesfield Road, Whaley Bridge, High Peak | £ 265,000 | BUY | 6 / 10 | 0.00 KM |
| Macclesfield Road, Whaley Bridge, High Peak | £ 285,000 | BUY | 5 / 10 | 0.11 KM |
| Macclesfield Road, Whaley Bridge, High Peak | £ 245,000 | BUY | 6 / 10 | 0.11 KM |
| Macclesfield Road, Whaley Bridge, SK23 | £ 283,000 | BUY | 6 / 10 | 0.11 KM |
| Buxton Road, Whaley Bridge, High Peak | £ 395,000 | BUY | 7 / 10 | 0.14 KM |
Nearby Properties
| Address | Price | Distance |
|---|---|---|
| 126 Buxton Road | £ 347,500 | 0.13 KM |
| 128 Buxton Road | £ 245,000 | 0.13 KM |
| 148 Buxton Road | £ 275,000 | 0.13 KM |
| 166 Buxton Road | £ 160,378 | 0.13 KM |
| 122 Buxton Road | £ 123,000 | 0.13 KM |