Woodfield Avenue, Flint
By Flint @ Reid & Roberts
£ 350,000
Reviews
2 out of 5 stars
Flint @ Reid & Roberts says ..
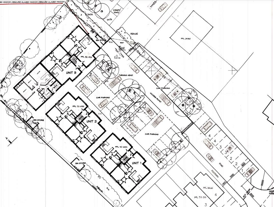
* DEVELOPMENT OPPORTUNITY * ATTENTION INVESTORS * TOWN CENTRE LOCATION * PLANNING APPLICATION NO: 060006 * ELEVATED POSITION * 19 INDIVIDUAL UNITS OVER 3 BLOCKS * Flint@ Reid & Roberts are pleased to offer For Sale the above Plot of Land which is approximately 0.6 acres and has Planni...
Property Oracle says ..
This property is a 0.6-acre plot of land located in Flint, Wales, listed at £350,000. The land is currently overgrown and undeveloped. The listing highlights it as a development opportunity for investors, with planning permission (application number 060006) potentially in place. The location offers proximity to Flint town centre, providing easy access to amenities, schools (including St. Mary’s R.C. Primary School and St. Richard Gwyn Catholic High School within a short distance), and transport links (Flint train station is 0.74km away). However, the photos reveal the land is in need of significant preparation and clearing before construction can begin. The price is potentially high, given the current condition of the land and the uncertainty surrounding planning permission and ultimate build costs. Investors should carefully assess the viability of the development plans and compare the land cost to similar opportunities in the region, before proceeding. Given the current state of the land and the significant investment required for preparation and development, a thorough due diligence is crucial. It is important to note that detailed information about the property (like square footage and number of rooms) is unavailable.
Therefore, we give this property 5 / 10. *Disclaimer: This is our option and does constitute a recommendation or financial advice. Do your own research. *
- Price
- 6
- Condition
- 4
- Location
- 7
- Land
- 5
- Bedrooms
- 0
- Bathrooms
- 0
The heatmap indicates the level of crime in the area. The color of the heatmap indicates the crime severity and recency.
Metrics Year-on-Year
- Average area value
- 267,500.00 £Decreased by 0.99 %
- Average area rental value
- 1,107.00 £/moDecreased by 6.11 %
- Est rental Yield
- 4.97 %Decreased by 5.15 %
- Crime Rate
- 18.00 %Unchanged by 0.00 %
Agent Activity
Flint @ Reid & Roberts created the listing.
Nearby Schools
| Name | Type | Ofsted | Distance |
|---|---|---|---|
| St Mary'S R.C. Primary School | Welsh Establishment | 0.23 KM | |
| St Richard Gwyn Roman Catholic High School | Welsh Establishment | 0.38 KM | |
| Ysgol Gymraeg Croes Atti | Welsh Establishment | 0.43 KM | |
| Gwynedd C.P. School | Welsh Establishment | 0.70 KM | |
| Flint High School | Welsh Establishment | 0.94 KM |
Images
Nearby Streets
| Name | Average Price | Average Sqft | Distance |
|---|---|---|---|
| Trelawny Avenue | £ 0 | 0 | 0.00 KM |
| Chester Street | £ 0 | 0 | 0.00 KM |
| Cae Hir | £ 0 | 0 | 0.00 KM |
| Swan Street | £ 0 | 0 | 0.00 KM |
| Lower Sydney Street | £ 0 | 0 | 0.00 KM |
Nearby Transport
| Name | NLC | TLC | Distance |
|---|---|---|---|
| Flint | 2513 | FLN | 0.74 KM |
| Neston | 2139 | NES | 9.09 KM |
Nearby Listings
| Address | Price | Type | Score | Distance |
|---|---|---|---|---|
| Woodfield Avenue, Flint | £ 350,000 | BUY | 5 / 10 | 0.00 KM |
| Prince of Wales Avenue, Flint, Flintshire, CH6 | £ 140,000 | BUY | 5 / 10 | 0.04 KM |
| Queens Avenue, Flint | £ 175,000 | BUY | 6 / 10 | 0.08 KM |
| Maes Y Dre Avenue, Flint, Flintshire, CH6 | £ 150,000 | BUY | Unknown | 0.13 KM |
| 46 Cae Hir, Flint, Clwyd, CH6 5UB | £ 160,000 | BUY | Unknown | 0.14 KM |
Nearby Properties
| Address | Price | Distance |
|---|---|---|
| 83 Woodfield Avenue | £ 110,000 | 0.06 KM |
| 92 Prince Of Wales Avenue | £ 75,000 | 0.07 KM |
| 88 Prince Of Wales Avenue | £ 108,500 | 0.07 KM |
| 121 Prince Of Wales Avenue | £ 38,000 | 0.07 KM |
| 76 Prince Of Wales Avenue | £ 118,500 | 0.07 KM |