Acorn says ..
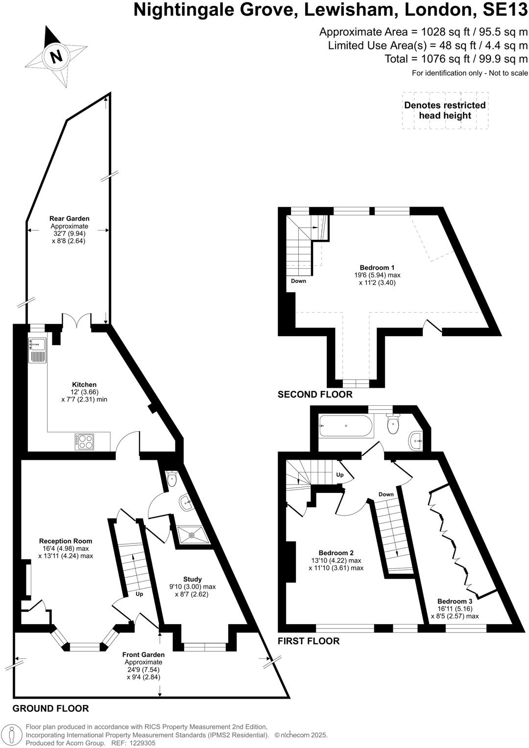
Guide Price £625,000 to £650,000 Acorn are pleased to welcome to the market this very well presented double fronted three bedroom family home, sitting circa 1,147 sq/ft of internal floor space, providing a sophisticated layout set across three floors, complemented with mass...
Property Oracle says ..
This three-bedroom terraced house on Nightingale Grove in Lewisham, London, presents a compelling offering for prospective buyers. The property’s interior demonstrates a modern aesthetic, with a renovated kitchen and bathrooms, indicating recent updates or diligent maintenance. The use of hardwood flooring throughout adds to the property’s appeal. The photos highlight a spacious layout across multiple floors, suitable for a family. The inclusion of a small, paved rear garden offers some outdoor space—a valuable commodity in London. The property’s location offers convenient access to Hither Green station and nearby highly-rated schools, further strengthening its attractiveness. While specific details on plot size and precise local pricing metrics are absent, the £625,000 asking price appears relatively competitive for the Lewisham area, based on the limited nearby property data. Potential buyers should perform their own thorough due diligence to verify all property details and obtain comprehensive comparable property data to make an informed purchase decision. Note that this analysis is based on the limited information and photographic evidence provided and does not constitute a professional property valuation.
Therefore, we give this property 6 / 10. *Disclaimer: This is our option and does constitute a recommendation or financial advice. Do your own research. *
- Price
- 7
- Condition
- 8
- Location
- 7
- Land
- 3
- Bedrooms
- 3
- Bathrooms
- 2
- Sqft (est)
- 1,076.00
The heatmap indicates the level of crime in the area. The color of the heatmap indicates the crime severity and recency.
Metrics Year-on-Year
- Average area value
- 474,750.00 £Increased by 4.39 %
- Est sale value
- 686,488.00 £Increased by 19.25 %
- Average area rental value
- 2,030.00 £/moIncreased by 10.33 %
- Est letting value
- 2,152.00 £/moUnchanged by 0.00 %
- Est rental Yield
- 5.13 %Increased by 5.77 %
- Crime Rate
- 5.00 %Unchanged by 0.00 %
Agent Activity
Acorn created the listing.
Nearby Schools
| Name | Type | Ofsted | Distance |
|---|---|---|---|
| Brindishe Green School | Community School | Outstanding | 0.39 KM |
| St Saviour'S Catholic Primary School | Voluntary Aided School | Good | 0.79 KM |
| St Mary'S Lewisham Church Of England Primary School | Voluntary Aided School | Good | 1.03 KM |
| Christ The King Sixth Form College | Further Education | Good | 1.10 KM |
| The Young Women'S Hub | Other Independent Special School | Requires improvement | 1.14 KM |
Images
Nearby Streets
| Name | Average Price | Average Sqft | Distance |
|---|---|---|---|
| Arlington Close | £ 0 | 0 | 0.00 KM |
| Eastdown Park | £ 0 | 0 | 0.00 KM |
| Oakley Drive | £ 0 | 0 | 0.00 KM |
| Orchard Mews | £ 475,000 | 0 | 0.00 KM |
| Plummer Court | £ 0 | 0 | 0.00 KM |
Nearby Transport
| Name | NLC | TLC | Distance |
|---|---|---|---|
| Hither Green | 5107 | HGR | 0.62 KM |
| Ladywell | 5057 | LAD | 1.46 KM |
| Lewisham | 5051 | LEW | 1.53 KM |
| Blackheath | 5095 | BKH | 2.07 KM |
| Lee | 5110 | LEE | 2.21 KM |
Nearby Listings
| Address | Price | Type | Score | Distance |
|---|---|---|---|---|
| Nightingale Grove, London, SE13 | £ 600,000 | BUY | 7 / 10 | 0.03 KM |
| 47-55 Knowles Hill Crescent, London , SE13 | £ 200,000 | BUY | 5 / 10 | 0.07 KM |
| Knowles Hill Crescent, Hither Green, SE13 | £ 825,000 | BUY | 6 / 10 | 0.07 KM |
| Courthill Road, London, SE13 | £ 250,000 | BUY | Unknown | 0.10 KM |
| Courthill Road, London SE13 | £ 450,000 | BUY | 7 / 10 | 0.11 KM |
Nearby Properties
| Address | Price | Distance |
|---|---|---|
| 9 Nightingale Grove | £ 390,000 | 0.02 KM |
| 19 Nightingale Grove | £ 121,000 | 0.02 KM |
| 7 Nightingale Grove | £ 420,000 | 0.02 KM |
| 5 Nightingale Grove | £ 250,000 | 0.02 KM |
| 5a Nightingale Grove | £ 230,000 | 0.02 KM |