TA
Sycamore Green, Old Park Farm, Dudley
By Taylors Estate Agents
£ 219,950
Reviews
3 out of 5 stars
Taylors Estate Agents says ..
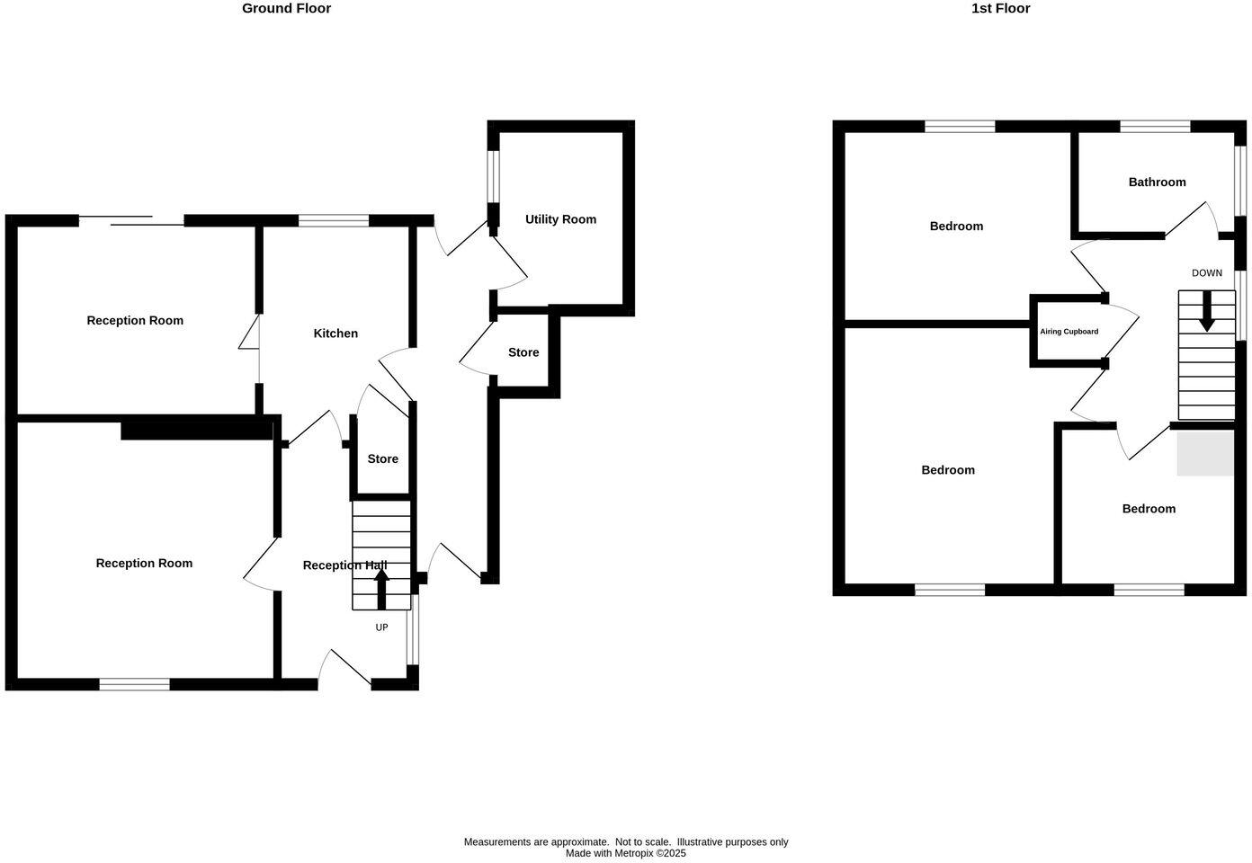
ATTRACTRIVE SEMI DETACHED FAMILY HOME on the popular 'Old Park Farm' development, within striking distance of Dudley Town, sought after schools plus other amenities! Well maintainted by current owners, the property is gas centrally heated & double glazed, and the accomdation briefly compro...
Property Oracle says ..
Therefore, we give this property 7 / 10. *Disclaimer: This is our option and does constitute a recommendation or financial advice. Do your own research. *
- Price
- 7
- Condition
- 6
- Location
- 7
- Land
- 8
- Bedrooms
- 3
- Bathrooms
- 1
The heatmap indicates the level of crime in the area. The color of the heatmap indicates the crime severity and recency.
Metrics Year-on-Year
- Average area value
- 231,400.00 £Decreased by 4.94 %
- Average area rental value
- 1,050.00 £/moIncreased by 7.03 %
- Est rental Yield
- 5.45 %Increased by 12.60 %
- Crime Rate
- 3.00 %Unchanged by 0.00 %
from 243,437.00 £
from 981.00 £/mo
from 4.84 %
from 3.00 %
Agent Activity
Taylors Estate Agents created the listing.
Nearby Schools
| Name | Type | Ofsted | Distance |
|---|---|---|---|
| Sycamore Short Stay School | Pupil Referral Unit | Good | 0.00 KM |
| Wrens Nest Children'S Centre | Children's Centre | 0.59 KM | |
| Wrens Nest Primary School | Community School | Good | 0.59 KM |
| Beacon Hill Academy | Academy Converter | Good | 0.75 KM |
| Bramford Primary School | Academy Sponsor Led | Good | 1.03 KM |
Images
Nearby Streets
| Name | Average Price | Average Sqft | Distance |
|---|---|---|---|
| Shearing Close | £ 265,000 | 0 | 0.00 KM |
| Stanton Avenue | £ 0 | 0 | 0.00 KM |
| Griffiths Road | £ 0 | 0 | 0.00 KM |
| Tamar Drive | £ 0 | 0 | 0.00 KM |
| Pool Street | £ 0 | 0 | 0.00 KM |
Nearby Transport
| Name | NLC | TLC | Distance |
|---|---|---|---|
| Coseley | 1143 | CSY | 2.89 KM |
| Tipton | 1159 | TIP | 4.42 KM |
| Dudley Port | 1212 | DDP | 6.21 KM |
| Cradley Heath | 4639 | CRA | 6.72 KM |
| Wolverhampton | 1218 | WVH | 6.82 KM |
Nearby Listings
| Address | Price | Type | Score | Distance |
|---|---|---|---|---|
| Sycamore Green, Old Park Farm, Dudley | £ 219,950 | BUY | 7 / 10 | 0.00 KM |
| Sycamore Green, Old Park Farm, Dudley | £ 209,950 | BUY | 6 / 10 | 0.01 KM |
| Blackthorne Road, Dudley | £ 194,950 | BUY | 6 / 10 | 0.17 KM |
| Mulberry Green, Dudley, DY1 3QF | £ 189,950 | BUY | 6 / 10 | 0.18 KM |
| Elm Green, Old Park Farm Estate, Dudley | £ 219,950 | BUY | 7 / 10 | 0.20 KM |
Nearby Properties
| Address | Price | Distance |
|---|---|---|
| 24 Sycamore Green | £ 86,000 | 0.01 KM |
| 37 Sycamore Green | £ 185,000 | 0.01 KM |
| 30 Sycamore Green | £ 112,000 | 0.01 KM |
| 19 Sycamore Green | £ 100,000 | 0.06 KM |
| 113 Parkes Hall Road | £ 145,000 | 0.15 KM |