Maple Avenue, Macclesfield
By Gascoigne Halman
£ 275,000
Reviews
3 out of 5 stars
Gascoigne Halman says ..
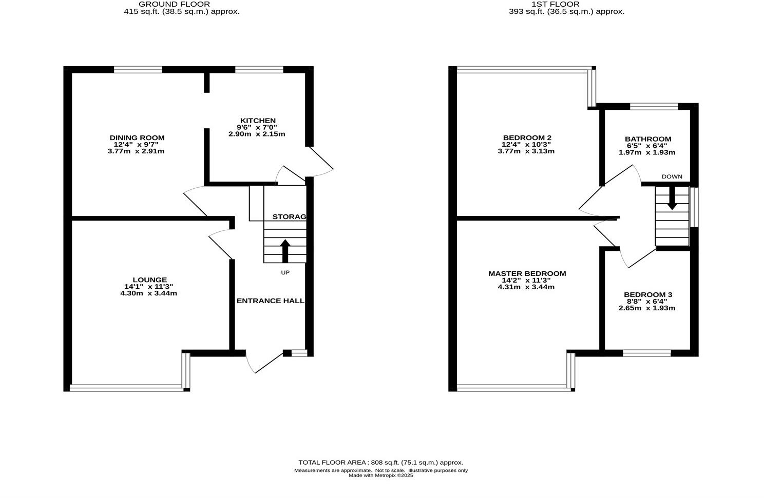
A well proportioned 1930s built three bedroom semi detached home boasting a fabulous size garden with views over South Park. Well presented but needs a little updating in parts.
Property Oracle says ..
This property is a 3-bedroom semi-detached house located on Maple Avenue in Macclesfield. The location benefits from being within reasonable distance of several schools, including Parkroyal Community School (rated Good by Ofsted) and Macclesfield College (also rated Good). Transport links appear good, with Macclesfield train station approximately 1.31km away. The property itself appears to be in reasonable condition, though some updating might be desirable to enhance its modern appeal. The property includes a garden, adding to its desirability. While the square footage is not provided, the list price of £275,000 seems slightly higher than the average price of £271,814 for the area, but comparable to other similar properties on Maple Avenue. More information on the size and specific features would be needed to provide a more detailed price analysis.
Therefore, we give this property 7 / 10. *Disclaimer: This is our option and does constitute a recommendation or financial advice. Do your own research. *
- Price
- 7
- Condition
- 7
- Location
- 8
- Land
- 7
- Bedrooms
- 3
- Bathrooms
- 1
- Sqft (est)
- 808.37
The heatmap indicates the level of crime in the area. The color of the heatmap indicates the crime severity and recency.
Metrics Year-on-Year
- Average area value
- 296,738.00 £Increased by 1.41 %
- Est sale value
- 299,096.90 £Increased by 42.31 %
- Average area rental value
- 988.00 £/moIncreased by 25.38 %
- Est letting value
- 808.37 £/mo
- Est rental Yield
- 4.00 %Increased by 23.84 %
- Crime Rate
- 2.00 %Unchanged by 0.00 %
Agent Activity
Gascoigne Halman created the listing.
Nearby Schools
| Name | Type | Ofsted | Distance |
|---|---|---|---|
| Christ The King Catholic And Church Of England Primary School | Academy Sponsor Led | 0.28 KM | |
| Ash Grove Children'S Centre | Children's Centre | 0.66 KM | |
| Ash Grove Academy | Academy Converter | 0.66 KM | |
| Parkroyal Community School | Academy Converter | Good | 1.20 KM |
| Macclesfield College | Further Education | Good | 1.21 KM |
Images
Nearby Streets
| Name | Average Price | Average Sqft | Distance |
|---|---|---|---|
| Thistleton Close | £ 0 | 0 | 0.00 KM |
| Western Avenue | £ 0 | 0 | 0.00 KM |
| Windsor Square | £ 0 | 0 | 0.00 KM |
| Smith Street | £ 0 | 0 | 0.00 KM |
| Harpur Close | £ 0 | 0 | 0.00 KM |
Nearby Transport
| Name | NLC | TLC | Distance |
|---|---|---|---|
| Macclesfield | 2871 | MAC | 1.31 KM |
| Prestbury | 2875 | PRB | 5.34 KM |
| Adlington (Cheshire) | 2939 | ADC | 7.89 KM |
Nearby Listings
| Address | Price | Type | Score | Distance |
|---|---|---|---|---|
| Maple Avenue, Macclesfield | £ 275,000 | BUY | 7 / 10 | 0.00 KM |
| Maple Avenue, Macclesfield | £ 270,000 | BUY | 7 / 10 | 0.09 KM |
| Maple Avenue, Macclesfield | £ 260,000 | BUY | Unknown | 0.10 KM |
| Hulme Square, Macclesfield, Cheshire East, SK11 7SG | £ 280,000 | BUY | 7 / 10 | 0.11 KM |
| Fir Grove, Macclesfield, SK11 7SF | £ 199,950 | BUY | 7 / 10 | 0.18 KM |
Nearby Properties
| Address | Price | Distance |
|---|---|---|
| 75 Maple Avenue | £ 158,000 | 0.08 KM |
| 46 Maple Avenue | £ 255,000 | 0.08 KM |
| 63 Maple Avenue | £ 270,000 | 0.08 KM |
| 54 Maple Avenue | £ 205,000 | 0.08 KM |
| 69 Maple Avenue | £ 190,000 | 0.08 KM |