Pennsylvania Road, Exeter
Francis Louis logo

Pennsylvania Road, Exeter

By Francis Louis

£ 1,700,000

Reviews

3 out of 5 stars

Francis Louis says ..

Student HMO Investment Opportunity Seize the chance to own two exceptional HMO properties in the heart of Exeter’s thriving student community. This rare investment opportunity includes a 12-bedroom HMO and a 4-bedroom HMO, situated in the prime student location with excellent access to the ci...

Property Oracle says ..

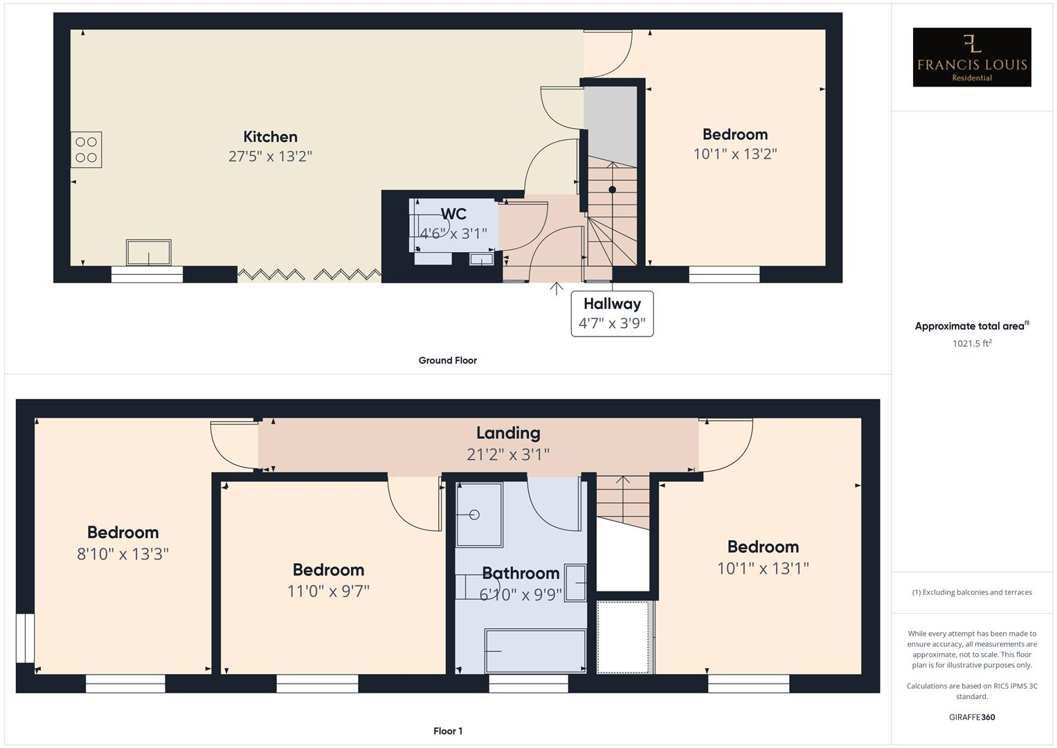
This property in Pennsylvania Road, Exeter is a large house with 16 bedrooms and 11 bathrooms. Its size suggests potential for a variety of uses, including a large family home, a multi-generational dwelling, or even student accommodation given its proximity to the University of Exeter. The property’s location offers easy access to local amenities, train stations and schools, and it appears structurally sound from the exterior photographs. However, the interior images reveal a mix of modernised and dated aspects, indicating potential for renovation or refurbishment to enhance the overall value. The lack of specific plot size data is a significant omission and should be clarified by prospective buyers. The £1,700,000 list price is high; however, it’s important to consider the high number of rooms, its location and potential for different usages. A detailed survey would help determine the actual condition of the house and the true value of the property. Prospective buyers should carefully weigh the costs of potential renovations, alongside the property’s suitability for their intended purpose, against the high asking price.

Therefore, we give this property 6 / 10. *Disclaimer: This is our option and does constitute a recommendation or financial advice. Do your own research. *

Price
7
Condition
6
Location
7
Land
4
Bedrooms
16
Bathrooms
11
Sqft (est)
3,895.80

The heatmap indicates the level of crime in the area. The color of the heatmap indicates the crime severity and recency.

Metrics Year-on-Year

Average area value
706,667.00 £
Increased by 49.96 %
from 471,233.00 £
Est sale value
2,656,935.60 £
Increased by 59.72 %
from 1,663,506.60 £
Average area rental value
1,211.00 £/mo
Increased by 36.68 %
from 886.00 £/mo
Est letting value
3,895.80 £/mo
from 0.00 £/mo
Est rental Yield
2.06 %
Decreased by 8.85 %
from 2.26 %
Crime Rate
0.00 %
from 0.00 %

Agent Activity

  • Francis Louis created the listing.

Nearby Schools

NameTypeOfstedDistance
St Sidwell'S Church Of England Primary School And NurseryVoluntary Aided SchoolGood0.57 KM
Exeter Mathematics SchoolFree Schools 16 To 19Outstanding1.10 KM
University Of ExeterHigher Education Institutions1.11 KM
Newtown Primary SchoolCommunity SchoolRequires improvement1.11 KM
Exeter Central (Flying Start Children'S Centre)Children's Centre1.11 KM

Images

CAM02887G0-PR0363-STILL042dp.jpg CAM02887G0-PR0364-STILL003dp.jpg CAM02887G0-PR0363-STILL012.jpg CAM02887G0-PR0363-STILL032.jpg CAM02887G0-PR0363-STILL015.jpg CAM02887G0-PR0363-STILL005.jpg CAM02887G0-PR0363-STILL002.jpg CAM02887G0-PR0364-STILL012.jpg CAM02887G0-PR0363-STILL011.jpg CAM02887G0-PR0363-STILL020.jpg CAM02887G0-PR0363-STILL028.jpg CAM02887G0-PR0363-STILL029.jpg CAM02887G0-PR0363-STILL026.jpg CAM02887G0-PR0363-STILL033.jpg CAM02887G0-PR0363-STILL025.jpg CAM02887G0-PR0363-STILL016.jpg CAM02887G0-PR0363-STILL009.jpg CAM02887G0-PR0364-STILL008.jpg CAM02887G0-PR0364-STILL007.jpg CAM02887G0-PR0364-STILL013.jpg CAM02887G0-PR0364-STILL010.jpg

Nearby Streets

NameAverage PriceAverage SqftDistance
St James' Terrace £ 000.00 KM
Beech Avenue £ 000.00 KM
Culverland Close £ 550,00000.00 KM
St James' Close £ 275,00000.00 KM
Townsend Court £ 000.00 KM

Nearby Transport

NameNLCTLCDistance
St James Park (Exeter)5751SJP0.42 KM
Exeter Central5755EXC1.29 KM
Exeter St David'S3410EXD2.16 KM
Exeter St Thomas3414EXT2.47 KM
Polsloe Bridge3422POL2.50 KM

Nearby Listings

AddressPriceTypeScoreDistance
Pennsylvania Road, Exeter £ 1,700,000BUY6 / 100.00 KM
Pennsylvania Road, Pennsylvania, Exeter £ 70,000BUY4 / 100.09 KM
Kingsgate, Pennsylvania Road, Exeter, Devon, EX4 £ 59,950BUY7 / 100.09 KM
Kingsgate, Pennsylvania Road, Exeter, Devon, EX4 £ 125,000BUY6 / 100.09 KM
Kingsgate, Pennsylvania Road, Exeter, Devon £ 50,000BUYUnknown0.09 KM

Nearby Properties

AddressPriceDistance
90 Pennsylvania Road £ 778,6740.03 KM
88 Pennsylvania Road £ 67,5000.03 KM
Fallows £ 362,0000.09 KM
12 Pennsylvania Close £ 410,0000.11 KM
2 Pennsylvania Close £ 540,0000.11 KM