Millards Property says ..
A wonderful, large family home with an annexe, gardens and ample parking
Property Oracle says ..
Therefore, we give this property 6 / 10. *Disclaimer: This is our option and does constitute a recommendation or financial advice. Do your own research. *
- Price
- 5
- Condition
- 8
- Location
- 7
- Land
- 7
- Bedrooms
- 4
- Bathrooms
- 3
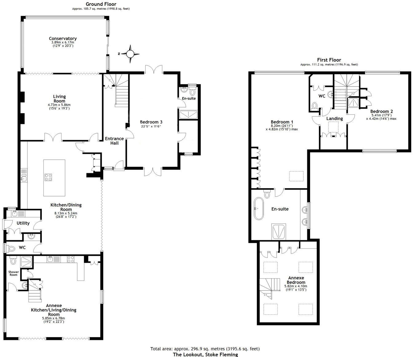
- Sqft (est)
- 2,661.19
The heatmap indicates the level of crime in the area. The color of the heatmap indicates the crime severity and recency.
Metrics Year-on-Year
- Average area value
- 216,225.00 £Decreased by 4.32 %
- Est sale value
- 697,231.78 £Increased by 37.89 %
- Average area rental value
- 863.00 £/moDecreased by 37.87 %
- Est letting value
- 2,661.19 £/moUnchanged by 0.00 %
- Est rental Yield
- 4.79 %Decreased by 35.09 %
- Crime Rate
- 91.00 %Unchanged by 0.00 %
from 225,977.00 £
from 505,626.10 £
from 1,389.00 £/mo
from 2,661.19 £/mo
from 7.38 %
from 91.00 %
Agent Activity
Millards Property created the listing.
Nearby Schools
| Name | Type | Ofsted | Distance |
|---|---|---|---|
| Stoke Fleming Community Primary School | Academy Converter | 0.79 KM | |
| Dartmouth Academy | Academy Sponsor Led | Good | 2.04 KM |
| Dartmouth & District Children'S Centre | Children's Centre | 2.06 KM | |
| St John The Baptist Roman Catholic Primary School, Dartmouth | Academy Converter | Good | 2.07 KM |
| Kingswear Community Primary School | Academy Converter | Good | 4.06 KM |
Images
Nearby Streets
| Name | Average Price | Average Sqft | Distance |
|---|---|---|---|
| Rectory Lane | £ 0 | 0 | 0.00 KM |
| Well Park Road | £ 0 | 0 | 0.00 KM |
| Redlap Road | £ 2,250,000 | 0 | 0.00 KM |
Nearby Listings
| Address | Price | Type | Score | Distance |
|---|---|---|---|---|
| Stoke Fleming | £ 850,000 | BUY | 6 / 10 | 0.00 KM |
| Bay View Estate, Stoke Fleming | £ 800,000 | BUY | Unknown | 0.04 KM |
| Bay View Estate, Stoke Fleming, Dartmouth, Devon, TQ6 | £ 795,000 | BUY | 7 / 10 | 0.06 KM |
| Venn Way, Stoke Fleming | £ 380,000 | BUY | Unknown | 0.17 KM |
| Stoke Fleming, TQ6 0RB | £ 275,000 | BUY | 4 / 10 | 0.19 KM |
Nearby Properties
| Address | Price | Distance |
|---|---|---|
| Fairfield | £ 237,000 | 0.05 KM |
| The Sheiling | £ 416,000 | 0.05 KM |
| Woodfield | £ 775,000 | 0.05 KM |
| 3 Bay View Estate | £ 350,000 | 0.05 KM |
| Pemberley | £ 354,000 | 0.05 KM |