WH
Cherry Tree Way, Bradshaw
By Whittakers Estate Agents
£ 280,000
Reviews
3 out of 5 stars
Whittakers Estate Agents says ..
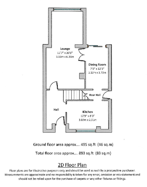
Lovely extended family home NOT OVERLOOKED AT THE REAR. 2 reception rooms, fantastic high gloss kitchen and beautiful shower room. Side by side parking and perfect for schools and bus stops.
Property Oracle says ..
Therefore, we give this property 7 / 10. *Disclaimer: This is our option and does constitute a recommendation or financial advice. Do your own research. *
- Price
- 8
- Condition
- 7
- Location
- 7
- Land
- 8
- Bedrooms
- 3
- Bathrooms
- 1
- Sqft (est)
- 424.08
The heatmap indicates the level of crime in the area. The color of the heatmap indicates the crime severity and recency.
Metrics Year-on-Year
- Average area value
- 301,279.00 £Decreased by 4.72 %
- Est sale value
- 104,323.68 £Decreased by 15.17 %
- Average area rental value
- 988.00 £/moDecreased by 5.73 %
- Est letting value
- 0.00 £/mo
- Est rental Yield
- 3.94 %Decreased by 1.01 %
- Crime Rate
- 0.00 %
from 316,206.00 £
from 122,983.20 £
from 1,048.00 £/mo
from 0.00 £/mo
from 3.98 %
from 0.00 %
Agent Activity
Whittakers Estate Agents created the listing.
Nearby Schools
| Name | Type | Ofsted | Distance |
|---|---|---|---|
| Canon Slade Cofe School | Academy Converter | 0.22 KM | |
| St Columba'S Rc Primary School | Voluntary Aided School | Outstanding | 0.41 KM |
| Birtenshaw | Non-maintained Special School | Good | 0.91 KM |
| Birtenshaw | Special Post 16 Institution | Requires improvement | 1.10 KM |
| Castle Hill Primary School | Community School | Requires improvement | 1.16 KM |
Images
Nearby Streets
| Name | Average Price | Average Sqft | Distance |
|---|---|---|---|
| Jethro Street | £ 0 | 0 | 0.00 KM |
| Maud Street | £ 0 | 0 | 0.00 KM |
| Maple Street | £ 0 | 0 | 0.00 KM |
| Dell Street | £ 199,167 | 0 | 0.00 KM |
| Ashwell Street | £ 130,000 | 0 | 0.00 KM |
Nearby Transport
| Name | NLC | TLC | Distance |
|---|---|---|---|
| Hall-I'-Th'-Wood | 2572 | HID | 0.85 KM |
| Bromley Cross (Lancs) | 2697 | BMC | 1.12 KM |
| Bolton | 2599 | BON | 3.80 KM |
| Moses Gate | 2606 | MSS | 5.43 KM |
| Entwistle | 2747 | ENT | 5.80 KM |
Nearby Listings
| Address | Price | Type | Score | Distance |
|---|---|---|---|---|
| Cherry Tree Way, Bradshaw | £ 280,000 | BUY | 7 / 10 | 0.00 KM |
| Cherry Tree Way, Bradshaw, Bolton, BL2 3BS | £ 285,000 | BUY | 7 / 10 | 0.03 KM |
| Linden Walk, Bradshaw, Bolton, BL2 3BT | £ 300,000 | BUY | 7 / 10 | 0.11 KM |
| Oaks Lane, Bolton, BL2 | £ 395,000 | BUY | 7 / 10 | 0.12 KM |
| Oaks Lane, Bradshaw, Bolton, BL2 3BR | £ 240,000 | BUY | 7 / 10 | 0.15 KM |
Nearby Properties
| Address | Price | Distance |
|---|---|---|
| 15 Cherry Tree Way | £ 164,000 | 0.04 KM |
| 14 Cherry Tree Way | £ 170,500 | 0.04 KM |
| 16 Cherry Tree Way | £ 156,000 | 0.04 KM |
| 17 Cherry Tree Way | £ 165,000 | 0.04 KM |
| 24 Cherry Tree Way | £ 206,000 | 0.04 KM |