Delaval Terrace, Gosforth, Newcastle upon Tyne
By Bailey & Co.
£ 300,000
Reviews
3 out of 5 stars
Bailey & Co. says ..
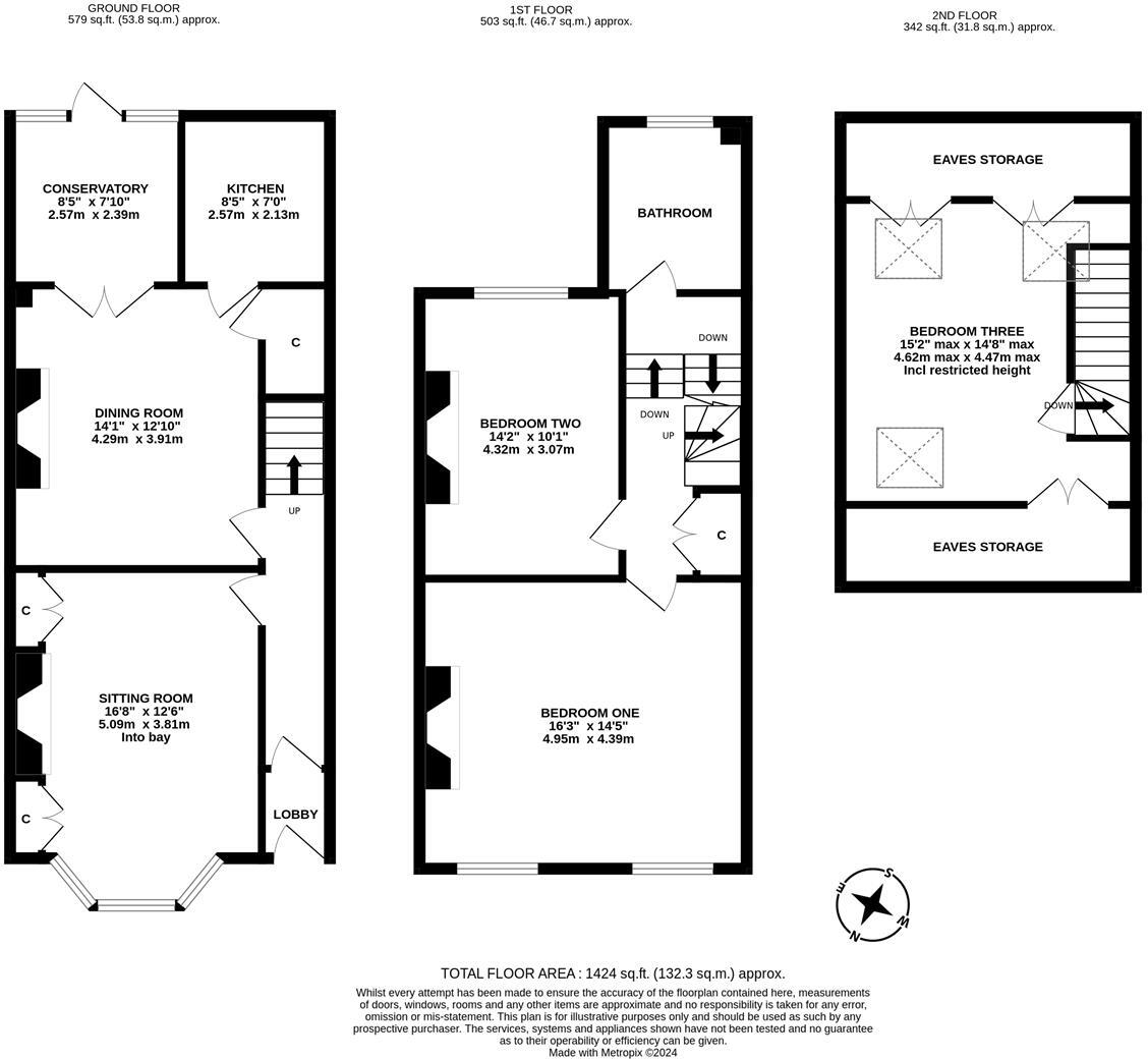
Well Presented Three Bedroom Mid-Terrace House Set Over Three Floors with South East Facing Rear Yard and No Onward Chain! Ideally located on the south-east backing side of Delaval Terrace, Gosforth. Delaval Terrace, situated within a stone's throw from the shops and amenities of Ashburton Road,...
Property Oracle says ..
This three-bedroom terraced house is located on Delaval Terrace in Gosforth, Newcastle upon Tyne. The property appears to be well-maintained and presented, with modern amenities and a rear garden. Gosforth is a desirable residential area known for its good schools and convenient access to amenities and transport links. While the provided square footage is missing, the plot size is 1,424 sqft. Comparing the list price of £300,000 to the average price of £537,186 and average price per sqft of £336 in the area suggests it could be considered good value, especially considering the property’s apparent condition and location. However, more information on the internal square footage would be needed to make a definitive assessment of the price.
Therefore, we give this property 7 / 10. *Disclaimer: This is our option and does constitute a recommendation or financial advice. Do your own research. *
- Price
- 7
- Condition
- 8
- Location
- 9
- Land
- 6
- Bedrooms
- 3
- Bathrooms
- 1
- Lot (est)
- 1,424.00
The heatmap indicates the level of crime in the area. The color of the heatmap indicates the crime severity and recency.
Metrics Year-on-Year
- Average area value
- 1,142,500.00 £Increased by 139.22 %
- Average area rental value
- 1,237.00 £/moDecreased by 7.48 %
- Est rental Yield
- 1.30 %Decreased by 61.31 %
- Crime Rate
- 5.00 %Unchanged by 0.00 %
Agent Activity
Bailey & Co. created the listing.
Nearby Schools
| Name | Type | Ofsted | Distance |
|---|---|---|---|
| Wyndham Primary School | Academy Converter | Good | 0.78 KM |
| Westfield School | Other Independent School | 0.81 KM | |
| Regent Farm First School | Foundation School | Good | 1.19 KM |
| Newcastle School For Boys | Other Independent School | 1.28 KM | |
| Archibald First School | Foundation School | Outstanding | 1.29 KM |
Images
Nearby Streets
| Name | Average Price | Average Sqft | Distance |
|---|---|---|---|
| Ashburton Road | £ 0 | 0 | 0.00 KM |
| Arlington Court | £ 0 | 0 | 0.00 KM |
| The Croft | £ 0 | 0 | 0.00 KM |
| Sycamore Square | £ 0 | 0 | 0.00 KM |
| The Green | £ 190,000 | 0 | 0.00 KM |
Nearby Transport
| Name | NLC | TLC | Distance |
|---|---|---|---|
| Newcastle | 7728 | NCL | 4.30 KM |
| Manors | 7603 | MAS | 4.75 KM |
| Dunston | 7744 | DOT | 5.89 KM |
| Metrocentre | 7725 | MCE | 5.90 KM |
| Blaydon | 7503 | BLO | 9.46 KM |
Nearby Listings
| Address | Price | Type | Score | Distance |
|---|---|---|---|---|
| Delaval Terrace, Gosforth, Newcastle upon Tyne | £ 300,000 | BUY | 7 / 10 | 0.00 KM |
| Delaval Terrace, Gosforth, Newcastle upon Tyne | £ 180,000 | BUY | 6 / 10 | 0.02 KM |
| Delaval Terrace, Newcastle Upon Tyne | £ 280,000 | BUY | 5 / 10 | 0.03 KM |
| Otterburn Avenue, Gosforth, NE3 | £ 335,000 | BUY | 6 / 10 | 0.04 KM |
| Otterburn Avenue, Newcastle upon Tyne, Tyne and Wear, NE3 | £ 380,000 | BUY | 6 / 10 | 0.04 KM |
Nearby Properties
| Address | Price | Distance |
|---|---|---|
| 34 Delaval Terrace | £ 146,250 | 0.04 KM |
| 31 Delaval Terrace | £ 194,000 | 0.04 KM |
| 21 Delaval Terrace | £ 274,500 | 0.04 KM |
| 6 Delaval Terrace | £ 180,000 | 0.04 KM |
| 40 Delaval Terrace | £ 174,000 | 0.04 KM |