Cowdrie Way, Chelmsford, CM2 6
By Beaulieu Estates Limited
£ 650,000
Reviews
3 out of 5 stars
Beaulieu Estates Limited says ..
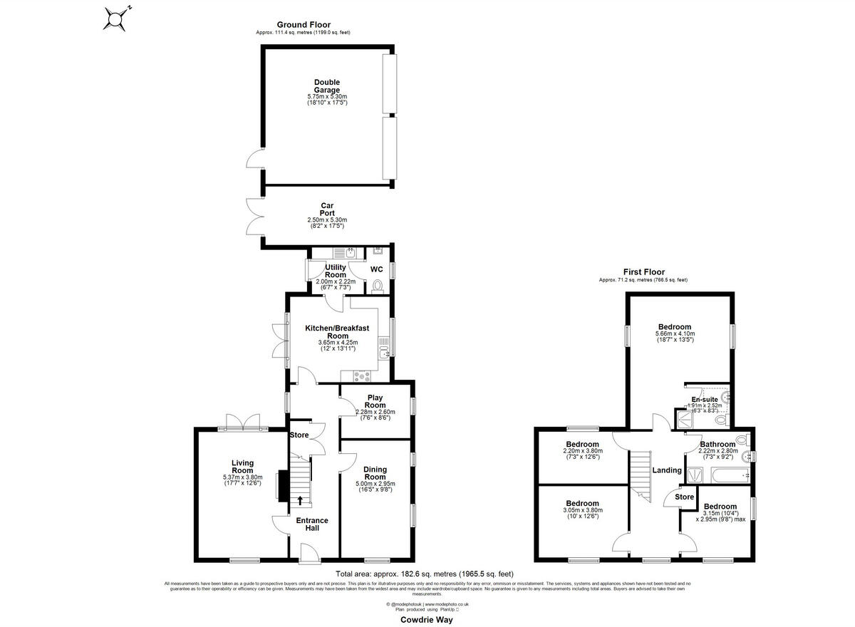
Beaulieu Estates are delighted to present this attractive and well-maintained four/five-bedroom detached family home, positioned on a generous corner plot within the sought-after Chancellor Park development
Property Oracle says ..
This is a detached property located on Cowdrie Way, Chelmsford. It features four bedrooms and one bathroom, with a total square footage of 1,965.49. The property includes a garden with a decked area. While the property offers ample space, some interior aspects appear dated and may require renovation. The property is located close to local schools and transport links. The asking price seems high compared to the average price per square foot in the area.
Therefore, we give this property 6 / 10. *Disclaimer: This is our option and does constitute a recommendation or financial advice. Do your own research. *
- Price
- 6
- Condition
- 6
- Location
- 7
- Land
- 7
- Bedrooms
- 4
- Bathrooms
- 1
- Sqft (est)
- 1,965.49
The heatmap indicates the level of crime in the area. The color of the heatmap indicates the crime severity and recency.
Metrics Year-on-Year
- Average area value
- 149,800.00 £Decreased by 39.37 %
- Est sale value
- 316,443.89 £Decreased by 30.90 %
- Average area rental value
- 1,131.00 £/moIncreased by 5.60 %
- Est letting value
- 1,965.49 £/moUnchanged by 0.00 %
- Est rental Yield
- 9.06 %Increased by 74.23 %
- Crime Rate
- 7.00 %Unchanged by 0.00 %
Agent Activity
Beaulieu Estates Limited created the listing.
Nearby Schools
| Name | Type | Ofsted | Distance |
|---|---|---|---|
| Chancellor Park Primary School, Chelmsford | Community School | Outstanding | 0.69 KM |
| Barnes Farm Infant School | Academy Converter | 1.15 KM | |
| Barnes Farm Junior School | Academy Converter | 1.15 KM | |
| Che1/A Chelmsford Central Family Hub | Children's Centre | 1.90 KM | |
| The Bishops' Church Of England And Roman Catholic Primary School | Voluntary Aided School | Good | 2.28 KM |
Images
Nearby Streets
| Name | Average Price | Average Sqft | Distance |
|---|---|---|---|
| Portway | £ 0 | 0 | 0.00 KM |
| Webb Close | £ 0 | 0 | 0.00 KM |
| Hollis Lock | £ 550,000 | 0 | 0.00 KM |
| White Hart Lane | £ 0 | 0 | 0.00 KM |
| Village Gate | £ 550,000 | 0 | 0.00 KM |
Nearby Transport
| Name | NLC | TLC | Distance |
|---|---|---|---|
| Chelmsford | 6836 | CHM | 5.45 KM |
| Hatfield Peverel | 6845 | HAP | 9.28 KM |
Nearby Listings
| Address | Price | Type | Score | Distance |
|---|---|---|---|---|
| Cowdrie Way, Chelmsford, CM2 6 | £ 650,000 | BUY | 6 / 10 | 0.00 KM |
| Cornelius Vale, Chelmer Village, Chelmsford, Essex, CM2 | £ 350,000 | BUY | 7 / 10 | 0.05 KM |
| Cowdrie Way, Chelmer Village, Chelmsford | £ 700,000 | BUY | 6 / 10 | 0.06 KM |
| Cowdrie Way, Chancellor Park, Chelmsford, Essex, CM2 | £ 650,000 | BUY | 6 / 10 | 0.06 KM |
| Cowdrie Way, Chelmsford | £ 400,000 | BUY | 7 / 10 | 0.07 KM |
Nearby Properties
| Address | Price | Distance |
|---|---|---|
| 12 Cowdrie Way | £ 200,000 | 0.06 KM |
| 27 Cowdrie Way | £ 197,000 | 0.06 KM |
| 9 Cowdrie Way | £ 205,000 | 0.06 KM |
| 58 Cowdrie Way | £ 265,000 | 0.06 KM |
| 13 Cowdrie Way | £ 230,000 | 0.06 KM |