Hawthorne Grove, Poulton-le-fylde, FY6
By Keller Williams Oxygen
£ 190,000
Reviews
3 out of 5 stars
Keller Williams Oxygen says ..
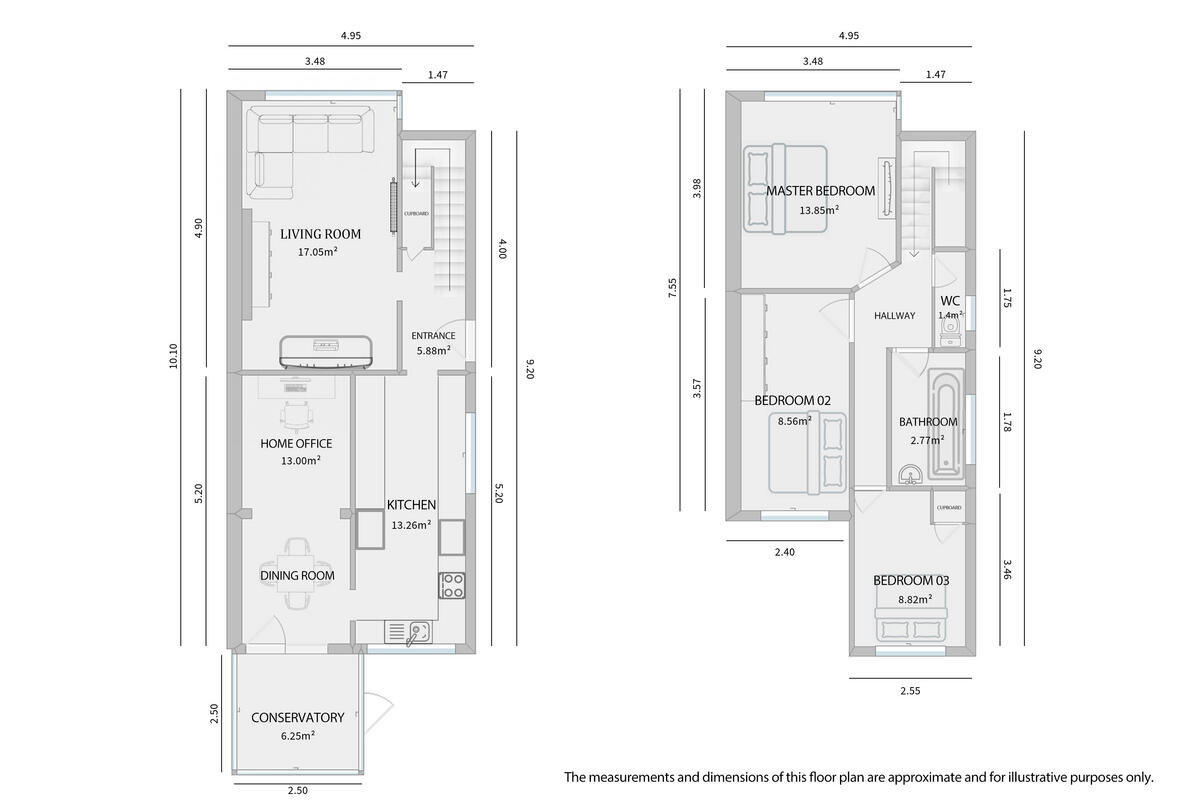
Energy-efficient 3-bed semi with solar income, conservatory, large garden, double garage (development potential), new boiler, and EV charging prep. Chain-free, EPC C, in a quiet area near schools, transport, and M55. Ideal for families or investors
Property Oracle says ..
This three-bedroom semi-detached house in Poulton-le-Fylde, Lancashire is located on Hawthorne Grove in the Carleton area. The property benefits from a modern kitchen and recently updated bathrooms. There is also a conservatory that opens onto a manageable garden. The property is conveniently located near several good primary schools, including Carleton St Hilda’s Church of England Primary School and Carleton Green Community Primary School, both rated as “Good” by Ofsted. Several train stations are within a reasonable distance, providing convenient access to Blackpool and other areas. While the list price is below the average price for the area, it’s important to note that the average price per square foot is significantly higher than the property in question. This may be due to differences in size, features, or condition. More information on the plot size would help determine the overall value.
Therefore, we give this property 6 / 10. *Disclaimer: This is our option and does constitute a recommendation or financial advice. Do your own research. *
- Price
- 6
- Condition
- 8
- Location
- 7
- Land
- 6
- Bedrooms
- 3
- Bathrooms
- 1
- Sqft (est)
- 1,135.59
The heatmap indicates the level of crime in the area. The color of the heatmap indicates the crime severity and recency.
Metrics Year-on-Year
- Average area value
- 244,988.00 £Decreased by 26.94 %
- Est sale value
- 287,304.27 £Decreased by 0.78 %
- Average area rental value
- 1,075.00 £/moDecreased by 44.87 %
- Est letting value
- 1,135.59 £/moUnchanged by 0.00 %
- Est rental Yield
- 5.27 %Decreased by 24.50 %
- Crime Rate
- 8.00 %Unchanged by 0.00 %
Agent Activity
Keller Williams Oxygen created the listing.
Nearby Schools
| Name | Type | Ofsted | Distance |
|---|---|---|---|
| Carleton St Hilda'S Church Of England Primary School | Voluntary Aided School | Good | 0.53 KM |
| Carleton Green Community Primary School | Community School | Good | 0.87 KM |
| Poulton Le Fylde Children'S Centre | Children's Centre Linked Site | 1.27 KM | |
| Kincraig Children'S Centre | Children's Centre | 1.32 KM | |
| Kincraig Primary School | Community School | Good | 1.32 KM |
Images
Nearby Streets
| Name | Average Price | Average Sqft | Distance |
|---|---|---|---|
| Parkstone Avenue | £ 195,000 | 0 | 0.00 KM |
| Crown Green | £ 0 | 0 | 0.00 KM |
| Robins Close | £ 269,950 | 0 | 0.00 KM |
| Rosebud Close | £ 0 | 0 | 0.00 KM |
| Spring Lane | £ 0 | 0 | 0.00 KM |
Nearby Transport
| Name | NLC | TLC | Distance |
|---|---|---|---|
| Poulton-Le-Fylde | 2671 | PFY | 2.51 KM |
| Layton (Lancs) | 2669 | LAY | 2.96 KM |
| Blackpool North | 2739 | BPN | 5.52 KM |
| Blackpool South | 2740 | BPS | 7.48 KM |
| Blackpool Pleasure Beach | 2738 | BPB | 8.78 KM |
Nearby Listings
| Address | Price | Type | Score | Distance |
|---|---|---|---|---|
| Hawthorne Grove, Poulton-le-fylde, FY6 | £ 190,000 | BUY | 6 / 10 | 0.00 KM |
| Hawthorne Grove, Carleton | £ 249,950 | BUY | 7 / 10 | 0.08 KM |
| Winchester Drive, Poulton Le Fylde | £ 140,000 | BUY | 5 / 10 | 0.13 KM |
| Winchester Drive, Carleton, FY6 | £ 299,950 | BUY | 7 / 10 | 0.15 KM |
| Winchester Drive, Carleton, FY6 | £ 299,950 | BUY | Unknown | 0.15 KM |
Nearby Properties
| Address | Price | Distance |
|---|---|---|
| 32 Hawthorne Grove | £ 158,000 | 0.02 KM |
| 3 Hawthorne Grove | £ 130,000 | 0.02 KM |
| 17 Hawthorne Grove | £ 125,000 | 0.02 KM |
| 29 Hawthorne Grove | £ 310,000 | 0.02 KM |
| 1 Hawthorne Grove | £ 93,500 | 0.02 KM |