James Du Pavey says ..
Located in the desirable village of Hough, this three-bedroom detached bungalow is offered with no onward chain, making it an ideal choice for buyers looking for a smooth and speedy purchase.
Property Oracle says ..
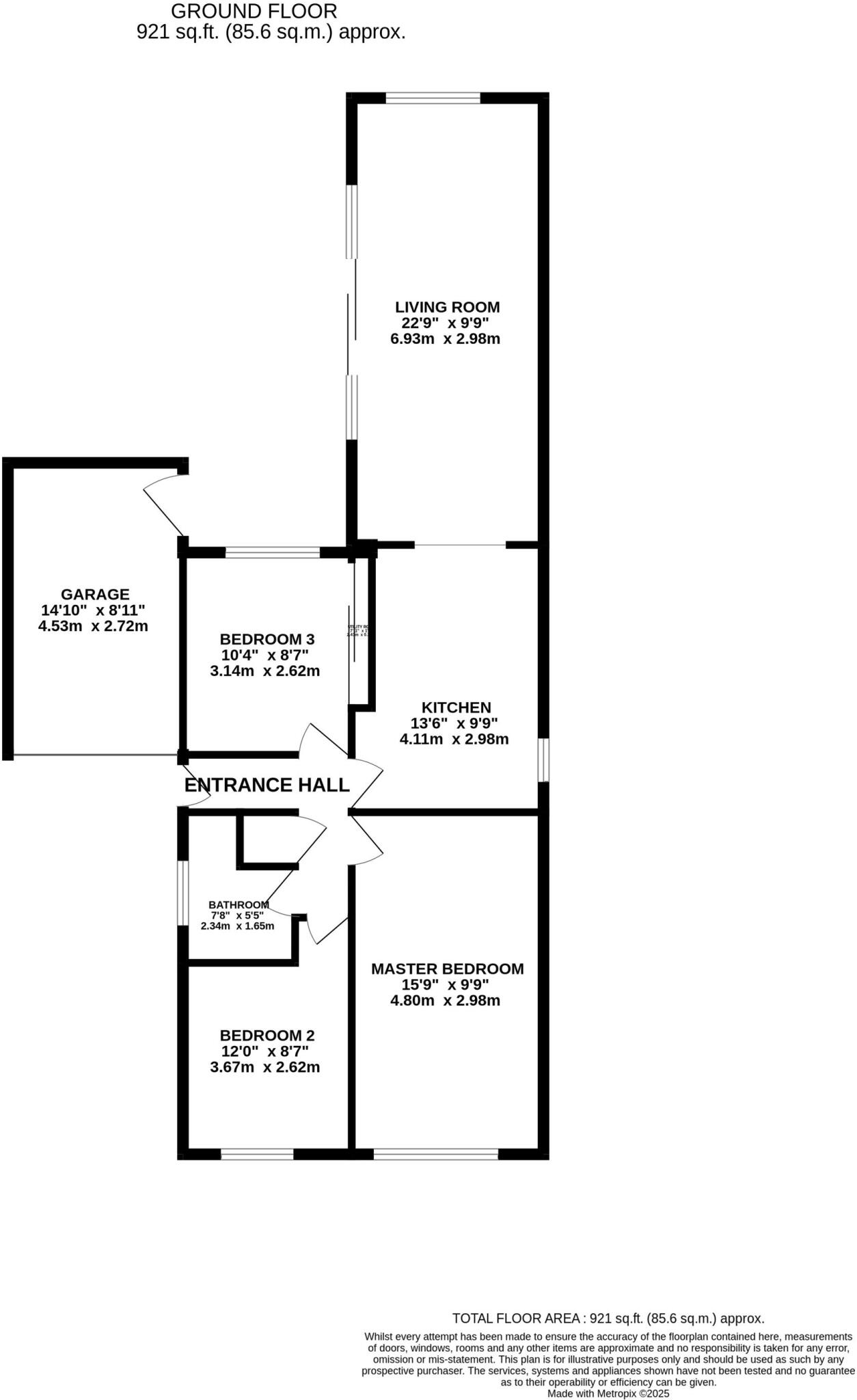
This is a three-bedroom detached bungalow located in Wybunbury, Cheshire East. The property offers a good-sized garden, a detached garage, and ample living space. While the property requires some modernisation, it presents a good opportunity for buyers looking to put their own stamp on a home in a desirable location. The proximity to local schools and transportation links adds to the appeal of this property. The price is competitive for the area, making it an attractive option for first-time buyers or those looking to downsize.
Therefore, we give this property 6 / 10. *Disclaimer: This is our option and does constitute a recommendation or financial advice. Do your own research. *
- Price
- 8
- Condition
- 5
- Location
- 7
- Land
- 7
- Bedrooms
- 3
- Bathrooms
- 1
- Sqft (est)
- 875.57
The heatmap indicates the level of crime in the area. The color of the heatmap indicates the crime severity and recency.
Metrics Year-on-Year
- Average area value
- 614,167.00 £Decreased by 18.27 %
- Est sale value
- 287,186.96 £Decreased by 20.19 %
- Average area rental value
- 1,688.00 £/moIncreased by 6.43 %
- Est letting value
- 0.00 £/mo
- Est rental Yield
- 3.30 %Increased by 30.43 %
- Crime Rate
- 30.00 %Unchanged by 0.00 %
Agent Activity
James Du Pavey created the listing.
Nearby Schools
| Name | Type | Ofsted | Distance |
|---|---|---|---|
| Shavington Primary School | Academy Converter | Good | 1.97 KM |
| Wybunbury Delves Cofe Primary School | Academy Converter | 2.42 KM | |
| Shavington Academy | Academy Converter | Good | 3.24 KM |
| Weston Village Primary School | Academy Converter | 3.49 KM | |
| The Berkeley Academy | Academy Converter | Good | 3.50 KM |
Images
Nearby Streets
| Name | Average Price | Average Sqft | Distance |
|---|---|---|---|
| Norbury Close | £ 350,000 | 0 | 0.00 KM |
| Casey Lane | £ 0 | 0 | 0.00 KM |
| Larch Avenue | £ 290,000 | 0 | 0.00 KM |
| Richardson Close | £ 0 | 0 | 0.00 KM |
| Nursery Close | £ 230,000 | 0 | 0.00 KM |
Nearby Transport
| Name | NLC | TLC | Distance |
|---|---|---|---|
| Crewe | 1243 | CRE | 3.94 KM |
| Nantwich | 1247 | NAN | 9.70 KM |
Nearby Listings
| Address | Price | Type | Score | Distance |
|---|---|---|---|---|
| Woolston Drive, Hough, CW2 | £ 275,000 | BUY | 6 / 10 | 0.00 KM |
| Walnut Close, Hough, Cheshire | £ 467,000 | BUY | Unknown | 0.08 KM |
| Aldford Close, Crewe | £ 450,000 | BUY | 7 / 10 | 0.13 KM |
| Pit Lane, Hough, CW2 | £ 550,000 | BUY | 8 / 10 | 0.13 KM |
| Aldford Close, Hough, Crewe | £ 350,000 | BUY | 6 / 10 | 0.15 KM |
Nearby Properties
| Address | Price | Distance |
|---|---|---|
| 5 Walnut Close | £ 270,000 | 0.09 KM |
| 21 Pit Lane | £ 192,500 | 0.09 KM |
| 33 Pit Lane | £ 326,000 | 0.09 KM |
| 17 Pit Lane | £ 250,000 | 0.09 KM |
| 12 Pit Lane | £ 318,000 | 0.09 KM |