Avery Residential says ..
Property located in Poynton Road
Property Oracle says ..
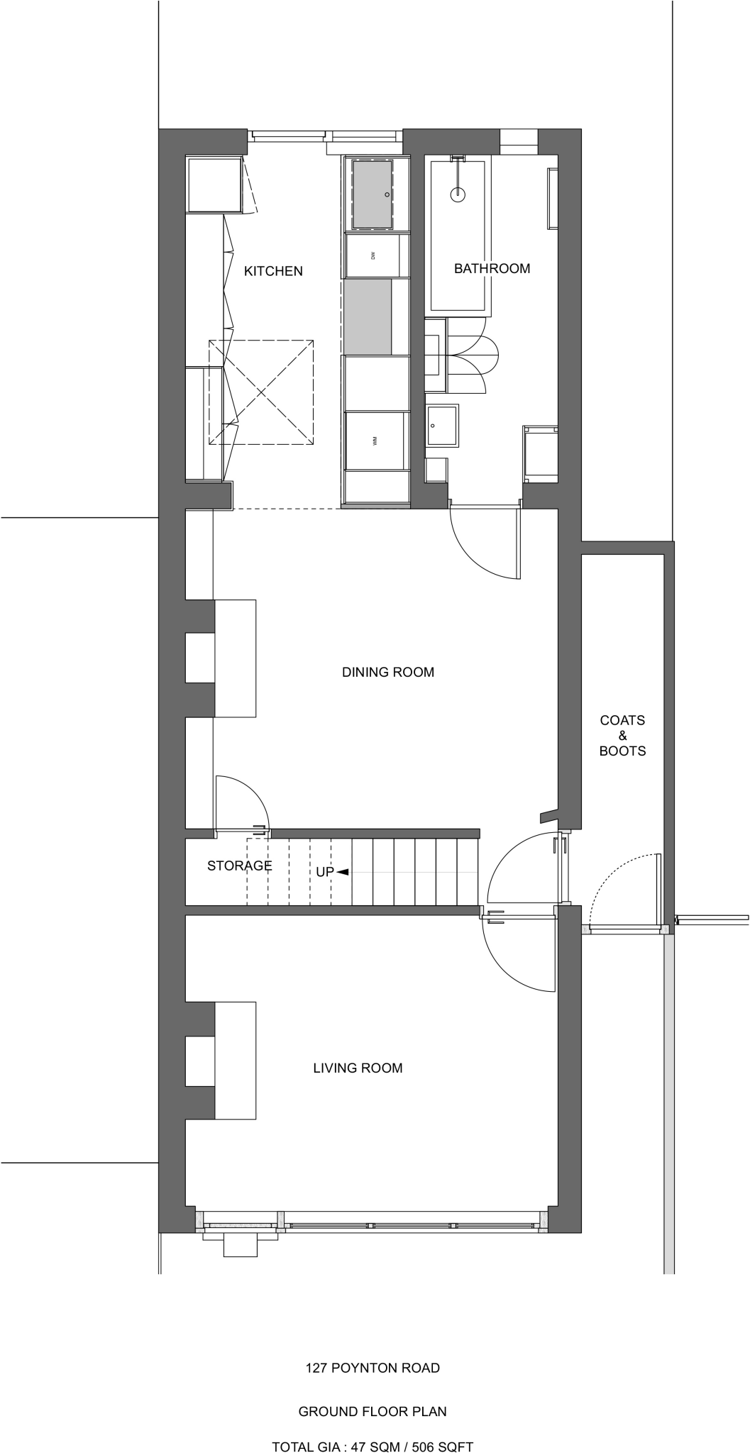
The property is a 2 bedroom, 1 bathroom terraced house located on Poynton Road, Tottenham Hale, Haringey, London. It has a total area of 797 sqft and benefits from a garden. The property appears to have been recently renovated to a good standard. The kitchen and bathroom are modern and well-equipped. The living spaces are bright and airy, with plenty of natural light. The garden is relatively small but well-maintained. The location is good, with excellent transport links to Tottenham Hale station, providing easy access to the Victoria Line and National Rail services. There are also several highly-rated schools within a short distance of the property. This makes the property attractive to families and commuters. Considering the property’s condition, location, and the relatively small plot size, the list price of £579,000 seems reasonable compared to the average price per sqft in the area (£725). While the average house price in the area is significantly higher (£1,128,824), this property is smaller and prices of similar properties on Poynton Road range from £170,000 to £420,000, suggesting the list price is within the typical range for the street. However, it’s important to note that the average sqft data for the area and nearby properties is missing. A more detailed comparison with similar properties in terms of size and condition would be needed to determine a definitive assessment of the price.
Therefore, we give this property 7 / 10. *Disclaimer: This is our option and does constitute a recommendation or financial advice. Do your own research. *
- Price
- 7
- Condition
- 9
- Location
- 8
- Land
- 4
- Bedrooms
- 2
- Bathrooms
- 1
- Sqft (est)
- 797.00
The heatmap indicates the level of crime in the area. The color of the heatmap indicates the crime severity and recency.
Metrics Year-on-Year
- Average area value
- 429,000.00 £Increased by 7.90 %
- Est sale value
- 275,762.00 £Decreased by 32.55 %
- Average area rental value
- 2,529.00 £/moIncreased by 1.89 %
- Est letting value
- 1,594.00 £/moDecreased by 33.33 %
- Est rental Yield
- 7.07 %Decreased by 5.61 %
- Crime Rate
- 7.00 %Unchanged by 0.00 %
Agent Activity
Avery Residential marked this listing as sold.
Avery Residential created the listing.
Nearby Schools
| Name | Type | Ofsted | Distance |
|---|---|---|---|
| Harris Primary Academy Coleraine Park | Academy Sponsor Led | Outstanding | 0.14 KM |
| Harris Academy Tottenham | Free Schools | Outstanding | 0.63 KM |
| Park Lane Children'S Centre | Children's Centre | 0.65 KM | |
| The Mulberry Primary School | Community School | Good | 0.76 KM |
| Lea Valley Primary School | Community School | Good | 0.78 KM |
Images
Nearby Streets
| Name | Average Price | Average Sqft | Distance |
|---|---|---|---|
| Somerford Grove | £ 0 | 0 | 0.00 KM |
| Emilia Place | £ 430,000 | 0 | 0.00 KM |
| Albion Road | £ 0 | 0 | 0.00 KM |
| Woodrow Court | £ 0 | 0 | 0.00 KM |
| Tamar Way | £ 0 | 0 | 0.00 KM |
Nearby Transport
| Name | NLC | TLC | Distance |
|---|---|---|---|
| Northumberland Park | 6971 | NUM | 0.83 KM |
| Tottenham Hale | 6951 | TOM | 0.96 KM |
| Bruce Grove | 6958 | BCV | 1.20 KM |
| White Hart Lane | 6956 | WHL | 1.56 KM |
| Meridian Water | 6599 | MRW | 1.57 KM |
Nearby Listings
| Address | Price | Type | Score | Distance |
|---|---|---|---|---|
| Poynton Road, Tottenham, N17 | £ 450,000 | BUY | Unknown | 0.00 KM |
| Poynton Road | £ 579,000 | BUY | 7 / 10 | 0.00 KM |
| Rosebery Avenue, London | £ 230,000 | BUY | 6 / 10 | 0.04 KM |
| Rosebery Avenue, London, N17 | £ 495,000 | BUY | Unknown | 0.04 KM |
| Rosebery Avenue, London, N17 | £ 519,995 | BUY | 6 / 10 | 0.04 KM |
Nearby Properties
| Address | Price | Distance |
|---|---|---|
| 57 Poynton Road | £ 185,000 | 0.00 KM |
| 137 Poynton Road | £ 67,500 | 0.00 KM |
| 131 Poynton Road | £ 185,000 | 0.00 KM |
| 133 Poynton Road | £ 170,000 | 0.00 KM |
| 141 Poynton Road | £ 375,000 | 0.00 KM |