Woodbine Lane, Worcester Park
WA

Woodbine Lane, Worcester Park

By Watson Homes

£ 525,000

Reviews

3 out of 5 stars

Watson Homes says ..

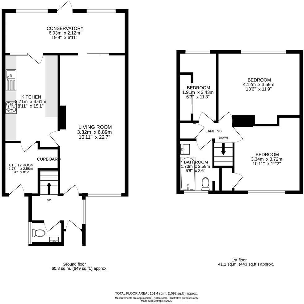
Nestled in a tranquil cul-de-sac on Woodbine Lane, this charming three-bedroom mid-terrace house, built in 1965, offers a delightful blend of modern living and classic comfort. The property boasts two spacious reception rooms, perfect for entertaining guests or enjoying family time. The stunning ...

Property Oracle says ..

This is a well-presented three-bedroom house in Worcester Park. The property benefits from a modern kitchen and bathroom, a garden, and good transport links. The property is located close to several well-regarded schools, making it an ideal family home. The price is reasonable for the area and the condition of the property.

Therefore, we give this property 7 / 10. *Disclaimer: This is our option and does constitute a recommendation or financial advice. Do your own research. *

Price
7
Condition
8
Location
7
Land
6
Bedrooms
3
Bathrooms
1
Sqft (est)
267.91

The heatmap indicates the level of crime in the area. The color of the heatmap indicates the crime severity and recency.

Metrics Year-on-Year

Average area value
866,667.00 £
Increased by 67.38 %
from 517,784.00 £
Est sale value
124,578.15 £
Decreased by 8.10 %
from 135,562.46 £
Average area rental value
2,225.00 £/mo
Increased by 16.19 %
from 1,915.00 £/mo
Est letting value
267.91 £/mo
Unchanged by 0.00 %
from 267.91 £/mo
Est rental Yield
3.08 %
Decreased by 30.63 %
from 4.44 %
Crime Rate
4.00 %
Unchanged by 0.00 %
from 4.00 %

Agent Activity

  • Watson Homes created the listing.

Nearby Schools

NameTypeOfstedDistance
Cheam Common Junior AcademyAcademy Sponsor LedGood0.57 KM
Cheam Common Infants' AcademyAcademy Converter0.65 KM
Dorchester Primary SchoolFoundation SchoolGood0.82 KM
Meadow Primary SchoolAcademy Converter0.86 KM
Meadow Sure Start Children'S CentreChildren's Centre0.86 KM

Images

IMG_0248.jpg 721b9fad-0290-4a27-b70a-49ea18db7342.jpg IMG_0260.jpg 379c5553-a9d6-46b5-9168-0f127aff42fc.jpg IMG_0229.jpg IMG_0191.jpg IMG_0200 (1).jpg IMG_0209 (1).jpg efd08cb7-ff08-412f-8a12-3480a8681ce2.jpg ca002741-67e3-4ea5-b114-3278ef59c332.jpg IMG_0224.jpg IMG_0237.jpg IMG_0241.jpg IMG_0245.jpg IMG_0252.jpg IMG_0205 (2).jpg IMG_0177 (1).jpg IMG_0250.jpg e82b15b2-ef00-4410-bcac-abacaa518b35.jpg IMG_0185.jpg IMG_0256.jpg

Nearby Streets

NameAverage PriceAverage SqftDistance
Woodbine Lane £ 520,00000.00 KM
Chiltern Close £ 500,00000.00 KM
Caldbeck Avenue £ 335,00000.00 KM
Richlands Avenue £ 000.00 KM
Stanton Close £ 000.00 KM

Nearby Transport

NameNLCTLCDistance
Worcester Park5579WCP1.57 KM
Stoneleigh5606SNL2.02 KM
Motspur Park5645MOT2.53 KM
Cheam5352CHE2.91 KM
West Sutton5293WSU3.23 KM

Nearby Listings

AddressPriceTypeScoreDistance
Woodbine Lane, Worcester Park £ 525,000BUY7 / 100.00 KM
Cheam Common Road, Worcester Park £ 425,000BUY6 / 100.04 KM
Woodbine Lane, Worcester Park, KT4 £ 525,000BUY7 / 100.05 KM
Cheam Common Road, Worcester Park £ 235,000BUY6 / 100.08 KM
Cheam Common Road, Worcester Park, KT4 £ 220,000BUY6 / 100.09 KM

Nearby Properties

AddressPriceDistance
19 Woodbine Lane £ 460,0000.07 KM
1 Woodbine Lane £ 250,0000.07 KM
6 Woodbine Lane £ 456,0000.07 KM
5 Woodbine Lane £ 430,1630.07 KM
12 Woodbine Lane £ 227,9500.07 KM