Rampton Baseley says ..
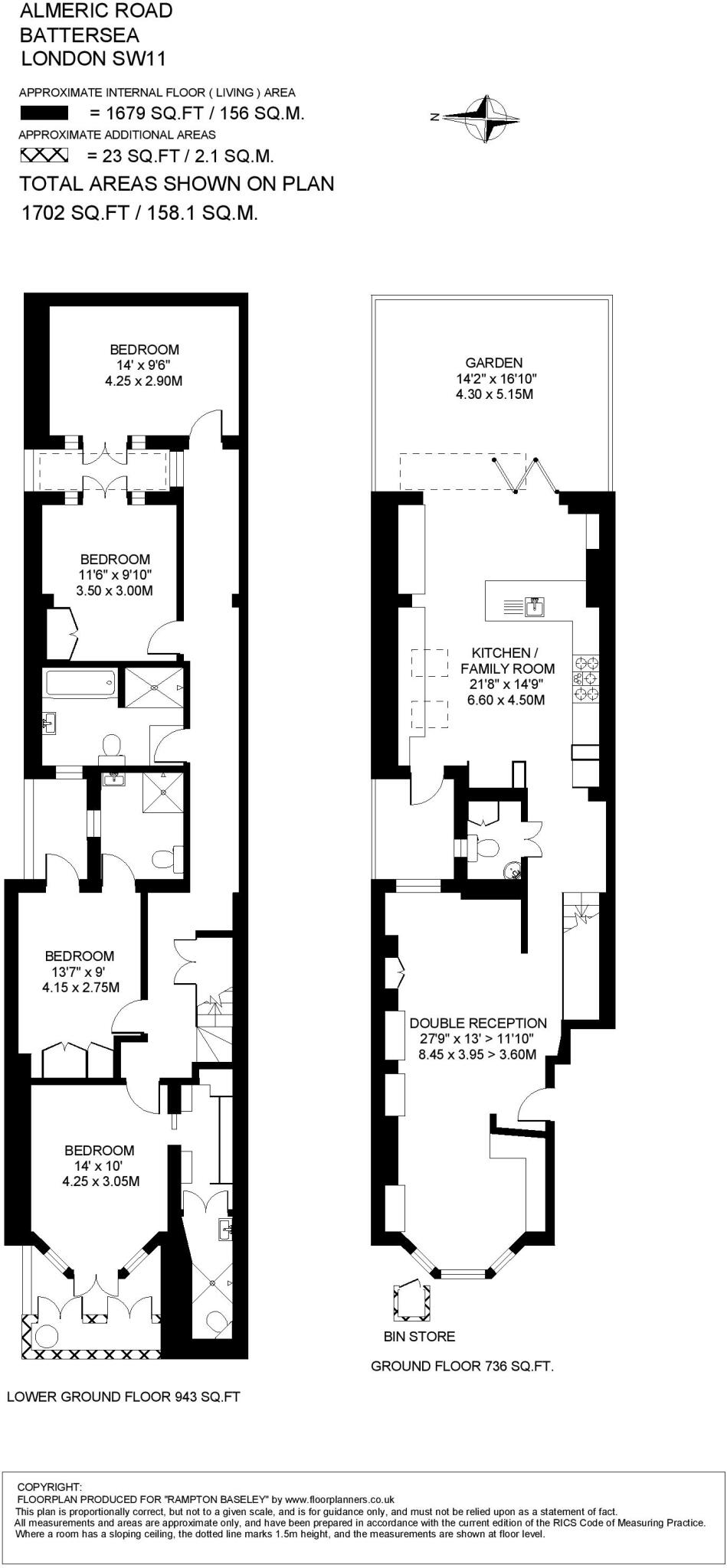
Occupying the ground and lower ground floors of a converted Victorian house is this well presented four-bedroom split level flat. With approximately 1,679 sq ft of living space, the flat boasts excellent proportions-throughout, a principal suite and an excellent private garden.
Property Oracle says ..
This is a well-presented four-bedroom apartment in the popular Northcote area of Wandsworth. The property benefits from a modern interior, a garden, and proximity to local amenities and transport links. While the square footage is relatively small for a four-bedroom property, the layout appears to be well-designed and makes good use of the available space. The price is in line with the local market, making it an attractive option for buyers looking in this area.
Therefore, we give this property 6 / 10. *Disclaimer: This is our option and does constitute a recommendation or financial advice. Do your own research. *
- Price
- 6
- Condition
- 8
- Location
- 7
- Land
- 6
- Bedrooms
- 4
- Bathrooms
- 3
- Sqft (est)
- 116.67
The heatmap indicates the level of crime in the area. The color of the heatmap indicates the crime severity and recency.
Metrics Year-on-Year
- Average area value
- 939,476.00 £Decreased by 7.90 %
- Est sale value
- 110,603.16 £Increased by 7.73 %
- Average area rental value
- 3,276.00 £/moIncreased by 16.67 %
- Est letting value
- 350.01 £/moIncreased by 50.00 %
- Est rental Yield
- 4.18 %Increased by 26.67 %
- Crime Rate
- 15.00 %Unchanged by 0.00 %
Agent Activity
Rampton Baseley created the listing.
Nearby Schools
| Name | Type | Ofsted | Distance |
|---|---|---|---|
| Dolphin School (Incorporating Noahs Ark Nursery Schools) | Other Independent School | 0.31 KM | |
| Belleville Primary School | Academy Converter | 0.40 KM | |
| Ark Bolingbroke Academy | Free Schools | Good | 0.51 KM |
| Honeywell Infant School | Foundation School | Outstanding | 0.68 KM |
| Honeywell Junior School | Foundation School | Outstanding | 0.68 KM |
Images
Nearby Streets
| Name | Average Price | Average Sqft | Distance |
|---|---|---|---|
| Cairns Road | £ 818,750 | 0 | 0.00 KM |
| Auckland Road | £ 701,818 | 0 | 0.00 KM |
| Aliwal Road | £ 0 | 0 | 0.00 KM |
| Eckstein Road | £ 950,000 | 0 | 0.00 KM |
| Falcon Lane | £ 389,000 | 0 | 0.00 KM |
Nearby Transport
| Name | NLC | TLC | Distance |
|---|---|---|---|
| Clapham Junction | 5595 | CLJ | 0.68 KM |
| Wandsworth Common | 5395 | WSW | 1.56 KM |
| Balham | 5399 | BAL | 2.38 KM |
| Wandsworth Town | 5576 | WNT | 2.46 KM |
| Imperial Wharf | 9586 | IMW | 2.51 KM |
Nearby Listings
| Address | Price | Type | Score | Distance |
|---|---|---|---|---|
| Almeric Road, SW11 | £ 1,100,000 | BUY | 6 / 10 | 0.00 KM |
| Almeric Road, SW11 | £ 1,300,000 | BUY | 7 / 10 | 0.00 KM |
| Almeric Road, SW11 | £ 800,000 | BUY | 9 / 10 | 0.00 KM |
| Almeric Road, SW11 | £ 875,000 | BUY | 8 / 10 | 0.02 KM |
| Almeric Road, London, SW11 | £ 925,000 | BUY | 7 / 10 | 0.02 KM |
Nearby Properties
| Address | Price | Distance |
|---|---|---|
| 32 Almeric Road | £ 1,750,000 | 0.01 KM |
| 9 Almeric Road | £ 125,000 | 0.01 KM |
| 6 Almeric Road | £ 1,350,000 | 0.01 KM |
| 12 Almeric Road | £ 332,500 | 0.01 KM |
| 44a Almeric Road | £ 560,000 | 0.01 KM |