Castle Street, Woolton, Liverpool
By Find Your Eden Limited
£ 300,000
Reviews
4 out of 5 stars
Find Your Eden Limited says ..
A beautiful opportunity to purchase this tastefully refurbished and sympathetically extended mid terraced property situated in a highly sought after and popular residential location of Woolton Village, being served by a wealth of amenities and surrounded by open green space.
Property Oracle says ..
The property is located in the desirable Woolton area of Liverpool, close to highly-rated schools and transport links. It has been recently renovated to a high standard, with a modern kitchen and bathrooms. The property includes a small garden. While slightly below the average price for the area, the smaller size and recent renovation make the price seem reasonable.
Therefore, we give this property 8 / 10. *Disclaimer: This is our option and does constitute a recommendation or financial advice. Do your own research. *
- Price
- 8
- Condition
- 9
- Location
- 9
- Land
- 6
- Bedrooms
- 2
- Bathrooms
- 1
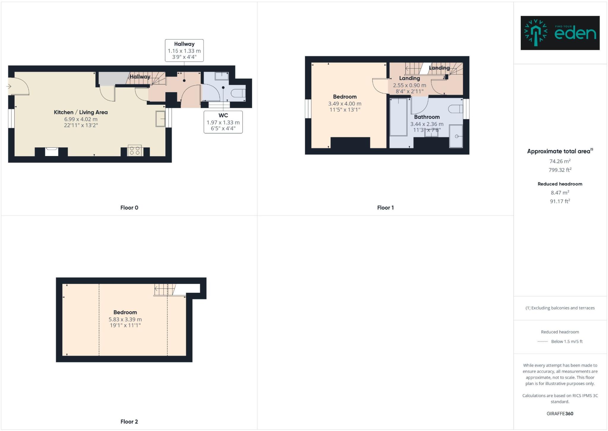
- Sqft (est)
- 799.33
The heatmap indicates the level of crime in the area. The color of the heatmap indicates the crime severity and recency.
Metrics Year-on-Year
- Average area value
- 399,369.00 £Decreased by 3.66 %
- Est sale value
- 385,277.06 £Increased by 49.69 %
- Average area rental value
- 1,324.00 £/moIncreased by 10.06 %
- Est letting value
- 799.33 £/mo
- Est rental Yield
- 3.98 %Increased by 14.37 %
- Crime Rate
- 11.00 %Unchanged by 0.00 %
Agent Activity
Find Your Eden Limited created the listing.
Nearby Schools
| Name | Type | Ofsted | Distance |
|---|---|---|---|
| Bishop Martin Church Of England Primary School, Woolton | Academy Converter | 0.50 KM | |
| Woolton High School | Community Special School | Good | 0.95 KM |
| St Francis Xavier'S College | Academy Converter | Requires improvement | 0.97 KM |
| Abbot'S Lea School | Community Special School | Outstanding | 0.99 KM |
| St Julie'S Catholic High School | Voluntary Aided School | Good | 1.15 KM |
Images
Nearby Streets
| Name | Average Price | Average Sqft | Distance |
|---|---|---|---|
| Castle Street | £ 296,111 | 0 | 0.00 KM |
| Vale Road | £ 201,000 | 0 | 0.00 KM |
| Cobden Place | £ 215,000 | 0 | 0.00 KM |
| Poplar Road | £ 382,500 | 0 | 0.00 KM |
| Pitt Place | £ 0 | 0 | 0.00 KM |
Nearby Transport
| Name | NLC | TLC | Distance |
|---|---|---|---|
| Liverpool South Parkway | 9709 | LPY | 2.47 KM |
| Hunts Cross | 2235 | HNX | 2.71 KM |
| West Allerton | 2266 | WSA | 3.54 KM |
| Broad Green | 2240 | BGE | 3.99 KM |
| Roby | 2261 | ROB | 4.43 KM |
Nearby Listings
| Address | Price | Type | Score | Distance |
|---|---|---|---|---|
| Castle Street, Woolton, Liverpool, Merseyside, L25 | £ 350,000 | BUY | 6 / 10 | 0.00 KM |
| Castle Street, Woolton, Liverpool | £ 300,000 | BUY | 8 / 10 | 0.00 KM |
| Castle Street, Woolton, Liverpool, L25 | £ 250,000 | BUY | 7 / 10 | 0.02 KM |
| Castle Street, Woolton, Liverpool, Merseyside, L25 | £ 220,000 | BUY | 5 / 10 | 0.03 KM |
| Rose Street, Liverpool, Merseyside, L25 | £ 325,000 | BUY | 8 / 10 | 0.10 KM |
Nearby Properties
| Address | Price | Distance |
|---|---|---|
| 13 Castle Street | £ 206,900 | 0.00 KM |
| 50 Castle Street | £ 110,000 | 0.00 KM |
| 42 Castle Street | £ 205,000 | 0.00 KM |
| 15 Castle Street | £ 250,000 | 0.00 KM |
| 44 Castle Street | £ 41,000 | 0.00 KM |