Martin & Co says ..
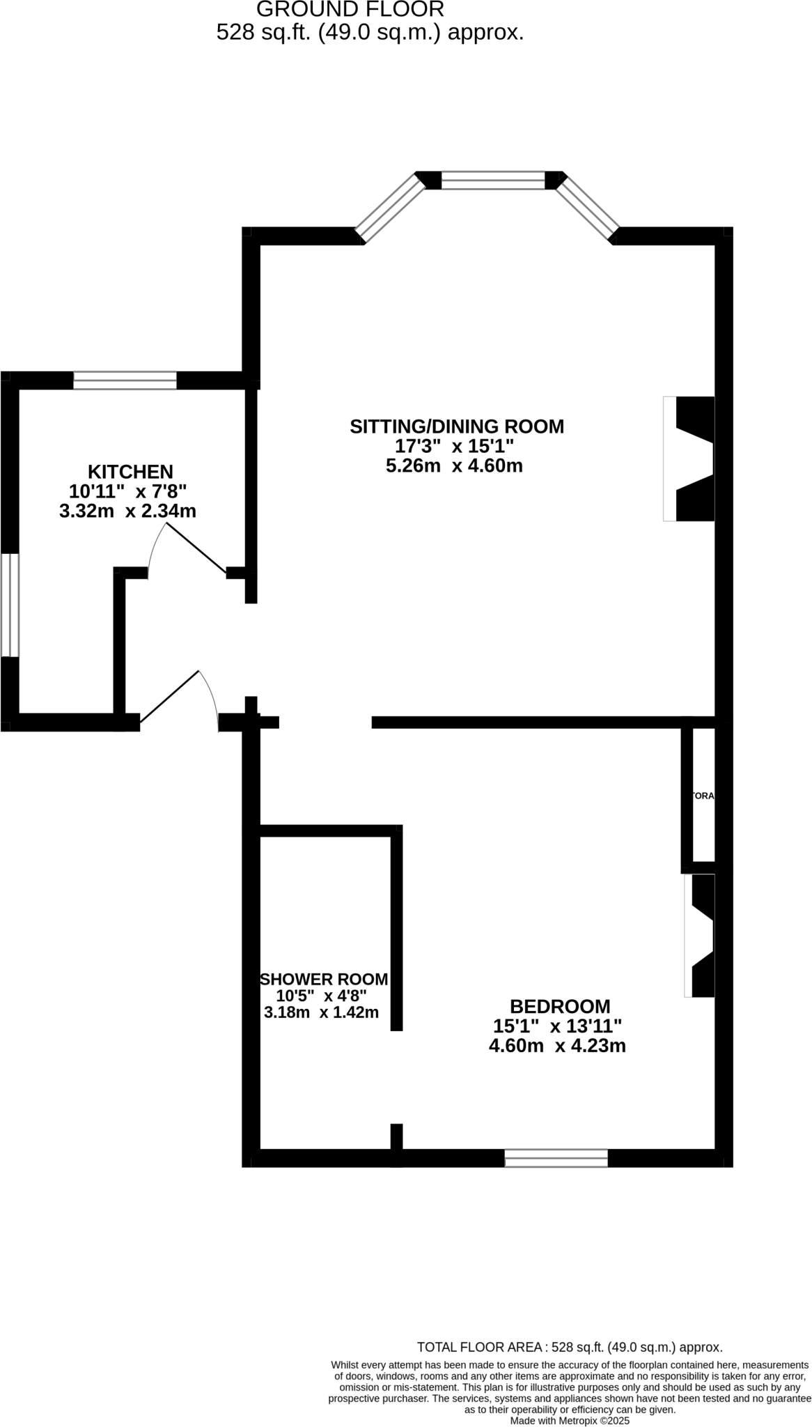
A fabulous 1 bedroom flat with a mix of character charm and modern convenience with parking and pleasant communal garden. Set within in this well presented building the property offers a large lounge to the front overlooking Gloucester Park, modern kitchen and shower room, double bedroom, gas cen...
Property Oracle says ..
The property is a one-bedroom flat located on Weston Road in Gloucester. The interior appears to be in good condition with modern fixtures. The listing price is significantly lower than the average price per square foot in the area. The property is located near several schools and Gloucester train station.
Therefore, we give this property 6 / 10. *Disclaimer: This is our option and does constitute a recommendation or financial advice. Do your own research. *
- Price
- 9
- Condition
- 7
- Location
- 7
- Land
- 1
- Bedrooms
- 1
- Bathrooms
- 1
- Sqft (est)
- 528.00
The heatmap indicates the level of crime in the area. The color of the heatmap indicates the crime severity and recency.
Metrics Year-on-Year
- Average area value
- 345,000.00 £Increased by 40.18 %
- Est sale value
- 257,136.00 £Increased by 90.23 %
- Average area rental value
- 950.00 £/moIncreased by 0.64 %
- Est letting value
- 528.00 £/mo
- Est rental Yield
- 3.30 %Decreased by 28.26 %
- Crime Rate
- 11.00 %Unchanged by 0.00 %
Agent Activity
Martin & Co created the listing.
Nearby Schools
| Name | Type | Ofsted | Distance |
|---|---|---|---|
| St Paul'S Church Of England Primary School | Voluntary Controlled School | Good | 0.17 KM |
| Linden Primary School | Community School | Good | 0.82 KM |
| The Lighthouse | Children's Centre | 0.89 KM | |
| Tredworth Junior School | Community School | Good | 0.99 KM |
| Calton Primary School | Community School | Good | 1.20 KM |
Images
Nearby Streets
| Name | Average Price | Average Sqft | Distance |
|---|---|---|---|
| Park End Road | £ 1,100,000 | 0 | 0.00 KM |
| Henley Court | £ 0 | 0 | 0.00 KM |
| Somerset Place | £ 0 | 0 | 0.00 KM |
| Saint Ann Way | £ 0 | 0 | 0.00 KM |
| Furlong Road | £ 0 | 0 | 0.00 KM |
Nearby Transport
| Name | NLC | TLC | Distance |
|---|---|---|---|
| Gloucester | 4760 | GCR | 1.30 KM |
Nearby Listings
| Address | Price | Type | Score | Distance |
|---|---|---|---|---|
| Flat C , 48 Weston Road | £ 110,000 | BUY | 6 / 10 | 0.00 KM |
| Weston Road, City Centre, Gloucester, GL1 | £ 100,000 | BUY | 6 / 10 | 0.07 KM |
| Weston Road, Gloucester | £ 92,950 | BUY | 5 / 10 | 0.07 KM |
| 50 Weston Road, Gloucester, Gloucestershire, GL1 | £ 375,000 | BUY | 5 / 10 | 0.07 KM |
| New Street, Gloucester, GL1 | £ 180,000 | BUY | 6 / 10 | 0.07 KM |
Nearby Properties
| Address | Price | Distance |
|---|---|---|
| 66 Weston Road | £ 230,155 | 0.04 KM |
| 38 Weston Road | £ 83,500 | 0.07 KM |
| 34 Weston Road | £ 118,000 | 0.07 KM |
| 44 Weston Road | £ 77,000 | 0.07 KM |
| 48 Weston Road | £ 94,000 | 0.07 KM |