HO
King Court, Motherwell
By HomeLink Independent Estate Agents
£ 109,999
Reviews
3 out of 5 stars
HomeLink Independent Estate Agents says ..
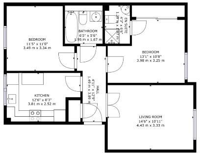
HomeLink are delighted to offer to the market this modern upper flat located in a desirable pocket within minutes walk of Motherwell Town Centre. The spacious property is presented in good order throughout and requires internal viewing in order to appreciate fully. The accommodation comprise (cont.)
Property Oracle says ..
Therefore, we give this property 6 / 10. *Disclaimer: This is our option and does constitute a recommendation or financial advice. Do your own research. *
- Price
- 7
- Condition
- 8
- Location
- 7
- Land
- 3
- Bedrooms
- 2
- Bathrooms
- 1
- Sqft (est)
- 624.31
The heatmap indicates the level of crime in the area. The color of the heatmap indicates the crime severity and recency.
Metrics Year-on-Year
- Average area value
- 925,000.00 £Increased by 139.51 %
- Est sale value
- 273,447.78 £Increased by 50.52 %
- Average area rental value
- 825.00 £/moDecreased by 10.71 %
- Est letting value
- 0.00 £/mo
- Est rental Yield
- 1.07 %Decreased by 62.72 %
- Crime Rate
- 0.00 %
from 386,204.00 £
from 181,674.21 £
from 924.00 £/mo
from 0.00 £/mo
from 2.87 %
from 0.00 %
Agent Activity
HomeLink Independent Estate Agents created the listing.
Images
Nearby Streets
| Name | Average Price | Average Sqft | Distance |
|---|---|---|---|
| North Orchard Street | £ 87,498 | 0 | 0.00 KM |
| James Street | £ 112,498 | 0 | 0.00 KM |
| King Court | £ 101,000 | 0 | 0.00 KM |
| Orchard Street | £ 209,998 | 0 | 0.00 KM |
| Douglas Street | £ 336,250 | 0 | 0.00 KM |
Nearby Transport
| Name | NLC | TLC | Distance |
|---|---|---|---|
| Motherwell | 9691 | MTH | 0.45 KM |
| Airbles | 9695 | AIR | 1.10 KM |
| Chatelherault | 9707 | CTE | 3.04 KM |
| Holytown | 9738 | HLY | 3.57 KM |
| Bellshill | 9714 | BLH | 4.02 KM |
Nearby Listings
| Address | Price | Type | Score | Distance |
|---|---|---|---|---|
| King Court, Motherwell | £ 109,999 | BUY | 6 / 10 | 0.00 KM |
| King Court, Motherwell | £ 109,995 | BUY | 6 / 10 | 0.03 KM |
| King Court, Motherwell, ML1 | £ 110,000 | BUY | Unknown | 0.03 KM |
| King Court, Motherwell | £ 110,000 | BUY | 6 / 10 | 0.04 KM |
| King Court, Motherwell, ML1 | £ 110,000 | BUY | 6 / 10 | 0.05 KM |