Byrne Runciman says ..
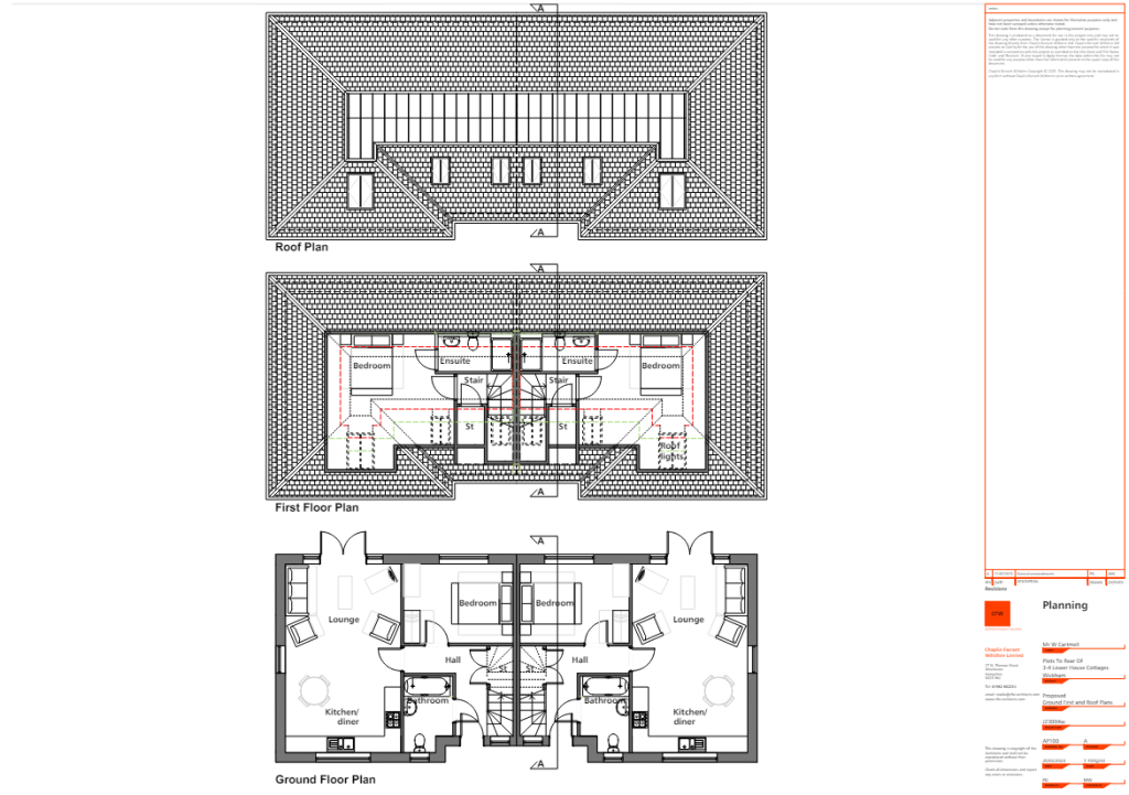
A rare opportunity to acquire building plots for a pair of semi-detached bungalows with planning permission granted reference 23/00600/FUL. Further details can be downloaded from the Winchester Planning Portal.
Property Oracle says ..
This property in Wickham, Hampshire, presents a mixed opportunity. The location in Wickham offers the benefits of a desirable village setting with relatively easy access to Winchester and amenities. However, the immediate surroundings and plot appear less developed than neighboring properties. The exterior is largely brick construction, displaying signs of aging. Improvements, including landscaping and potential renovations, would enhance the property’s overall appeal. The absence of interior photographs prevents a full evaluation of the interior’s condition and finishes. Given the incomplete data on square footage, a precise valuation is difficult; however, the listed price seems to be within the competitive range for Wickham, considering the need for potential upkeep and enhancements. The lack of a properly developed garden might be a drawback for some buyers.
Therefore, we give this property 5 / 10. *Disclaimer: This is our option and does constitute a recommendation or financial advice. Do your own research. *
- Price
- 6
- Condition
- 4
- Location
- 7
- Land
- 3
- Bedrooms
- 2
- Bathrooms
- 2
The heatmap indicates the level of crime in the area. The color of the heatmap indicates the crime severity and recency.
Metrics Year-on-Year
- Average area value
- 224,091.00 £Decreased by 51.86 %
- Average area rental value
- 1,581.00 £/moIncreased by 20.59 %
- Est rental Yield
- 8.47 %Increased by 150.59 %
- Crime Rate
- 113.00 %Unchanged by 0.00 %
Agent Activity
Byrne Runciman created the listing.
Nearby Schools
| Name | Type | Ofsted | Distance |
|---|---|---|---|
| Little Petals, Merry-Go-Round And Happy Valley Children'S Centre | Children's Centre | 0.38 KM | |
| Wickham Church Of England Primary School | Voluntary Controlled School | Good | 0.38 KM |
| St John The Baptist Church Of England Primary School | Voluntary Controlled School | Good | 3.41 KM |
| Boundary Oak School | Other Independent School | 3.46 KM | |
| Orchard Lea Junior School | Community School | Good | 4.20 KM |
Images
Nearby Streets
| Name | Average Price | Average Sqft | Distance |
|---|---|---|---|
| Roberts Close | £ 0 | 0 | 0.00 KM |
| Bishopsgate Cottages | £ 622,475 | 0 | 0.00 KM |
| Meon Valley Trail | £ 0 | 0 | 0.00 KM |
| Mill Lane | £ 412,475 | 0 | 0.00 KM |
| Station Road | £ 350,000 | 0 | 0.00 KM |
Nearby Transport
| Name | NLC | TLC | Distance |
|---|---|---|---|
| Fareham | 5900 | FRM | 5.22 KM |
| Botley | 5894 | BOE | 7.96 KM |
| Swanwick | 5920 | SNW | 8.90 KM |
| Portchester | 5928 | PTC | 9.16 KM |
Nearby Listings
| Address | Price | Type | Score | Distance |
|---|---|---|---|---|
| Wickham, Hampshire | £ 300,000 | BUY | 5 / 10 | 0.00 KM |
| Wickham, Hampshire | £ 270,000 | BUY | 6 / 10 | 0.00 KM |
| Wickham, Hampshire | £ 400,000 | BUY | 5 / 10 | 0.00 KM |
| Wickham, Hampshire | £ 330,000 | BUY | 6 / 10 | 0.00 KM |
| Winchester Road, Wickham, Fareham | £ 310,000 | BUY | 6 / 10 | 0.08 KM |
Nearby Properties
| Address | Price | Distance |
|---|---|---|
| The Chantry | £ 245,000 | 0.02 KM |
| Wickham Cottage | £ 110,000 | 0.02 KM |
| The Croft | £ 600,000 | 0.04 KM |
| 3 Wickham Croft | £ 235,000 | 0.12 KM |
| 12 Wickham Croft | £ 188,000 | 0.12 KM |