East Meon, Nr Petersfield
WI

East Meon, Nr Petersfield

By Wilson Hill

£ 1,950,000

Reviews

3 out of 5 stars

Wilson Hill says ..

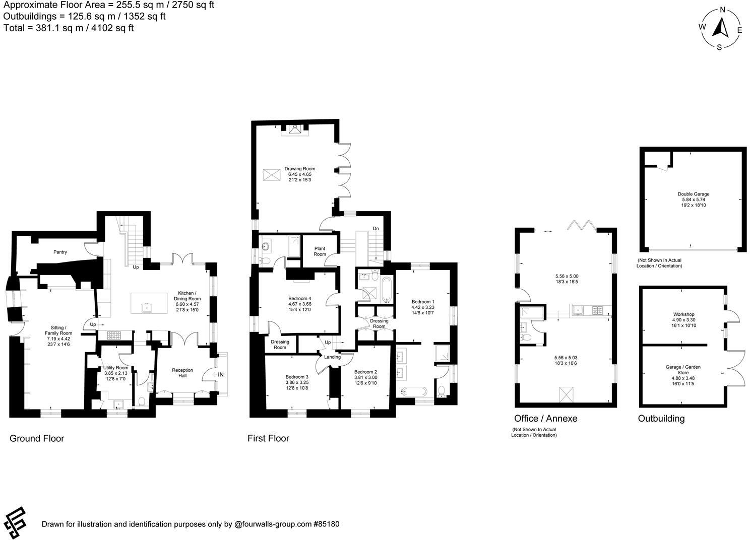
An exceptionally stylish edge of village house with separate annexe, situated in lovely gardens and grounds of approximately 3.7 acres.

Property Oracle says ..

This property in East Meon, Hampshire presents a compelling proposition for buyers seeking a high-quality, renovated home in a desirable rural location. The extensive refurbishment is evident in the modern kitchen, bathrooms, and living spaces, which showcase a stylish and contemporary design. The property offers ample space with four bedrooms and three bathrooms, suitable for a family or those requiring generous living accommodation.

The substantial land surrounding the property is a key feature, providing privacy and potential for outdoor activities. The mature gardens and potentially additional acreage (exact plot size unavailable) are a significant advantage, particularly in a sought-after village setting like East Meon. The proximity to Petersfield offers access to additional amenities and transport links, striking a balance between rural tranquility and convenient access to services.

The list price reflects the property’s size, condition, and the substantial land included. While it is a high-value property, a thorough comparison with similar properties in the area, considering their size, condition, and land, would be necessary to fully assess its value for money. The lack of precise plot size and average price per square foot for comparable properties makes a definitive statement on pricing challenging. However, based on the available data, the property appears reasonably priced within the context of the East Meon market, particularly considering its renovated condition and abundant land.

Therefore, we give this property 7 / 10. *Disclaimer: This is our option and does constitute a recommendation or financial advice. Do your own research. *

Price
7
Condition
9
Location
7
Land
8
Bedrooms
4
Bathrooms
3
Sqft (est)
4,102.13

The heatmap indicates the level of crime in the area. The color of the heatmap indicates the crime severity and recency.

Metrics Year-on-Year

Average area value
317,500.00 £
Increased by 26.46 %
from 251,061.00 £
Est sale value
1,136,290.01 £
Increased by 11.69 %
from 1,017,328.24 £
Average area rental value
900.00 £/mo
Decreased by 13.71 %
from 1,043.00 £/mo
Est letting value
0.00 £/mo
Decreased by 100.00 %
from 4,102.13 £/mo
Est rental Yield
3.40 %
Decreased by 31.86 %
from 4.99 %
Crime Rate
0.00 %
from 0.00 %

Agent Activity

  • Wilson Hill created the listing.

Nearby Schools

NameTypeOfstedDistance
East Meon Church Of England Controlled Primary SchoolVoluntary Controlled SchoolGood0.97 KM
Clanfield Junior SchoolCommunity SchoolGood5.56 KM
Langrish Primary SchoolCommunity SchoolGood6.11 KM
Froxfield Church Of England Primary And Pre-SchoolVoluntary Controlled SchoolGood6.18 KM
Petersgate Infant SchoolCommunity SchoolGood7.20 KM

Images

Main Kitchen / Dining Room Drawing Room Kitchen / Dining Room Pantry Kitchen / Dining Room Reception Hall Drawing Room View to Kitchen Sitting / Family Room Sitting / Family Room Sitting / Family Room Kitchen & Staircase Bedroom Suite Ensuite Bathroom Bedroom Bedroom Front & Gardens Gardens & Annexe Office / Annexe Office / Annexe Gardens & Annexe House at Dusk Gardens and View Orchard Paddock / Field House, Garage and Annexe Setting at Dusk

Nearby Streets

NameAverage PriceAverage SqftDistance
Frogmore Lane £ 450,00000.00 KM
The Hyde £ 000.00 KM
Temple Lane £ 000.00 KM
Park Road £ 1,650,00000.00 KM
Duncombe Road £ 000.00 KM

Nearby Transport

NameNLCTLCDistance
Petersfield5657PTR9.47 KM

Nearby Listings

AddressPriceTypeScoreDistance
East Meon, Nr Petersfield £ 1,950,000BUY7 / 100.00 KM
East Meon, Petersfield, GU32 £ 750,000BUY6 / 100.10 KM
The Hyde, East Meon, Petersfield £ 225,000BUYUnknown0.15 KM
Temple Brow, East Meon, Hampshire £ 850,000BUY7 / 100.42 KM
Templars Cottage, East Meon, Hampshire £ 675,000BUYUnknown0.47 KM

Nearby Properties

AddressPriceDistance
3 New Cottages £ 268,5000.11 KM
2 New Cottages £ 482,5000.11 KM
Brambles £ 825,0000.41 KM
Trebarwith £ 1,812,5000.41 KM
Ivy House £ 750,0000.41 KM